
Design|江南境秀140㎡现代轻奢风,有质感又舒适的软装搭配,高级!

——安藤忠雄


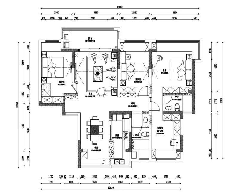
平面设计图
一个精致的居住空间不应只是视觉的享受,更应体现于心灵上的简约与成熟。本案设计师以居者的视角从生活中提取色彩,整体空间简洁明净,不囿于风格,不随波逐流,在低调的细节充分表现,打造一处可观可赏的心灵安放之所。 客厅




客厅软装配饰·由叶氏大美居设计
餐厅


餐厅软装配饰·由叶氏大美居设计
主卧


主卧软装配饰·由叶氏大美居设计
书房

· 叶氏大美居 ·

大美居国际软装馆
网罗国内外设计力量
背景墙、窗帘、壁纸、
饰品、家具五大软装单品要素
全部能一站打造

通过整体设计搭配及产品定制生产
形成以空间为单位,以风格为导向
以色彩、材质为关联
以精品工艺为特色的集成软装产品有机组合
家居软装的整体风格与品味
3个字总结就是:上档次!

叶氏大美居专业设计团队
·END·