三大优势
准现房源·立即入驻——南通通州湾国家级经济开发区稀缺厂房开售!
南通润格机械制造有限公司——年组装 20 万台汽车空调项目位于南通市通州湾江海联动示范区,北靠江新路,西临海明路,用地面积约 13212 ㎡,地势平坦,用地周边交通便利。
【项目特点】有土地证,准现房
【面积】:14363㎡
【产权】:不动产证,国土50年、独立产权
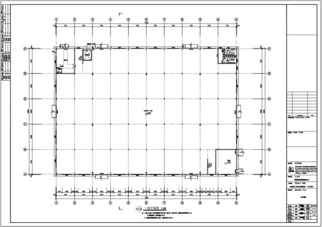
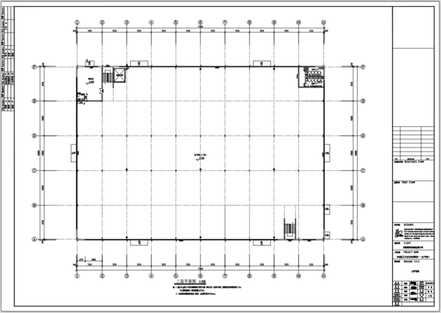
【楼层】:标准双层厂房
【消防】:丁类
【配电】:500KVA
【层高】:一楼层高(6.7m)二楼层高(5.5m)
【行业】:智能制造,汽车零部件,精密机械,新能源,新材料
【付款方式】:可10年按揭
【厂房单价】:3000每平米
【周边配套】:周边3公里范围内社区集中、大型生活超市、银行、人才服务中心、生活方便,配套齐全。
【交付时间】:现房交付
贯彻可持续发展的原则,在合理利用、节约土地的前提下,考虑近、远期发展,适应未来的快速发展变化,使规划具有适应性和可操作性。
(厂房透视图)
△平面图
△立面图与剖面图
地理位置优越
项目北靠江新路,西临海明路,厂房周围地势平坦,交通条件便利,周围社区集中、大型生活超市、银行、人才服务中心、生活方便,配套齐全。
规划前景宏伟
位于南通市通州湾江海联动示范区,规划发展辽阔,未来前景宏伟。
准现房,50年产权
五证齐全,准现房,50年产权,让您经营发展得到保障。



























