朗悦花园精装房改造 | 眸光浮动间 · 一家三口的114m2自然之居

2022-02-26 昆山商情 印象水仙设计
///
项目面积丨114㎡
风格定位丨现代原木风
设计工商丨印象水仙
软装设计丨印象水仙
施工单位丨印象水仙
期待在未来每个闲适的日子里,
点燃喜欢的香氛,
播放悦耳的音乐,
选择惬意的坐姿,
在平常的生活里寻找到新意,
在富有灵魂的空间里连环放送温情动人的生活剧。
作为精装房业主,大多数是不希望大动干戈的,毕竟买精装房的初心也是为了可以省心一些,所以呢,本案在结构上没做太大的改动,主要将收纳(全屋定制)完美的融入这个家里,是设计师满足屋主的最主要的事情,也是屋主对这次设计最满意的事情。然后主要通过布局敲墙、墙漆的再设计,以及软装的搭配来达到一个理想的状态。
本案是一套114m2的精装房改造项目,主要这个小区靠近学校方便孩子上下学,设计师结合业主的需求,将业主的审美品味与生活常态为依托,以诗意慢调的自然之境作灵感,借用光影、原木、绿植等元素,一改精装房的同质化面貌,让住宅不仅隔绝车水马龙的奔碌,更留守住温柔的期待。
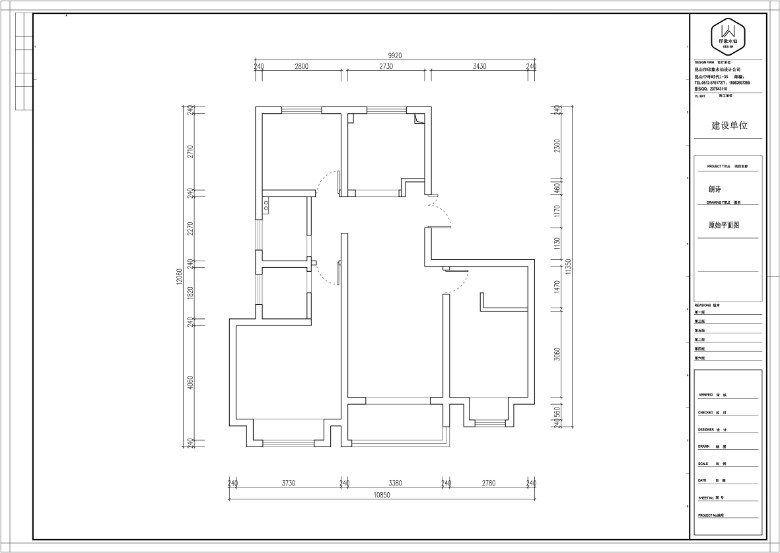
原始结构图
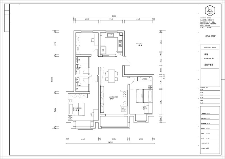
平面布置图
01/客厅
- LIVING ROOM -
简约的家具配置为业主留下更多自由布置空间的可能性,或阅读,或小憩,悠然自得。
与传统客厅不同,设计师在和业主充分交流后,将电视区域改成书柜,移门区域增设投影,增加了视觉情趣,让空间别具一格。
旁边的餐边柜也是与书柜一体,收纳功能非常充足。
空间绿植的融入,结合原木色系,充足的采光,简约恣意,生机盎然,同时也是点睛之笔。
02/餐厅
- DINING ROOM -
业主喜欢日系风格的干净和温馨的感觉,所以地板和柜体材质大多用了原木,包括餐桌也是,结合大面积的灰色墙面,空间显得色调和谐舒服。
03/阳台
- BALCONY -
阳台区域安放洗衣机和烘干机,合理利用空间,日常动线也非常便利,同时便于打扫。
04/过道
- CORRIDOR -
过道不是很长,在尽头选择了一副小尺寸的壁画,提升空间氛围,也是过道的视觉点。
05/厨房
-  KITCHEN -
厨房以白色、香槟色为主,延续整屋简约的风格,简洁实用为主。
06/主卧
- BEDROOM1 -
床头一侧因为业主有睡觉前读书的习惯所以床头柜更能发挥它的作用,台灯也可以作为阅读灯使用,方便夜读。
07/儿童房
- BEDROOM2 -
儿童房墙面选择了浅绿色,搭配水蓝色的点缀,空间活力满满;飘窗一侧做的书柜,可想而知你们应该能猜出业主的职业啦,教师,没错,嘻嘻。
08/书房
- STUDY -
移步书房,可以看到一排收纳柜,可用于书籍、衣物的分别储物,实现了收纳空间上的最大化利用,蓝色使人安静,独立的空间非常适合学习。
09/卫生间
- TOILET -

已有0人打赏

已有0人打赏

分享到微信/朋友圈 领红包

每天看看帖,就赚牡丹花,免费好礼立即入手。

打赏
0人赞

推广

部分评论
今日热门
  • 洗碗神器#每天一条昆友圈# #我的碎碎念# # ..

    拆南墙

    25
  • 早安#每天一条昆友圈##我的2025#

    清芬自远

    22
  • 来了来了,早上好啊! 祝各位周日愉快! # ..

    快乐老儒儒-1

    22
  • 阳光下的三角梅#每天一条昆友圈# #昆山有哪 ..

    拆南墙

    22
  • 早上好!#每天一条昆友圈#

    夏晨东

    21
  • 30个赞赞有吗

    十里shílǐ

    20
  • 早#每天一条昆友圈#

    十里shílǐ

    20
  • 早安#今日份早餐打卡成功# #每天一条昆友圈 ..

    樱桃小包子

    19
精彩推荐
加载更多
精彩活动更多
论坛服务
触屏版 / 电脑版

other
马上开启