
哪个蟹船几千平?张嘴就来?
前方传来最新消息
昆山阳澄湖蟹舫苑要拆了!
赶紧来看看
什么情况
近日,昆山论坛网友“影子怕冷”发帖爆料:阳澄湖蟹舫苑大量拆迁了,你曾经在这里用过餐吗?
一语震惊四座!

带着同样的疑问
昨天(28日)上午
kb君迎着春雨到现场一探究竟
👇
迎宾西路3600号
就是巴城阳澄湖蟹舫苑的所在地
尚未进入大门
远远的就能看见一个个硕大的招牌

走进其中,冷清感扑面而来
难道传言是真?
打住!先别急着下定论!
春天
对于蟹舫而言正是修生养息的时候
基本没有客流
一旦到了秋季
特别是阳澄湖蟹上市的时候
这里就成了昆山最热闹的地方之一
淡季下,冷清归冷清
但也不像要拆的样子
甚至,有些店家还在装修
一位在苑内工作的师傅告诉kb君
要拆除的蟹舫并不是这里
而是东面那一片
果然
从迎宾西路上一条小路拐进去没多远
一排绿色围挡映入眼帘
沿湖一侧
从昆山公安水上警察大队三中队旁
一直围到了头

有的蟹舫已经搬离
门上贴着封条
有的还敞着门
在现场
没有任何公告
为什么要拆?
拆除后,又有什么规划?
kb君从多名蟹舫老板处打听到了
kb君:这里一片都拆掉吗?
蟹舫老板:就岸边,建在阳澄湖里的那些要拆。为了保护阳澄湖生态,应该就在今年要拆掉的,以后就回归成湖。
这下小伙伴们都可以放心啦!
并不是所有蟹舫都要拆
只是拆除一部分
如果手里还有蟹卡、优惠券的
赶紧看看是不是在这范围内
其实
“蟹船上岸”在昆山计划已久
这次部分蟹舫拆除工作的启动
让这项工作
又向前推动了一步
阳澄湖大闸蟹不仅是昆山的“金名片”,更是国家地理标志产品,拥有巨大市场需求和完整产业链。过去,巴城蟹民栖水而居,湖里养蟹、船上经营,品蟹时节,每年上百万人次陆续汇集而来,颇为壮观。但随着商家越来越多,湖岸线被侵占、水质污染等问题也越发突出。
作为长江流域的重要湖泊,全国“长江十年禁渔”计划开始后,阳澄湖水环境保护成为昆山的头等大事.
但事关众多蟹农生计的产业
不能简单地“以禁代管”
必须重新谋一条出路
2022年
继投资10亿元、建成3万多亩的
阳澄湖“仿真”大闸蟹产业园后
昆山在距离阳澄湖约3公里处
投资近20亿元
建设了一处具有江南水乡风格的“新蟹村”
就是正仪蟹船上岸一期启动区
即“水街十三坊”之一期“渔家灯火商业中心”(暂定名),项目总用地面积约2.97万平方米,总建筑面积约3.3万平方米。

项目合理布置道路及水系,蟹舫组团布置,每户蟹舫均临路临水,通过利用现状河道串联成网,延展滨水界面,方便蟹坊运营及蟹池从河道中取水养蟹的需求,同时也为每户蟹坊打造丰富的亲水空间。
去年9月
“渔家灯火商业中心”(暂命名)
建成亮相

陆续有蟹农签约
总共可以容纳59家蟹舫上岸安置
“河网向北接连阳澄湖,每户设有40平方米的半地下蟹池,可满足存放寄养阳澄湖蟹的需求。”建设方昆山城投集团相关负责人表示,项目将引入专业物业管理,家家户户还装有水质检测仪,确保用水达标后方可排放。
除此之外
昆山还规划了一处蟹船上岸项目
比渔家灯火商业中心还大!
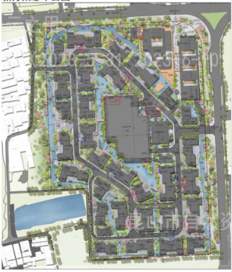
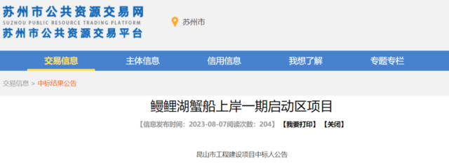
鳗鲤湖蟹船上岸一期启动区项目
位于巴城古城北路西侧、湖亭西路南侧
总用地面积79995.8㎡,拟建成后容纳83家蟹坊上岸安置,同时配建停车楼、地下蟹池等配套设施。总建筑面积110491.5㎡,容积率1.0,建筑密度41%,绿地率15%。
鸟瞰图
↓
总平面图
↓
项目中标人已公示
希望早日传来进一步消息
新蟹村取代老蟹船
在昆山吃阳澄湖大闸蟹
又将呈现另一道风景线
对此大家怎么看?
评论一起聊聊
分享到微信/朋友圈 领红包
推广