大慈装饰 | 日渐月染,山水墨韵,扬起炊烟袅袅
[paragraph]

——鞋柜金色浮雕细刻,传递出浓浓的东方韵味。 客厅
——新中式的灯具讲究对称结构,遥相呼应的吊灯寓意好事成双,环形结构也寓意为时来运转。
——客厅地面用高级灰作为表现,灰色与奶白色的鲜明对比,给空间一种大气且利落的感觉。水墨晕开,飘逸淡然。一股浓浓的写意水墨气质注入到新中式空间中,不仅大大替身了空间品质,也让东方韵味无限弥散。 餐厅
——餐厅在选材上大胆的加入了一些金属的现代材质,让空间在保留古代美学的基础上,又添加时髦的现代演绎。椅背上的流苏,桌上的梅花,古典的梅花墙背景墙,处处细节韵味十足。 主卧
——卧室以高级感的中性色为主,恰到好处的梅花点缀。古筝悠悠,许你岁月静好,颇有文人墨客的风味。新中式是一种奢侈品,因为它自身带着的文化底蕴和古典韵味,让它凌驾在其他风味上。
案例信息丨Case Information
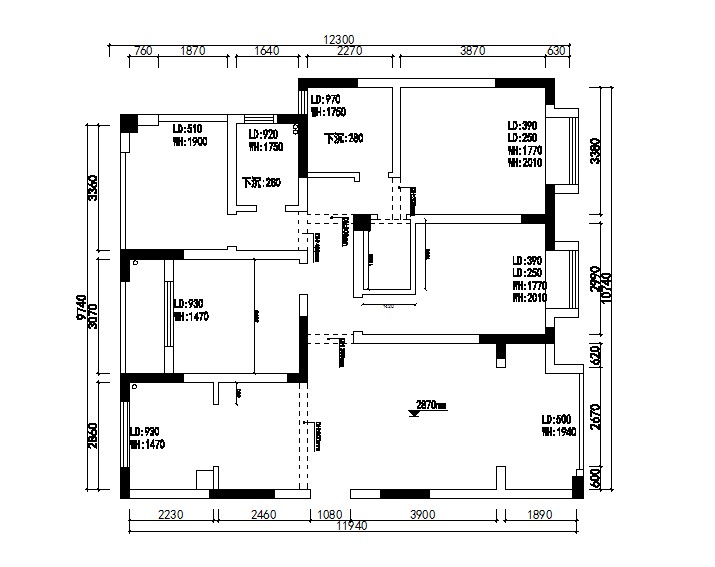
项目地点:白鹭湾19#项目类型:平层项目性质:全案项目面积:135㎡项目风格:现代简约 首设计:王工设计组:DACI全案组 户型解析▼业主需求常住人口就两夫妻,父母偶尔会过来住,所以房间要求没有很多,喜欢明亮的居住空间,需要规划更多的储物空间,整体要给人简洁大气,端庄典雅的感受。 ▼户型优劣势本案是高楼层的边套,采光很好,不足的就是厨房空间不够大,房间也比较小。 ▼户型改造原户型的承重结构特别多,室内改造空间不大,但是各个房间、客厅、厨房的阳台特别多,所以进行了一些阳台改造,把原户型的厨房扩大了不少,增加实用性。前后对比

▲ 原始图

▲ 布局图
玄关
——鞋柜金色浮雕细刻,传递出浓浓的东方韵味。 客厅
——新中式的灯具讲究对称结构,遥相呼应的吊灯寓意好事成双,环形结构也寓意为时来运转。
——客厅地面用高级灰作为表现,灰色与奶白色的鲜明对比,给空间一种大气且利落的感觉。水墨晕开,飘逸淡然。一股浓浓的写意水墨气质注入到新中式空间中,不仅大大替身了空间品质,也让东方韵味无限弥散。 餐厅
——餐厅在选材上大胆的加入了一些金属的现代材质,让空间在保留古代美学的基础上,又添加时髦的现代演绎。椅背上的流苏,桌上的梅花,古典的梅花墙背景墙,处处细节韵味十足。 主卧
——卧室以高级感的中性色为主,恰到好处的梅花点缀。古筝悠悠,许你岁月静好,颇有文人墨客的风味。新中式是一种奢侈品,因为它自身带着的文化底蕴和古典韵味,让它凌驾在其他风味上。



























