大慈装饰 | 310㎡恰到好处的生活美学
[paragraph]






每个小女孩都有个公主梦,在粉粉的房间里,有甜而不腻的粉色公主床。整个空间使用甜美温柔的粉色,搭配清新自然的辅助色,看似简单却能令人怦然心动。二楼卫生间
主卫有窗,采光很好,以大面积的白色墙地砖打造更加明亮的卫浴空间。干湿分离,功能丰富齐全,慢慢享受生活带来的美好。三楼男孩房
床头柜换成书桌,雾霾蓝色的书架连接衣柜,空间的功能性与实用性都发挥到了极致。三楼主卧
卧室隐藏、包容着我们的一切。咖啡色系让整体空间更收敛,床品工艺细致考究,背景墙采用米色,打造温柔舒适的氛围感。三楼北阳台
洗衣机内嵌,增加便利设置水槽,方便洗手或清洗日常的小衣服。利用墙面空间,设置储物吊柜,收纳琐碎的东西。
案例信息丨Case Information
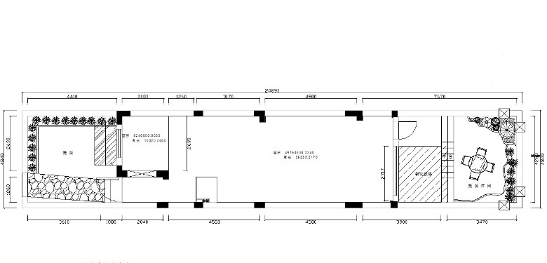
项目地点:绿地68#项目类型:别墅项目性质:全案项目面积:310㎡项目风格:现代 首设计:张工设计组:DACI全案组户型解析▼业主需求一家四口居住,父母偶尔过来住。对孩子的活动空间要求比较高材料追求环保。▼户型优劣势户型架构规整,一层南北的两个室外庭院,客餐厅各在南北位置,无结构上的缺陷。▼户型改造二层、三层是卧室空间,地下一楼设置为公共活动空间。平面图
▲ 原始图

▲ 布局图
玄关

墙边倒映着的光暗藏着些许柔情,阔绰厅室容下了一家人的幸福光景。
厨房

餐厅与厨房空间相通,保持灵活互动,又各自独立。在这个不大的空间里,朴素的食材也能变成可口佳肴。
餐厅

食物是治愈灵魂的良药,这里四季灯火通明,飘香四溢,家人在良好的空间关系中将变得更加亲密。
客厅

“宝格丽蓝”是极致时尚的代表色。适当的点缀和撞色给环境注入更多的朝气与格调。

二楼女儿房

主卫有窗,采光很好,以大面积的白色墙地砖打造更加明亮的卫浴空间。干湿分离,功能丰富齐全,慢慢享受生活带来的美好。三楼男孩房
床头柜换成书桌,雾霾蓝色的书架连接衣柜,空间的功能性与实用性都发挥到了极致。三楼主卧
卧室隐藏、包容着我们的一切。咖啡色系让整体空间更收敛,床品工艺细致考究,背景墙采用米色,打造温柔舒适的氛围感。三楼北阳台
洗衣机内嵌,增加便利设置水槽,方便洗手或清洗日常的小衣服。利用墙面空间,设置储物吊柜,收纳琐碎的东西。中国-苏州-昆山
全案设计中心:昆山九方城8号楼1704--1710(5A写字楼)
展示体验中心:昆山九方城8号楼1706(5A写字楼)
工程管理中心:玉山镇柏庐北路156号(店面)



























