景悦府复式楼正式开始装修,以后有空我就来更新!
关于装修,第一部让你们头疼的是什么?
对我而言,我们家审美真的都一般般,但对家里装修风格的设计要求极高,赚钱买个大house,想好好装修,你们能明白我的心情不?
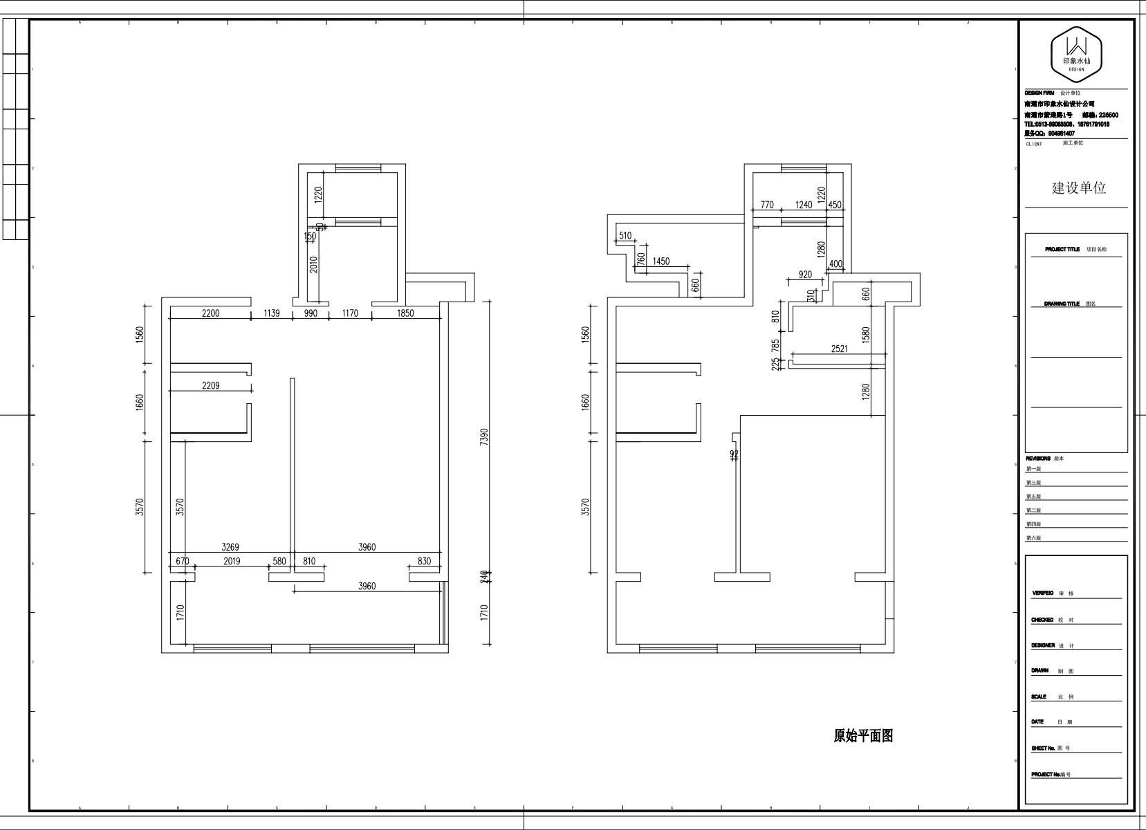
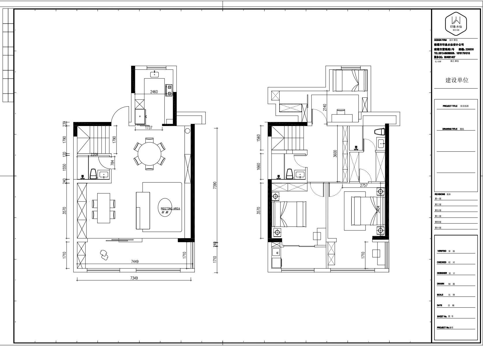
第一步我先不唠家常了,先把我满意的平面图和效果图发出来看看,后期关于我如何找装修公司及价位和避坑,后面再慢慢详聊。
原始和平面,改造对比。


效果图刚刚问设计师要了几张,我理想的新家,希望可以实现,尽量超越这个效果,哈哈哈!







对我而言,我们家审美真的都一般般,但对家里装修风格的设计要求极高,赚钱买个大house,想好好装修,你们能明白我的心情不?
第一步我先不唠家常了,先把我满意的平面图和效果图发出来看看,后期关于我如何找装修公司及价位和避坑,后面再慢慢详聊。
原始和平面,改造对比。


效果图刚刚问设计师要了几张,我理想的新家,希望可以实现,尽量超越这个效果,哈哈哈!


































