夜间模式
  • 755150阅读
  • 1916回复

昆山朗通装饰·专注家装13年 最强的海派设计团队 [复制链接]

上一主题 下一主题
在线朗通装饰
级别: 家装商家

发帖
16952
昆币
14166 枚
1790楼 发表于: 2018-06-07 , 来自:江苏省0==
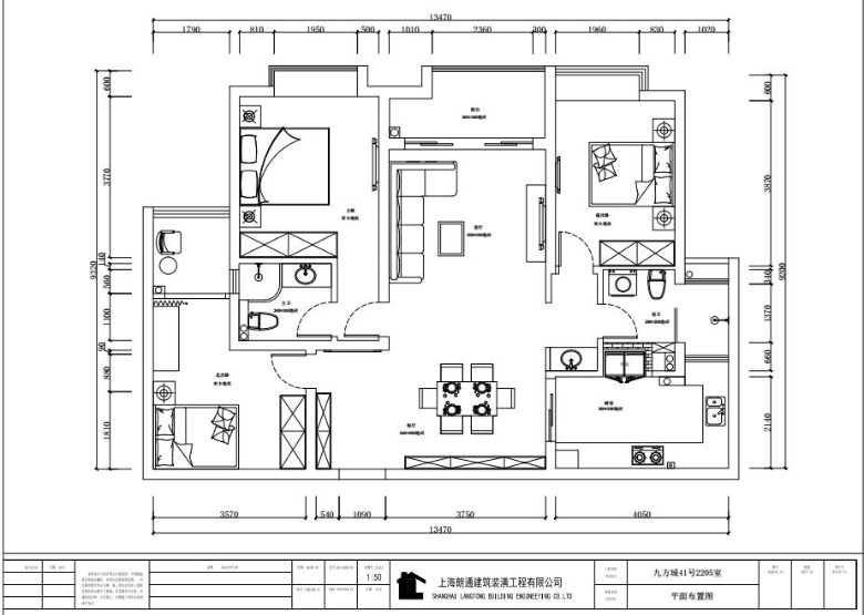
                                                                九方城简美风格效果图欣赏    
施工单位:朗通装饰
项目地址:九方城
设计单位:朗通设计团队
设计师:许安龙
装修风格:简美风格
户型面积:126平
主要材料:有色乳胶漆、壁纸、地砖、地板等等。
设计理念:美式简约风格以简单的实用性为主,这种设计风格深受人们的喜欢,一个简单干净的空间更让人感到舒适,复杂的外部设计反而容易让人疲惫。美国是一个崇尚民主的国家。在这种风格下,美式的装修自然而然就不那么拘束了,没有太多造作的修饰与约束,不经意中也成就了另外一种休闲式的浪漫,而美国的文化又是一个移植文化为主导的脉络,它有着欧罗巴的奢侈与贵气,但又结合了美洲大陆这块水土的不羁。 这样结合的结果是剔除了许多羁绊,但又能找寻文化根基的新的怀旧、贵气加大气而又不失自在与随意的风格。






爆料有奖!关注昆山论坛抖音号,抖音搜索“昆山论坛”,或搜索抖音号:ksbbs
 
离线truth
级别: 昆山新人
发帖
210
昆币
229 枚
1791楼 发表于: 2018-06-08 , 来自:江苏省0==
和我朋友家的户型差不多
爆料有奖!关注昆山论坛抖音号,抖音搜索“昆山论坛”,或搜索抖音号:ksbbs
 
在线朗通装饰
级别: 家装商家

发帖
16952
昆币
14166 枚
1792楼 发表于: 2018-06-09 , 来自:江苏省0==
感谢您的关注
爆料有奖!关注昆山论坛抖音号,抖音搜索“昆山论坛”,或搜索抖音号:ksbbs
 
在线朗通装饰
级别: 家装商家

发帖
16952
昆币
14166 枚
1793楼 发表于: 2018-06-10 , 来自:江苏省0==
朗通奋斗在装企已经十三年之久了,这期间离不开业主们对我们的支持!朗通很感谢客户们不仅自己家装修找我们,同时还把我们推荐给客户。朗通能够结识你们真的是朗通的荣幸!在以后的道路上朗通愿意结识更多的业主朋友,让我们一起携手努力,为打造完美的家而奋斗!
爆料有奖!关注昆山论坛抖音号,抖音搜索“昆山论坛”,或搜索抖音号:ksbbs
 
在线朗通装饰
级别: 家装商家

发帖
16952
昆币
14166 枚
1794楼 发表于: 2018-06-11 , 来自:江苏省0==
                                                               生活从不需要敷衍,精装房改造的初衷艺术
施工单位:朗通装饰
项目地址:巴城杨林新村
设计单位:朗通设计团队
设计师:张伟
装修风格:简美风格
户型面积:280
主要材料:有色乳胶漆、壁纸、地砖、地板等等。
设计理念:将风格定位在简约美式是设计师和业主相对一致的想法,将生活风格无声幻化渗入居家空间这也是朗通装饰对这次设计共同期许。当每一寸设计都有细节,每一处细节都是生活,这便是我们想要的,它已不在是什么设计风格,是我们对生活热爱的样子!




爆料有奖!关注昆山论坛抖音号,抖音搜索“昆山论坛”,或搜索抖音号:ksbbs
 
离线bubby
级别: 昆山新人
发帖
291
昆币
306 枚
1795楼 发表于: 2018-06-13 , 来自:江苏省0==
又签了一套大别墅
爆料有奖!关注昆山论坛抖音号,抖音搜索“昆山论坛”,或搜索抖音号:ksbbs
 
在线朗通装饰
级别: 家装商家

发帖
16952
昆币
14166 枚
1796楼 发表于: 2018-06-14 , 来自:江苏省0==
欢迎您关注朗通装饰,我们公司在昆山已经有十几年的历史了,时间的沉淀积累了丰富的管理经验,设计团队与施工团队配合的默契与团结、与各材料商诚信合作产生的性价比优势、以及给予业主朋友强大售后的服务。这些造就了朗通在昆山极大的影响,也是众多业主选择朗通的精髓所在!
装修日记http://www.ksbbs.com/read-htm-tid-4497784.html  
公司网址:[url][urlend2] (精彩案例邀您欣赏)
爆料有奖!关注昆山论坛抖音号,抖音搜索“昆山论坛”,或搜索抖音号:ksbbs
 
在线朗通装饰
级别: 家装商家

发帖
16952
昆币
14166 枚
1797楼 发表于: 2018-06-15 , 来自:江苏省0==
天气越来越热,小编建议大家及时补充水分但应少喝饮料。果汁、可乐、雪碧、汽水等饮料中,含有较多的糖精和电解质,喝多了会对胃肠产生不良刺激,影响消化和食欲。因此,夏季应多喝白开水或淡盐(糖)开水。
装修日记http://www.ksbbs.com/read-htm-tid-4497784.html  
公司网址:http://[url][urlend6]/ (精彩案例邀您欣赏)
爆料有奖!关注昆山论坛抖音号,抖音搜索“昆山论坛”,或搜索抖音号:ksbbs
 
在线朗通装饰
级别: 家装商家

发帖
16952
昆币
14166 枚
1798楼 发表于: 2018-06-16 , 来自:江苏省0==
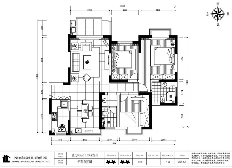
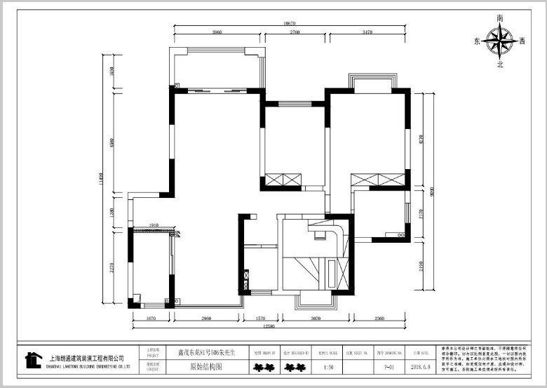
                                                  鑫茂东苑现代简约风格欣赏
施工单位:朗通装饰
项目地址:鑫茂东苑
设计单位:朗通设计团队
设计师:邹邹
装修风格:现代简约风格
户型面积:135
主要材料:有色乳胶漆、地砖、地板等等。
设计说明:现代设计追求的是空间的实用性和灵活性。居室空间是根据相互间的功能关系组合而成的,而且功能空间相互渗透,空间的利用率达到最高。空间组织不再是以房间组合为主,空间的划分也不再局限于硬质墙体,而是更注重会客、餐饮、学习、睡眠等功能空间的逻辑关系。








[ 此帖被朗通装饰在2018-06-16 09:56重新编辑 ]
爆料有奖!关注昆山论坛抖音号,抖音搜索“昆山论坛”,或搜索抖音号:ksbbs
 
美女离线粉粉的红色
级别: 昆山新人
发帖
354
昆币
378 枚
1799楼 发表于: 2018-06-17 , 来自:江苏省0==
现代风格看着很清爽哦
爆料有奖!关注昆山论坛抖音号,抖音搜索“昆山论坛”,或搜索抖音号:ksbbs
 
快速回复
限76 字节
批量上传需要先选择文件,再选择上传
 
上一个 下一个