夜间模式
打赏中心
每日签到
幸运转盘
论坛帮助
活动聚焦
手机客户端
道具中心
商家认证
勋章中心
诚信认证
快捷通道
关闭
您还没有登录,快捷通道只有在登录后才能使用。
立即登录
还没有帐号? 赶紧
注册一个
论坛首页
论坛导航
商家
招聘
装修
昆山优选
小红娘
分类信息
二手房
昆山视窗
登录
注册
找回密码
帖子
用户
版块
帖子
搜索
论坛首页
>
论坛导航
>
酸甜苦辣话装修
>
朗通装饰
>
金鹰国际大平层,只有你想不到的,没有我们做不到的!
发帖
回复
返回列表
新帖
20040
阅读
0
回复
金鹰国际大平层,只有你想不到的,没有我们做不到的!
[复制链接]
扫描到手机
论坛小编教你如何扫二维码
上一主题
下一主题
离线
朗通装饰
UID:534273
注册时间
2011-09-09
最后登录
2025-10-17
发帖
16955
搜Ta的帖子
精华
0
昆币
14171
访问TA的空间
加好友
用道具
级别:
家装商家
发帖
16955
昆币
14171 枚
加关注
发消息
只看楼主
使用道具
电梯直达
楼主
发表于: 2017-04-01
,
来自:江苏省
0==
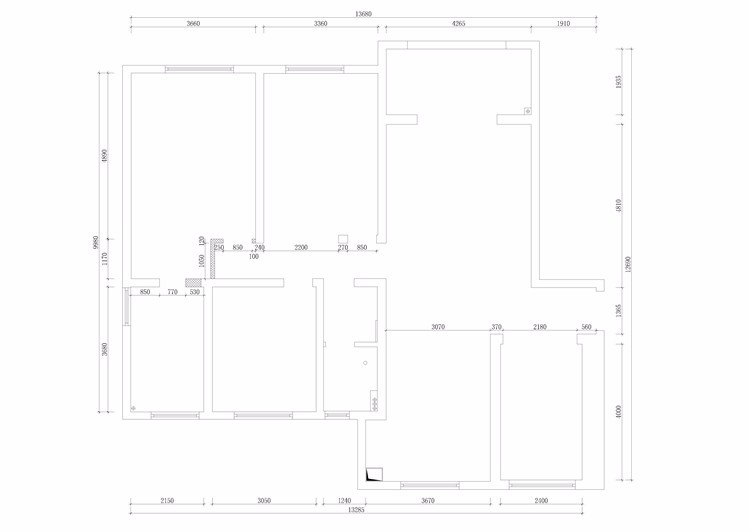
户型结构:大平层
施工单位:
朗通装饰
项目地址:金鹰国际
设计单位:
朗通设计团队
装修风格:现代风格
主要材料:
有色乳胶漆、大理石、硬包、壁纸、地砖、地板等等。
设计理念:
现代风格是比较流行的一种风格,追求时尚与潮流,非常注重居室空间的布局与使用功能的完美结合。现代主义也称功能主义,是工业社会的产物,其最早的代表是建于德国魏玛的包豪斯学校。其主题是:要创造一个能使艺术家接受现代生产最省力的环境---机械的环境。这种技术美学的思想是本世纪室内装饰最大的革命。
效果图:
原始结构图:
本帖评分记录
共
条评分
热点推荐
【晚8点红包】金价陷入癫狂!最近你身边买黄金的人多起来了吗?
九十年代初老昆山印象,这些老地方你还记得多少?
有没有想过父母百年以后埋在哪里,是在老家还是子女生活的地方
“昆山好物”上架“胖东来”!
昆山农商银行2026校园招聘丨梦想已启航
年产值超10亿元!昆山又一高端智能项目投产!
本周精选:电商运营.品检.普工.业务助理.文员.设备工程师.生产管理.叉车工
新学的豌豆苗牛肉拌饭,简易清爽又好吃
昆山胜一记外摆菜暂停,其他家外摆生意还好吗
维信诺旗下苏州国显创新科技公司增资至20亿,增幅19900%
昆山市中医院10月20日-10月26日门诊出诊表
“上我车!”昆山护士街头救人一句话太戳心了
全城首发!低密豪宅专家绿城来了
更真实更放心!昆山论坛婚恋平台上线
关注昆山论坛抖音官方号ksbbs爆料有奖
昆山论坛招聘网,随时随地找工作
一秒极速下载昆山论坛APP,好玩
昆山分类信息重磅发布 闲置可以换钱
爆料有奖!关注昆山论坛抖音号,抖音搜索“昆山论坛”,或搜索抖音号:ksbbs
回复
举报
发帖
回复
返回列表
http://sy.ksbbs.com
访问内容超出本站范围,不能确定是否安全
继续访问
取消访问
快速回复
限76 字节
如果您在写长篇帖子又不马上发表,建议存为草稿
您目前还是游客,请
登录
或
注册
进入高级模式
文字颜色
发 布
回复后跳转到最后一页
上一个
下一个
隐藏
快速跳转
社会民生
聚焦昆山
立法直通车
昆山分类信息
昆山市教育局
昆山公交集团
昆山市交通运输局
消费维权
美丽昆山
昆山百事通
文明昆山
全民反诈
城市生活
玉山广场
昆友圈
走遍天下
昆山招聘
KBS车友会
昆山体育
房产装修
房产大家谈
房产租售
酸甜苦辣话装修
生活资讯
家有儿女
美食天地
花草宠物
交友婚恋
闲花文字
数码摄影
认证商家
论坛商家
昆山商情
社区站务
论坛事务
删帖声明
关闭
关闭
选中
1
篇
全选
喜欢就打赏个小红包吧
请选择打赏金额
1元
5元
10元
30元
100元
200元
您是游客,登陆后可以使用赏金钱包
赏金钱包支付
微信扫码支付
赏
我要提现
用微信扫描二维码完成支付
电话:0512-57993030
工作日 8:30-17:00在线
广告热线:18012662666
紧急联系:18888186330