勿忘这美好
以文字拿起
生活中的另一支画笔
收获属于你的精彩
业主与设计师的合影

2018实景案例
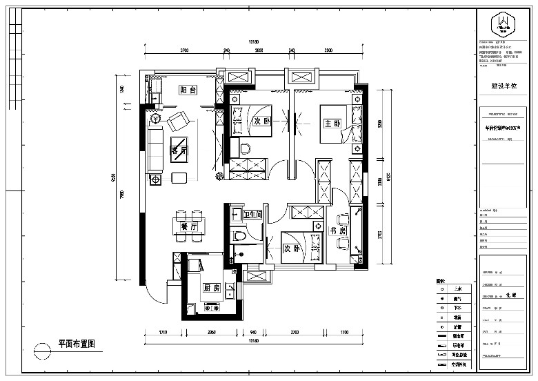
户型:三室二厅一卫
面积:120㎡
风格:北欧
设计说明:本案中的三居室采用了现代北欧风格装修,因为主人公是一对年轻的夫妻,还有一个可爱的女儿,经过深入的沟通与交流,设计师全局考虑,在总体布局上,尽量满足他们一家人的生活需求,主要运用色彩之间的相互呼应,创造一个温馨、舒适的北欧生活。
附:平面布置图和全景三维图
客厅
▲客厅通过白色与木色来提亮空间,搭配简约而别致的功能性家居,整体整体看上去淡雅、柔和,鹿头小抱枕随意摆放着,对面电视柜一侧设计了2层层板,两排可爱的布娃娃,共同打破了客厅灰白色空间带来的单调,既活跃了色彩,又呈现出了北欧风特有的随意自然。
在这里的阳台,绿植和自行车更配哦,当阳光洒进来的那一刻,这样的摆放,更显得这个家的青春活力。
餐厅
▲餐厅的布置简单而不失清新,墙面5个不同大小的圆形装饰,结合两种不同风格的餐椅,为白色空间整个空间做了必要的点缀,防止空间过于冰冷和单调。精修的灯饰与格子桌布搭配在一起,让就餐环境显得更有情调。
厨房
▲厨房的墙面以深灰色为主色调,搭配原木色橱柜,考虑厨房的空间范围,设计师局部设计了吊柜,业主的日常收纳完全够用,整个空间的布局,提供了非常实用的餐厨体验。
过道
▲过道以白色主色、木色地板,齐排的收纳柜,中间以黑色空格面设计,可以摆放艺术装饰品作为空间装饰,搭配墙面艺术壁画,整体流线感很不错。
主卧
▲卧室以优雅沉静的深蓝色为主,简简单单的装饰,被浓浓的舒适感包围着,窗帘选用条纹的设计,与床头背景接近,增强了空间整体的稳重感,结合白色羽毛灯饰,简约、优美;闲暇时刻,一杯咖啡、一本书、一个抱枕,就这么舒服的窝一个上午~
书房
卫生间
扫我看作品集
(郑重承诺,所有图片为实景照片)
(电话、微信:15962697359)
[ 此帖被印象水仙设计在2018-06-10 11:04重新编辑 ]