夜间模式
  • 216278阅读
  • 64回复

开贴记录下第一次装修的点点滴滴,简美风走起~ [复制链接]

上一主题 下一主题
离线hwjmama
级别: 昆山过客
发帖
44
昆币
56 枚
只看楼主 使用道具 电梯直达
楼主  发表于: 2018-01-18 , 来自:四川省0==
家装日记
小区: 云山诗意
套内面积: *** (平米)
预算: *** 万
开工日期: 2017-11-12
装修风格: 美式
装修方式: 半包
装修公司: 1918
楼主和老公真的是很随意的两个人,当初买房随便看了个楼盘就买了,然后买完就后悔了好多年,这次挑装修公司也是只看了一家,真的只看了一家啊方总,我们都没比过价,心也是够大,希望这次你别让我们后悔啊。目前已经开工两个月,暂时满意,只是暂时啊,还要看接下来的表现。开此帖一来为了记录,二来也是为了对装修公司起个监督作用。
本帖评分记录
浅陌--7 昆币 +1 - 2018-01-29
猫咪来了 昆币 +10 恭喜恭喜,常来更新 2018-01-25
2条评分昆币+11
爆料有奖!关注昆山论坛抖音号,抖音搜索“昆山论坛”,或搜索抖音号:ksbbs
 
美女离线夏日清凉
发帖
4384
昆币
7601 枚
沙发  发表于: 2018-01-18 , 来自:江苏省0==
恭喜恭喜
爆料有奖!关注昆山论坛抖音号,抖音搜索“昆山论坛”,或搜索抖音号:ksbbs
 
离线德华哥
级别: 昆山新人
发帖
131
昆币
230 枚
板凳  发表于: 2018-01-18 , 来自:江苏省0==
恭喜LZ~~~据说咱家的木工跑你家去了。。。。

老仲干活效率一顶三~~~有啥想法速度交代好,否则一眯眼活儿就过了。。
爆料有奖!关注昆山论坛抖音号,抖音搜索“昆山论坛”,或搜索抖音号:ksbbs
 
离线hwjmama
级别: 昆山过客
发帖
44
昆币
56 枚
地板  发表于: 2018-01-18 , 来自:江苏省0==
菜鸟第一次发帖,还没搞清楚状况怎么就发出去了,真是丢人。
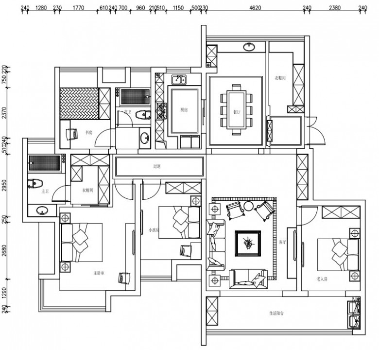
好吧,从哪说起呢,先放个原始户型图吧,户型还算端正,美中不足就是每个房间都太小

经过改造设计后户型图如下,主卧做了较大改动,把过道的面积改到了主卧,这样就有了我的衣帽间。客卫做成干湿分离,开了个门给小房间出入,这样的问题就是小房间门对着洗手台的镜子,求有效解决办法,按风水学来说,镜子对着房门不吉利啊。
爆料有奖!关注昆山论坛抖音号,抖音搜索“昆山论坛”,或搜索抖音号:ksbbs
 
离线hwjmama
级别: 昆山过客
发帖
44
昆币
56 枚
4楼 发表于: 2018-01-18 , 来自:江苏省0==
德华哥:恭喜LZ~~~据说咱家的木工跑你家去了。。。。
老仲干活效率一顶三~~~有啥想法速度交代好,否则一眯眼活儿就过了。。 (2018-01-18 14:23) 

确实才第一天进场我去一看,都打好两个柜子了,然后我还真后悔了,榻榻米柜子打完后感觉榻榻米太短了,这会通知他们给我拆了改成书柜不知道会不会被打
爆料有奖!关注昆山论坛抖音号,抖音搜索“昆山论坛”,或搜索抖音号:ksbbs
 
离线hwjmama
级别: 昆山过客
发帖
44
昆币
56 枚
5楼 发表于: 2018-01-18 , 来自:江苏省0==
说起当时选择装修公司,楼主觉得挑两家比较比较就ok了,奈何某装修公司太傲娇不肯上门量房,必须先交定金,做生意是这样的吗?这点必须给咱方总一个赞啊,二话不说顶着寒风就亲自上门量房来了。然后某男说不找别家了就这家了。本来只是想设计下自装的,因为楼主老爸是做水电的,结果就变成半包了,老爸对此一直耿耿于怀,楼主我可是冒着家庭不和谐的风险签下这合同哒。

水电做完后老爸总算开金口说了句,生活做的蛮好,看图




爆料有奖!关注昆山论坛抖音号,抖音搜索“昆山论坛”,或搜索抖音号:ksbbs
 
级别: 禁止发言
发帖
6518
昆币
6576 枚
6楼 发表于: 2018-01-18 , 来自:江苏省0==
用户被禁言,该主题自动屏蔽!
爆料有奖!关注昆山论坛抖音号,抖音搜索“昆山论坛”,或搜索抖音号:ksbbs
 
离线hwjmama
级别: 昆山过客
发帖
44
昆币
56 枚
7楼 发表于: 2018-01-18 , 来自:江苏省0==
楼主的朋友装的都是美式风格,楼主甚是喜欢,顺理成章的我也没研究别的风格,就它了。
但是呢楼主刚入手一套老破小学区房,手头资金有限,这套房子呢也不是我的最终归宿,所以楼主选择装修材料还是有所收敛,以经济实惠为主,so瓷砖买的都是杂牌,见贴出来的效果
厨房

客厅

进门玄关

阳台

目前就贴好这些,卫生间还没开始,前段时间温度降到冰点,瓦工说墙上贴了怕干不了会掉,所以先贴的地上,地上贴好了木工就能进场,这样木工瓦工同时开工,指望年前能把木工活做完
爆料有奖!关注昆山论坛抖音号,抖音搜索“昆山论坛”,或搜索抖音号:ksbbs
 
离线德华哥
级别: 昆山新人
发帖
131
昆币
230 枚
8楼 发表于: 2018-01-18 , 来自:江苏省0==
水电图手机拍好~~~以后打眼避开~

返个小工?应该没事~~一起抽根烟研究研究下~~
爆料有奖!关注昆山论坛抖音号,抖音搜索“昆山论坛”,或搜索抖音号:ksbbs
 
帅哥离线1918设计
级别: 禁止发声
发帖
9059
昆币
10185 枚
9楼 发表于: 2018-01-18 , 来自:江苏省0==
感谢业主选择1918,您的选择是我们最大的动力。感谢认可
在施工过程中有任何问题可以@七星管家服务
在此感谢
[url][urlend3]

爆料有奖!关注昆山论坛抖音号,抖音搜索“昆山论坛”,或搜索抖音号:ksbbs
 
快速回复
限76 字节
如果您提交过一次失败了,可以用”恢复数据”来恢复帖子内容
 
上一个 下一个