夜间模式
  • 76655阅读
  • 58回复

小窝成长记~~~ [复制链接]

上一主题 下一主题
发帖
557
昆币
1016 枚
只看楼主 使用道具 电梯直达
楼主  发表于: 2018-06-15 , 来自:未知0==
家装日记
小区: 中南
套内面积: 88 (平米)
预算: * 万
开工日期: 2018-06-08
装修风格: 混搭
装修方式: 半包
装修公司: 朗通

本帖评分记录
加油521 昆币 +1 -来自昆山论坛APP 2019-06-21
猫咪来了 昆币 +10 图文并茂 鼓励分享 多多来更新 2018-06-28
带刺的小辣椒 昆币 +1 - 2018-06-24
昆山封阳台 昆币 +1 - 2018-06-16
昆山伟宏门窗 昆币 +1 - 2018-06-15
5条评分昆币+14
爆料有奖!关注昆山论坛抖音号,抖音搜索“昆山论坛”,或搜索抖音号:ksbbs
 
发帖
557
昆币
1016 枚
沙发  发表于: 2018-06-15 , 来自:未知0==
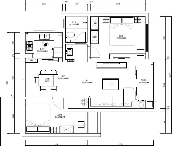
先上个设计平面图吧,效果图太大,说传不上去
爆料有奖!关注昆山论坛抖音号,抖音搜索“昆山论坛”,或搜索抖音号:ksbbs
 
发帖
557
昆币
1016 枚
板凳  发表于: 2018-06-15 , 来自:未知0==
效果图:

爆料有奖!关注昆山论坛抖音号,抖音搜索“昆山论坛”,或搜索抖音号:ksbbs
 
发帖
557
昆币
1016 枚
地板  发表于: 2018-06-15 , 来自:浙江0==
先说下今天的进度吧,水电师傅刚发来照片,开始开槽了,卧室和客厅完成,厨房和卫生间要到节后了,

爆料有奖!关注昆山论坛抖音号,抖音搜索“昆山论坛”,或搜索抖音号:ksbbs
 
美女离线昆山伟宏门窗
级别: 禁止发言

发帖
18978
昆币
32400 枚
4楼 发表于: 2018-06-15 , 来自:江苏省0==
用户被禁言,该主题自动屏蔽!
爆料有奖!关注昆山论坛抖音号,抖音搜索“昆山论坛”,或搜索抖音号:ksbbs
 
美女离线荣盛门窗
级别: 禁止发言

发帖
7737
昆币
8552 枚
5楼 发表于: 2018-06-16 , 来自:江苏省0==
用户被禁言,该主题自动屏蔽!
爆料有奖!关注昆山论坛抖音号,抖音搜索“昆山论坛”,或搜索抖音号:ksbbs
 
发帖
557
昆币
1016 枚
6楼 发表于: 2018-06-17 , 来自:浙江0==
房子是16年交付的,看到网上装修公司各种坑,就打算自装,找工人铲墙,敲墙,后感觉自装太麻烦,也没有太多时间跑,就搁置了。今年三月,重新找装修公司装修,找了三家装修公司,通过对比装修公司的价格,口碑,最终还是选择了朗通,希望在以后的装修过程中一切顺利。
爆料有奖!关注昆山论坛抖音号,抖音搜索“昆山论坛”,或搜索抖音号:ksbbs
 
美女离线xiaofengw
级别: 昆山过客
发帖
19
昆币
19 枚
7楼 发表于: 2018-06-17 , 来自:江苏省0==
恭喜楼主开工大吉
爆料有奖!关注昆山论坛抖音号,抖音搜索“昆山论坛”,或搜索抖音号:ksbbs
 
在线朗通装饰
级别: 家装商家

发帖
16952
昆币
14166 枚
8楼 发表于: 2018-06-17 , 来自:江苏省0==
恭喜楼主开工大吉
爆料有奖!关注昆山论坛抖音号,抖音搜索“昆山论坛”,或搜索抖音号:ksbbs
 
发帖
557
昆币
1016 枚
9楼 发表于: 2018-06-17 , 来自:未知0==
那些年的遗失:你的效果图是平面图,还是VR动图截取的?其实很想要平面图的,可只有动图[表情] (2018-06-17 18:00) 

效果图是设计设计师给我的,不知道是不是截取的
爆料有奖!关注昆山论坛抖音号,抖音搜索“昆山论坛”,或搜索抖音号:ksbbs
 
快速回复
限76 字节
如果您在写长篇帖子又不马上发表,建议存为草稿
 
上一个 下一个