夜间模式
  • 285184阅读
  • 198回复

我的新家实现完美脱变 [复制链接]

上一主题 下一主题
离线山光水色
级别: 昆山新人
发帖
132
昆币
184 枚
只看楼主 使用道具 电梯直达
楼主  发表于: 2018-07-05 , 来自:江苏省0==
家装日记
小区: 江南理想
套内面积: 154 (平米)
预算: 60 万
开工日期: 暂定
装修风格: 简约
装修方式: 半包
装修公司: 印象水仙
16年买的房子,现在想想还好趁早买了,当然了我买房子是为了住,不是为了卖的涨不涨自然也影响不是很大。


今年女儿都2岁了,家里现在开始准备装修,也去看过几个公司,但是要么设计方面不能满足我的需求,要么就超了自己的预算不得放弃,要么主材不符合自己的要求。


后来一个朋友介绍了一家让我了解了解,说还行,可以看看;还推荐了一些他们公司的作品给我看的,后来我仔细翻阅看了下,里面所展示的风格我还是比较喜欢的,之后我也在昆山论坛上进行深入的了解后。才决定联系他们的负责人,我们在微信上沟通了我对家的风格和要求,(一直以来都非常喜欢原木色,所以家具准备找厂家定制自己喜欢的,家里地面也全铺地板。


后来我又抽空去了一趟他们公司,跟他们的金总详谈了下,他给我出的预算也比较透明,整体的预算也是按照我们自己的预算走的,我本人也是比较果断的人,当天就付了设计定金,第二天就去家里量房了,现在正在给我家做三维图呢。

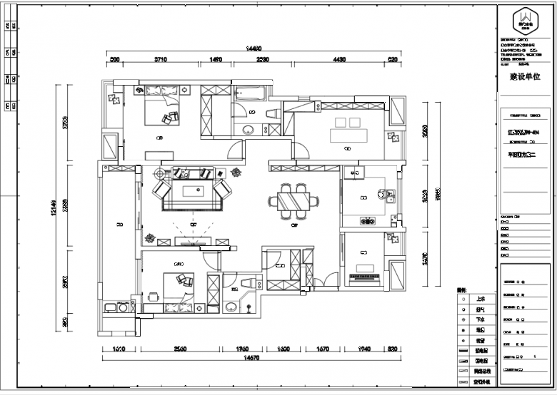
今天先附上原始图:


本帖评分记录
昆山封阳台 昆币 +1 -来自昆山论坛APP 2018-11-03
昆山伟宏门窗 昆币 +1 - 2018-07-06
2条评分昆币+2
爆料有奖!关注昆山论坛抖音号,抖音搜索“昆山论坛”,或搜索抖音号:ksbbs
 
离线15950922341
级别: 禁止发言
发帖
21
昆币
40 枚
沙发  发表于: 2018-07-05 , 来自:江苏省0==
用户被禁言,该主题自动屏蔽!
爆料有奖!关注昆山论坛抖音号,抖音搜索“昆山论坛”,或搜索抖音号:ksbbs
 
级别: 昆山新人
发帖
396
昆币
477 枚
板凳  发表于: 2018-07-06 , 来自:江苏省0==
恭喜楼主,楼主家平面图有设计出来吗想看看
爆料有奖!关注昆山论坛抖音号,抖音搜索“昆山论坛”,或搜索抖音号:ksbbs
 
离线fanxing820
级别: 昆山名人
发帖
85778
昆币
8381 枚
地板  发表于: 2018-07-06 , 来自:江苏省0==
恭喜了,
爆料有奖!关注昆山论坛抖音号,抖音搜索“昆山论坛”,或搜索抖音号:ksbbs
 
级别: 禁止发言
发帖
6518
昆币
6576 枚
4楼 发表于: 2018-07-06 , 来自:江苏省0==
用户被禁言,该主题自动屏蔽!
爆料有奖!关注昆山论坛抖音号,抖音搜索“昆山论坛”,或搜索抖音号:ksbbs
 
美女离线昆山伟宏门窗
级别: 禁止发言

发帖
18978
昆币
32400 枚
5楼 发表于: 2018-07-06 , 来自:江苏省0==
用户被禁言,该主题自动屏蔽!
爆料有奖!关注昆山论坛抖音号,抖音搜索“昆山论坛”,或搜索抖音号:ksbbs
 
离线山光水色
级别: 昆山新人
发帖
132
昆币
184 枚
6楼 发表于: 2018-07-07 , 来自:江苏省0==
花刺痛了命脉:恭喜楼主,楼主家平面图有设计出来吗想看看 (2018-07-06 10:11) 

可以的哦哦
爆料有奖!关注昆山论坛抖音号,抖音搜索“昆山论坛”,或搜索抖音号:ksbbs
 
离线山光水色
级别: 昆山新人
发帖
132
昆币
184 枚
7楼 发表于: 2018-07-07 , 来自:江苏省0==
昆山伟宏门窗:恭喜楼主开工大吉[表情] [表情] 需要封阳台可以上我们厂看看哦!
 (2018-07-06 22:11) 

好的
爆料有奖!关注昆山论坛抖音号,抖音搜索“昆山论坛”,或搜索抖音号:ksbbs
 
离线郑小蕾
级别: 昆山新人
发帖
154
昆币
204 枚
8楼 发表于: 2018-07-09 , 来自:江苏省0==
山光水色:可以的哦哦[表情]
[图片] (2018-07-07 17:25) 

多大的?
爆料有奖!关注昆山论坛抖音号,抖音搜索“昆山论坛”,或搜索抖音号:ksbbs
 
离线偶然璐过
级别: 昆山新人
发帖
221
昆币
301 枚
9楼 发表于: 2018-07-11 , 来自:江苏省0==
哪个小区的呀?
爆料有奖!关注昆山论坛抖音号,抖音搜索“昆山论坛”,或搜索抖音号:ksbbs
 
快速回复
限76 字节
批量上传需要先选择文件,再选择上传
 
上一个 下一个