夜间模式
  • 301892阅读
  • 849回复

现代温馨风之中大未来城 [复制链接]

上一主题 下一主题
美女离线冬日旭暖
发帖
1153
昆币
2160 枚
只看楼主 使用道具 电梯直达
楼主  发表于: 2018-07-20 , 来自:江苏省0==
家装日记
小区: 中大未来城
套内面积: 143 (平米)
预算: 30 万
开工日期: 2018-04-15
装修风格: 简约
装修方式: 半包
装修公司: 鸿舜璞艺

从装修开始到现在已经3个月了,目前木工全部结束了,已经在油漆工了,开贴一来是想回顾一下之前经历过的总总,二来是监督一下我选的这家装修公司是否靠谱。   城西的这套房子是我的第二套房子,在我们自己和双方父母资助下付了首付就买了个期房,一等就是2年,17年6月份拿到房子就没考虑要装修,一直闲置到现在。因为家里2个娃都还小,要等到2020年9月份才会去那边上学,后来想着早晚要装修的 ,今年年后就开始着手了。第一套房子是婚房是直接让我舅装修的,我爸我那些亲戚一起做的,(有木工、水泥工)没有啥风格。这套房子就想着要好好装修设计一下,所以当时3月初的时候我选了几家装修公司。我在论坛报名了,论坛给我选了4家有名气大的,有没听说过的,我自己找了郎通,千挑万选之下,经过各家报价看现场后, 3月底选了论坛推荐的---------鸿舜璞艺(之前从没听说过的)。第一次见面就很有感觉,设计师 思路很清晰,把我们想要的都考虑的很细到,特别是带我老爸(资深木工)看了他们现场后 更肯定了 ,所以凭着感觉下单了。为了避开清明时节与纷纷,我们正式开工已经是4月中旬了。反正我们不急就慢慢装呗。
本帖评分记录
zhonggui415 昆币 +1 -来自昆山论坛APP 2019-08-03
悠然2018 昆币 +1 -来自昆山论坛APP 2018-11-24
冬日旭暖 昆币 +1 -来自昆山论坛APP 2018-11-08
妖夭的小清新 昆币 +3 鼓励分享 2018-08-09
网红小姐姐 昆币 +1 鼓励分享 2018-08-02
朱华仙 昆币 +1 -来自昆山论坛APP 2018-07-21
昆山伟宏门窗 昆币 +1 - 2018-07-20
7条评分昆币+9
爆料有奖!关注昆山论坛抖音号,抖音搜索“昆山论坛”,或搜索抖音号:ksbbs
 
美女离线冬日旭暖
发帖
1153
昆币
2160 枚
沙发  发表于: 2018-07-20 , 来自:江苏省0==

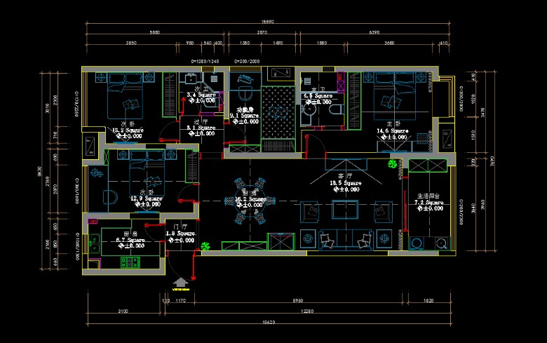
效果图
爆料有奖!关注昆山论坛抖音号,抖音搜索“昆山论坛”,或搜索抖音号:ksbbs
 
美女离线冬日旭暖
发帖
1153
昆币
2160 枚
板凳  发表于: 2018-07-20 , 来自:江苏省0==
http://[url][urlend6]/s128/siteDetailCase?cid=1651这个链接是璞艺公司在论坛上记录的进程,我就懒得去整理照片了,大家直接进去了解一下吧。
爆料有奖!关注昆山论坛抖音号,抖音搜索“昆山论坛”,或搜索抖音号:ksbbs
 
美女离线冬日旭暖
发帖
1153
昆币
2160 枚
地板  发表于: 2018-07-20 , 来自:江苏省0==

手机里有一些之前做木工的照片 拿出来分享一下。
爆料有奖!关注昆山论坛抖音号,抖音搜索“昆山论坛”,或搜索抖音号:ksbbs
 
美女离线冬日旭暖
发帖
1153
昆币
2160 枚
4楼 发表于: 2018-07-20 , 来自:江苏省0==
第一次在装修贴里发帖子,都没人来踩踩的
爆料有奖!关注昆山论坛抖音号,抖音搜索“昆山论坛”,或搜索抖音号:ksbbs
 
离线朗通装饰
级别: 家装商家

发帖
17000
昆币
14248 枚
5楼 发表于: 2018-07-20 , 来自:江苏省0==
恭喜楼主开工大吉,在装修过程中有什么不懂的,可以随时问小编哦!
爆料有奖!关注昆山论坛抖音号,抖音搜索“昆山论坛”,或搜索抖音号:ksbbs
 
离线朗通装饰
级别: 家装商家

发帖
17000
昆币
14248 枚
6楼 发表于: 2018-07-20 , 来自:江苏省0==
您好
楼主这次没有合作成功,期待下次的合作
下面的是我们的业主写的装修日记,已经入住了哦!可以给有需求的业主参考装修知识,学到更多装修经验,在找装修公司的路上少走弯路!
天成佳园业主分享装修经验日记http://www.ksbbs.com/read-htm-tid-5453076.html
装修日记http://www.ksbbs.com/read-htm-tid-4497784.html  
公司网址:http://[url][urlend6]/ (精彩案例邀您欣赏)
爆料有奖!关注昆山论坛抖音号,抖音搜索“昆山论坛”,或搜索抖音号:ksbbs
 
美女离线网红小姐姐

发帖
2926
昆币
6896 枚
7楼 发表于: 2018-07-20 , 来自:江苏省0==
几期的呀
爆料有奖!关注昆山论坛抖音号,抖音搜索“昆山论坛”,或搜索抖音号:ksbbs
 
美女离线冬日旭暖
发帖
1153
昆币
2160 枚
8楼 发表于: 2018-07-20 , 来自:江苏省0==
回 网红小姐姐 的帖子
网红小姐姐:几期的呀 (2018-07-20 15:09)

3期的啊 你几期几栋?
本帖评分记录
网红小姐姐 昆币 +1 -来自昆山论坛APP 2018-07-20
1条评分昆币+1
爆料有奖!关注昆山论坛抖音号,抖音搜索“昆山论坛”,或搜索抖音号:ksbbs
 
美女离线冬日旭暖
发帖
1153
昆币
2160 枚
9楼 发表于: 2018-07-20 , 来自:江苏省0==
回 朗通装饰 的帖子
朗通装饰:您好
楼主这次没有合作成功,期待下次的合作[表情]
下面的是我们的业主写的装修日记,已经入住了哦!可以给有需求的业主参考装修知识,学到更多装修经验,在找装修公司的路上少走弯路!
天成佳园业主分享装修经验日记http://www.ksbbs.com/read-htm-tid-5453076.html
装修日记htt .. (2018-07-20 14:56)

嗯 ,好的 ,谢谢  ,之前差一点要选你家了
爆料有奖!关注昆山论坛抖音号,抖音搜索“昆山论坛”,或搜索抖音号:ksbbs
 
快速回复
限76 字节
如果您提交过一次失败了,可以用”恢复数据”来恢复帖子内容
 
上一个 下一个