夜间模式
  • 66695阅读
  • 125回复

[装修]【叶氏环保家装】设计案例鉴赏 [复制链接]

上一主题 下一主题
美女离线叶氏設計整装
级别: 禁止发声

发帖
9163
昆币
7397 枚
只看楼主 使用道具 电梯直达
楼主  发表于: 2018-07-29 , 来自:江苏省0==

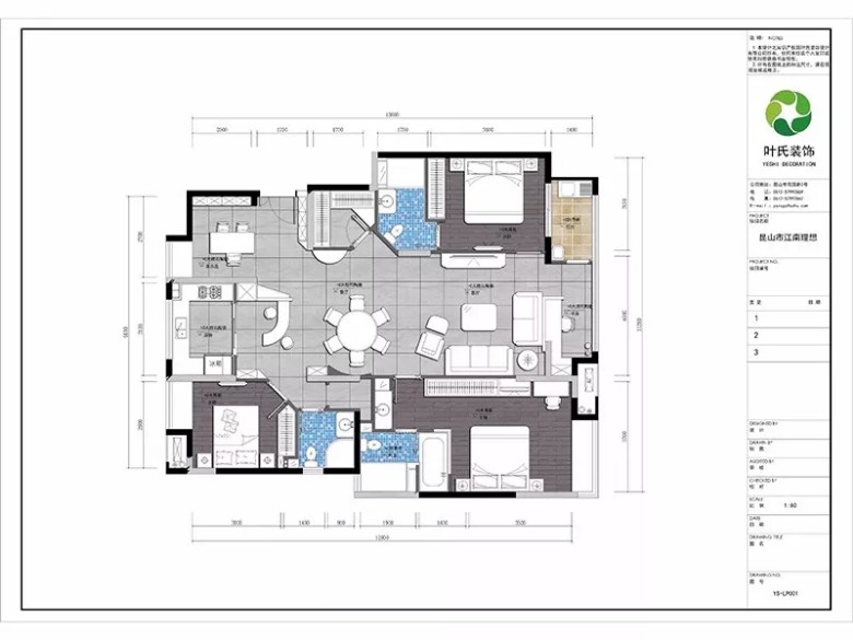
项目名称:华润国际
项目面积:130㎡
项目风格:现代简约
项目性质:全包
项目造价:160000
设计团队:枼氏设计机构
施工单位:叶氏环保家装

>>>>  客厅效果图





>>>>  餐厅效果图




>>>>  卫生间效果图




>>>>  主卧效果图




>>>>  儿童房效果图



>>>>  平面图


[ 此帖被叶氏装饰在2018-09-21 10:34重新编辑 ]
本帖评分记录
一且随缘 昆币 +1 -来自昆山论坛APP 2019-03-25
李天 昆币 +1 -来自昆山论坛APP 2018-12-13
城市的夜空 昆币 +1 -来自昆山论坛APP 2018-08-19
盛世繁华 昆币 +1 -来自昆山论坛APP 2018-08-19
叶氏装饰客服 昆币 +1 -来自昆山论坛APP 2018-08-06
逝水年华01 昆币 +1 -来自昆山论坛APP 2018-08-03
再见只是陌生 昆币 +1 -来自昆山论坛APP 2018-07-29
在水一方01 昆币 +1 -来自昆山论坛APP 2018-07-29
逆夏流年 昆币 +1 -来自昆山论坛APP 2018-07-29
王小草 昆币 +1 -来自昆山论坛APP 2018-07-29
12
14条评分昆币+14
爆料有奖!关注昆山论坛抖音号,抖音搜索“昆山论坛”,或搜索抖音号:ksbbs
 
美女离线叶氏設計整装
级别: 禁止发声

发帖
9163
昆币
7397 枚
沙发  发表于: 2018-07-29 , 来自:江苏省0==
本帖评分记录
逆夏流年 昆币 +1 -来自昆山论坛APP 2018-08-03
1条评分昆币+1
爆料有奖!关注昆山论坛抖音号,抖音搜索“昆山论坛”,或搜索抖音号:ksbbs
 
美女离线叶氏設計整装
级别: 禁止发声

发帖
9163
昆币
7397 枚
板凳  发表于: 2018-07-29 , 来自:江苏省0==
本帖评分记录
逆夏流年 昆币 +1 -来自昆山论坛APP 2018-08-03
1条评分昆币+1
爆料有奖!关注昆山论坛抖音号,抖音搜索“昆山论坛”,或搜索抖音号:ksbbs
 
美女离线叶氏設計整装
级别: 禁止发声

发帖
9163
昆币
7397 枚
地板  发表于: 2018-07-29 , 来自:江苏省0==
◢   现代北欧风格  ◣
项目面积:120平方米
项目地址:江南理想
装修价格:全包150000
设计施工:叶氏装饰团队
装修风格:现代北欧风格

业主是80后,追求现代和时尚,所以我们的设计师设计了一款现代北欧风。现代北欧风格简约而不简单,抛弃了传统家具的繁复,注重功能;直角的线和面勾勒出一种简单的美,让业主觉得生活如此简单。素色的格调淋漓尽致地展现了卧室的质朴、舒适、干净。下面就跟小叶子一起去欣赏一下吧。

▼客厅 Living room






▼餐厅 Dining room




▼厨房 The kitchen






▼卧室 Bedroom




▼卫生间 Restroom

[ 此帖被叶氏装饰在2018-07-31 12:25重新编辑 ]
本帖评分记录
逆夏流年 昆币 +1 -来自昆山论坛APP 2018-08-03
1条评分昆币+1
爆料有奖!关注昆山论坛抖音号,抖音搜索“昆山论坛”,或搜索抖音号:ksbbs
 
美女离线叶氏設計整装
级别: 禁止发声

发帖
9163
昆币
7397 枚
4楼 发表于: 2018-07-30 , 来自:江苏省0==
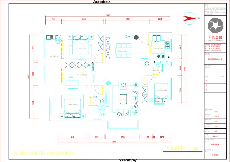
案例信息
项目地址:昆山·华润国际
项目面积:140㎡
项目风格:混搭风北欧
装修价格:半包15.6w
设计团队:叶氏装饰



[ 此帖被叶氏装饰在2018-08-01 11:13重新编辑 ]
本帖评分记录
逆夏流年 昆币 +1 -来自昆山论坛APP 2018-08-03
1条评分昆币+1
爆料有奖!关注昆山论坛抖音号,抖音搜索“昆山论坛”,或搜索抖音号:ksbbs
 
美女离线叶氏設計整装
级别: 禁止发声

发帖
9163
昆币
7397 枚
5楼 发表于: 2018-07-30 , 来自:江苏省0==
设计团队:叶氏装饰案例信息
项目地址:昆山·观湖壹号14#

项目面积:156㎡
项目风格:混搭风
装修价格:半包15.6w(含柜子)










[ 此帖被叶氏装饰在2018-08-01 11:14重新编辑 ]
本帖评分记录
逆夏流年 昆币 +1 -来自昆山论坛APP 2018-08-03
1条评分昆币+1
爆料有奖!关注昆山论坛抖音号,抖音搜索“昆山论坛”,或搜索抖音号:ksbbs
 
美女离线叶氏設計整装
级别: 禁止发声

发帖
9163
昆币
7397 枚
6楼 发表于: 2018-07-31 , 来自:江苏省0==
项目地址:江南理想
155 平方米
设计施工:叶氏装饰团队
155㎡ 设 计 方 案

为了让空间利用率达到最高
155㎡的户型——
叶氏的设计师们处处设有惊喜
入户右侧是开放式的品茶室
厨房与餐厅旁设计超摩登的弧形吧台
阳台虽小也利用成书房
女主人独立的衣帽间
……

每一个细节
都把业主心里想要的元素隐藏其中
奢华中彰显温馨
客 厅 参 考 设 计 图

暖色调的客厅更能让人感受到家的温馨
灰色的沙发背景墙搭配蓝色的靠垫
使客厅颜色更显丰富


客厅与阳台之间选择透明的布衣隔断
深灰色的布帘与沙发抱枕相搭配
并不显突兀,而透明的布帘让视觉延伸
并没有阻隔视线,让客厅变小。
餐 厅 参 考 设 计 图

餐厅的设计是很多业主喜欢的部分
圆形餐桌既时尚又带有中国元素
加上餐桌旁具有意境的墙画
更是充满了浓浓的中国特色

为了避免空间的浪费
设计师还在餐桌旁设计了
一个很有特色的餐边柜
餐边柜不仅可以收纳
还可以摆放一些摆饰和红酒
非常的时髦和实用
主 卧 参 考 设 计 图


[ 此帖被叶氏装饰在2018-08-01 11:31重新编辑 ]
本帖评分记录
逆夏流年 昆币 +1 -来自昆山论坛APP 2018-08-03
1条评分昆币+1
爆料有奖!关注昆山论坛抖音号,抖音搜索“昆山论坛”,或搜索抖音号:ksbbs
 
美女离线叶氏設計整装
级别: 禁止发声

发帖
9163
昆币
7397 枚
7楼 发表于: 2018-08-01 , 来自:江苏省0==
项目面积:150平方米
装修价格:全包230000
设计施工:叶氏装饰团队
装修风格:现代风格设计
项目地址:昆玉九里
本帖评分记录
叶氏装饰 昆币 +1 -来自昆山论坛APP 2018-08-04
逆夏流年 昆币 +1 -来自昆山论坛APP 2018-08-03
2条评分昆币+2
爆料有奖!关注昆山论坛抖音号,抖音搜索“昆山论坛”,或搜索抖音号:ksbbs
 
级别: 昆山过客
发帖
59
昆币
74 枚
8楼 发表于: 2018-08-01 , 来自:江苏省0==
不同风格不同感觉 好看
本帖评分记录
叶氏装饰 昆币 +1 -来自昆山论坛APP 2018-08-04
逆夏流年 昆币 +1 -来自昆山论坛APP 2018-08-03
2条评分昆币+2
爆料有奖!关注昆山论坛抖音号,抖音搜索“昆山论坛”,或搜索抖音号:ksbbs
 
美女离线叶氏設計整装
级别: 禁止发声

发帖
9163
昆币
7397 枚
9楼 发表于: 2018-08-02 , 来自:江苏省0==
项目名称:中航九方城
项目面积:127㎡
项目风格:现代轻奢
项目性质:全包
项目造价:15w
设计团队:叶氏环保家装
施工单位:叶氏环保家装




















[ 此帖被叶氏装饰在2018-09-08 10:53重新编辑 ]
本帖评分记录
逆夏流年 昆币 +1 -来自昆山论坛APP 2018-08-03
1条评分昆币+1
爆料有奖!关注昆山论坛抖音号,抖音搜索“昆山论坛”,或搜索抖音号:ksbbs
 
快速回复
限76 字节
如果您提交过一次失败了,可以用”恢复数据”来恢复帖子内容
 
上一个 下一个