夜间模式
  • 59787阅读
  • 35回复

老房子改造,一家6口人的新家。 [复制链接]

上一主题 下一主题
离线时光凉薄
级别: 昆山新人
发帖
115
昆币
128 枚
只看楼主 使用道具 电梯直达
楼主  发表于: 2018-07-29 , 来自:江苏省0==
家装日记
小区: 仁心苑
套内面积: 112 (平米)
预算: 12.6 万
开工日期: 2018-07-10
装修风格: 旧房改造
装修方式: 全包
装修公司: YZZS
装饰公司:YZZS
设计师:YZZS唐设计师
建面:128平(使用面积112平,公摊12%)
全包预算:12.6万(不含封阳台和软装)
设计费:4000

拎包入住总预算:25
风格:现代简约
监理:武经理

       17年下半年,我的第二个宝宝问世啦。因为是昆山本地人,家里的老房子本来就住了5口人(父母,媳妇,我,老大)。随着老二的降临,家里的居住空间也显得捉襟见肘。仁心苑是我当时买来投资的,一直放在那里作为群租房租给二房东了。 现在自己想把他回收,用于自住。
        因为我平时比较忙,对装修也不是很懂,然后是通过昆山论坛找的公司给我进行设计的。
        其实我这个人比较懒,论坛给我推荐了四家,我最终也就看了2家,然后比较满意其中一家的服务,就直接定了。
         万众期待的效果图华丽登场啦




(设计师给的是VR效果图,我截图的,更多细节图我稍后添加到贴子里)
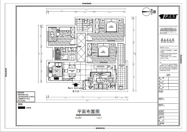
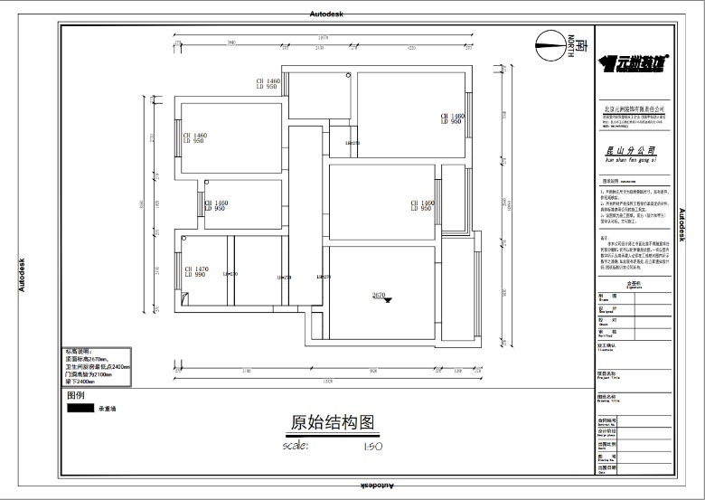
户型:坐北朝南,两个阳台(这个感觉值了),三房两厅一厨两卫。
       收房那天,YZZS的师傅准时到达,装备齐全,水平仪、空鼓锤等等。首先发现我家的大门竟然装的是歪的(这个连设计师都没发现);然后在房里到处敲敲打打,发现了十几处小小的空鼓;还有,地面不平,而且有裂缝……问题一大堆。收房这事儿还是个专业活儿,要不是YZZS,估计我也就稀里糊涂地验收了。
       验房结束后,我想让师傅和我一起去物业反映(我一个人没底气),师傅二话没说,和我一起去找物业,当面指出问题,告知施工工艺,让施工方整改。
     选了一个良辰吉日,开了工
    
[ 此帖被时光凉薄在2018-07-29 16:36重新编辑 ]
本帖评分记录
小熊维尼- 昆币 +1 -来自昆山论坛APP 2018-08-23
西西小baby 昆币 +1 -来自昆山论坛APP 2018-08-23
昆山伟宏门窗 昆币 +1 - 2018-07-31
3条评分昆币+3
爆料有奖!关注昆山论坛抖音号,抖音搜索“昆山论坛”,或搜索抖音号:ksbbs
 
离线时光凉薄
级别: 昆山新人
发帖
115
昆币
128 枚
沙发  发表于: 2018-07-29 , 来自:江苏省0==
陆续会继续更新,请大家持续关注哦
爆料有奖!关注昆山论坛抖音号,抖音搜索“昆山论坛”,或搜索抖音号:ksbbs
 
级别: 禁止发言
发帖
6518
昆币
6576 枚
板凳  发表于: 2018-07-29 , 来自:江苏省0==
用户被禁言,该主题自动屏蔽!
爆料有奖!关注昆山论坛抖音号,抖音搜索“昆山论坛”,或搜索抖音号:ksbbs
 
美女离线昆山专筑装饰
发帖
3778
昆币
4865 枚
地板  发表于: 2018-07-29 , 来自:江苏省0==
用户被禁言,该主题自动屏蔽!
爆料有奖!关注昆山论坛抖音号,抖音搜索“昆山论坛”,或搜索抖音号:ksbbs
 
帅哥离线1918设计
级别: 禁止发声
发帖
9059
昆币
10185 枚
4楼 发表于: 2018-07-29 , 来自:江苏省0==

恭喜楼主开工大吉!
也欢迎您关注更多的风格装修案例: [url][urlend4]
业主写的装修日记:http://www.ksbbs.com/read-htm-tid-3949202.html
地址:庐北路340-342(花园路向北100米左右)
爆料有奖!关注昆山论坛抖音号,抖音搜索“昆山论坛”,或搜索抖音号:ksbbs
 
美女离线昆山和美门窗
级别: 禁止发言
发帖
7597
昆币
22038 枚
5楼 发表于: 2018-07-30 , 来自:北京市0==
用户被禁言,该主题自动屏蔽!
爆料有奖!关注昆山论坛抖音号,抖音搜索“昆山论坛”,或搜索抖音号:ksbbs
 
帅哥离线lujp84

发帖
13314
昆币
19957 枚
爆料
1
6楼 发表于: 2018-07-30 , 来自:江苏省0==
看来真不错啊
爆料有奖!关注昆山论坛抖音号,抖音搜索“昆山论坛”,或搜索抖音号:ksbbs
 
美女离线荣盛门窗
级别: 禁止发言

发帖
7737
昆币
8552 枚
7楼 发表于: 2018-07-31 , 来自:江苏省0==
用户被禁言,该主题自动屏蔽!
爆料有奖!关注昆山论坛抖音号,抖音搜索“昆山论坛”,或搜索抖音号:ksbbs
 
美女离线昆山伟宏门窗
级别: 禁止发言

发帖
18978
昆币
32400 枚
8楼 发表于: 2018-07-31 , 来自:江苏省0==
用户被禁言,该主题自动屏蔽!
爆料有奖!关注昆山论坛抖音号,抖音搜索“昆山论坛”,或搜索抖音号:ksbbs
 
离线时光凉薄
级别: 昆山新人
发帖
115
昆币
128 枚
9楼 发表于: 2018-08-01 , 来自:江苏省0==


我家最难处理的地方就是冰箱没有地方放
因为厨房太小了
家里人又多,我必须得买个对开门的冰箱。
本来初步设计是把卫生间和餐厅的那面墙扣一个U字形出来
但后来熬不过我的父亲,用了比较保守的方案,还是把冰箱放在了厨房。
牺牲了厨房的操作区域

爆料有奖!关注昆山论坛抖音号,抖音搜索“昆山论坛”,或搜索抖音号:ksbbs
 
快速回复
限76 字节
批量上传需要先选择文件,再选择上传
 
上一个 下一个