
江南理想120㎡美式 | 叶氏环保家装
设计公司:叶氏环保家装体验馆
设计师:朱杭平(设计总监)
设计风格:美式
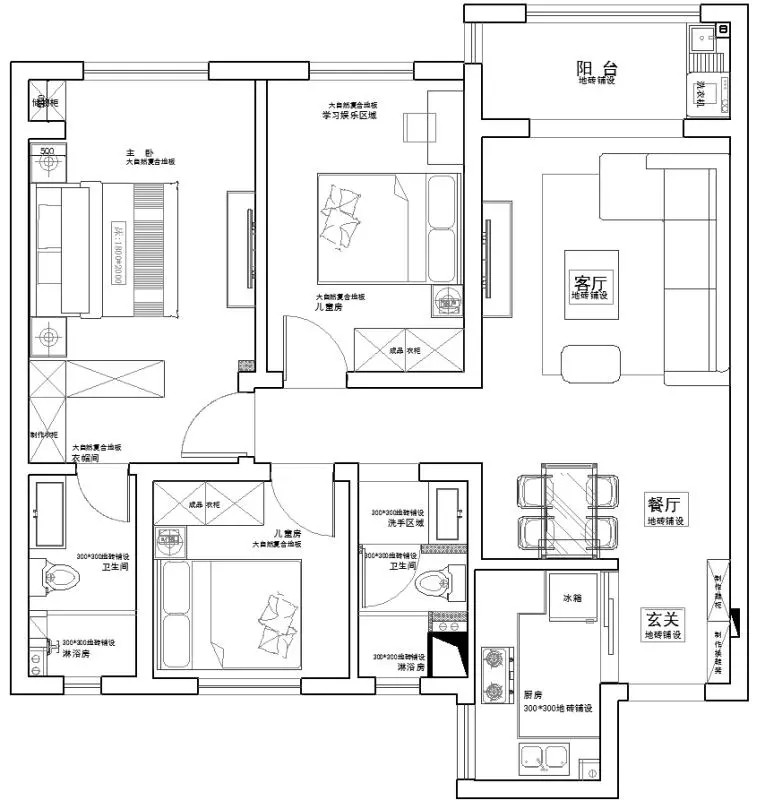
面积:120㎡
空间格局:三房
>>>> 客厅效果图

整体空间以蓝、作为色彩基调,使用中性色调中和,与美式家具、挂画、灯具相搭配,营造了精致细腻而又自由浪漫的空间格调。
>>>> 餐厅效果图

餐桌上一束清新的百合,仿佛是从画里走出来一样,还裹挟着泥土的芬芳。
>>>> 厨房效果图

通过空间高度和空间材质的不同而产生的视线变化对空间进行分割,充分考虑到开放性和灵活性。
>>>> 主卧效果图

静谧时卧室的亮点,琉璃着光阴,也绚烂着芳华,在光影流年中,坚守着质感的追求。
>>>> 儿童房效果图

蓝色和绿色,在儿童房里融汇,如宝石,如梦幻,浪漫而又轻盈。动物成群结队,在床单上畅快游动,一如孩子的童年,活泼、欢快。
>>>> 卫生间效果图