夜间模式
打赏中心
每日签到
幸运转盘
论坛帮助
活动聚焦
手机客户端
道具中心
商家认证
勋章中心
诚信认证
快捷通道
关闭
您还没有登录,快捷通道只有在登录后才能使用。
立即登录
还没有帐号? 赶紧
注册一个
论坛首页
论坛导航
商家
招聘
装修
昆山优选
小红娘
分类信息
二手房
昆山视窗
登录
注册
找回密码
帖子
用户
版块
帖子
搜索
论坛首页
>
论坛导航
>
昆山商情
>
【叶氏环保家装】德标工程及环保建材
发帖
回复
返回列表
上一页
1
2
3
4
5
6
...13
下一页
到第
页
确认
新帖
图片投票
68294
阅读
126
回复
[装修]
【叶氏环保家装】德标工程及环保建材
[复制链接]
扫描到手机
论坛小编教你如何扫二维码
上一主题
下一主题
美女离线
叶氏設計整装
UID:504832
注册时间
2011-01-08
最后登录
2023-09-13
发帖
9163
搜Ta的帖子
精华
0
昆币
7397
访问TA的空间
加好友
用道具
级别:
禁止发声
发帖
9163
昆币
7397 枚
加关注
发消息
只看该作者
10楼
发表于: 2018-08-02
,
来自:浙江
0==
案例信息
项目地址:中航九方城
项目面积:125㎡
项目风格:北欧风
装修价格:全包15万
设计施工:叶氏环保家装
本帖评分记录
叶氏装饰客服
昆币
+1
-来自
昆山论坛APP
2018-08-06
半夏好时光
昆币
+1
-来自
昆山论坛APP
2018-08-03
皮皮妈咪
昆币
+1
-来自
昆山论坛APP
2018-08-03
王小草
昆币
+1
-来自
昆山论坛APP
2018-08-03
在水一方01
昆币
+1
-来自
昆山论坛APP
2018-08-03
逝水年华01
昆币
+1
-来自
昆山论坛APP
2018-08-03
再见只是陌生
昆币
+1
-来自
昆山论坛APP
2018-08-03
逆夏流年
昆币
+1
-来自
昆山论坛APP
2018-08-03
叶氏装饰
昆币
+1
-来自
昆山论坛APP
2018-08-03
共
9
条评分
,
昆币
+9
爆料有奖!关注昆山论坛抖音号,抖音搜索“昆山论坛”,或搜索抖音号:ksbbs
引用
举报
美女离线
叶氏設計整装
UID:504832
注册时间
2011-01-08
最后登录
2023-09-13
发帖
9163
搜Ta的帖子
精华
0
昆币
7397
访问TA的空间
加好友
用道具
级别:
禁止发声
发帖
9163
昆币
7397 枚
加关注
发消息
只看该作者
11楼
发表于: 2018-08-03
,
来自:浙江
0==
项目面积:180平方米
装修价格:全包226000
设计施工:叶氏装饰团队
装修风格:现代中式风格设计
项目地址:华润国际
本帖评分记录
叶氏装饰客服
昆币
+1
-来自
昆山论坛APP
2018-08-06
半夏好时光
昆币
+1
-来自
昆山论坛APP
2018-08-03
皮皮妈咪
昆币
+1
-来自
昆山论坛APP
2018-08-03
王小草
昆币
+1
-来自
昆山论坛APP
2018-08-03
在水一方01
昆币
+1
-来自
昆山论坛APP
2018-08-03
逝水年华01
昆币
+1
-来自
昆山论坛APP
2018-08-03
再见只是陌生
昆币
+1
-来自
昆山论坛APP
2018-08-03
逆夏流年
昆币
+1
-来自
昆山论坛APP
2018-08-03
叶氏装饰
昆币
+1
-来自
昆山论坛APP
2018-08-03
共
9
条评分
,
昆币
+9
爆料有奖!关注昆山论坛抖音号,抖音搜索“昆山论坛”,或搜索抖音号:ksbbs
引用
举报
美女离线
叶氏設計整装
UID:504832
注册时间
2011-01-08
最后登录
2023-09-13
发帖
9163
搜Ta的帖子
精华
0
昆币
7397
访问TA的空间
加好友
用道具
级别:
禁止发声
发帖
9163
昆币
7397 枚
加关注
发消息
只看该作者
12楼
发表于: 2018-08-03
,
来自:江苏省
0==
案例信息
项目地址:博威黄金海岸
项目面积:142㎡
项目风格:美式
装修价格:全包17万
设计施工:叶氏环保家装
[ 此帖被叶氏装饰在2018-08-04 16:20重新编辑 ]
内容来自 iPhone 手机客户端
本帖评分记录
再见只是陌生
昆币
+1
-来自
昆山论坛APP
2018-08-18
叶氏装饰客服
昆币
+1
-来自
昆山论坛APP
2018-08-06
逆夏流年
昆币
+1
-来自
昆山论坛APP
2018-08-05
叶氏装饰
昆币
+1
-来自
昆山论坛APP
2018-08-04
共
4
条评分
,
昆币
+4
爆料有奖!关注昆山论坛抖音号,抖音搜索“昆山论坛”,或搜索抖音号:ksbbs
引用
举报
美女离线
叶氏設計整装
UID:504832
注册时间
2011-01-08
最后登录
2023-09-13
发帖
9163
搜Ta的帖子
精华
0
昆币
7397
访问TA的空间
加好友
用道具
级别:
禁止发声
发帖
9163
昆币
7397 枚
加关注
发消息
只看该作者
13楼
发表于: 2018-08-04
,
来自:江苏省
0==
案例信息
项目地址:昆山·中大未来城
项目面积:119㎡
项目风格:混搭风
装修价格:半包13万
设计施工:叶氏环保家装
本帖评分记录
再见只是陌生
昆币
+1
-来自
昆山论坛APP
2018-08-18
叶氏装饰客服
昆币
+1
-来自
昆山论坛APP
2018-08-06
逆夏流年
昆币
+1
-来自
昆山论坛APP
2018-08-05
叶氏装饰
昆币
+1
-来自
昆山论坛APP
2018-08-04
共
4
条评分
,
昆币
+4
爆料有奖!关注昆山论坛抖音号,抖音搜索“昆山论坛”,或搜索抖音号:ksbbs
引用
举报
美女离线
叶氏設計整装
UID:504832
注册时间
2011-01-08
最后登录
2023-09-13
发帖
9163
搜Ta的帖子
精华
0
昆币
7397
访问TA的空间
加好友
用道具
级别:
禁止发声
发帖
9163
昆币
7397 枚
加关注
发消息
只看该作者
14楼
发表于: 2018-08-04
,
来自:江苏省
0==
案例信息
项目地址:和风雅颂
项目类型:住宅
项目性质:全部
项目面积:142㎡
项目风格:现代
项目价格:17万
设计+施工:叶氏环保家装
本帖评分记录
再见只是陌生
昆币
+1
-来自
昆山论坛APP
2018-08-18
王小草
昆币
+1
-来自
昆山论坛APP
2018-08-13
叶氏装饰客服
昆币
+1
-来自
昆山论坛APP
2018-08-06
逆夏流年
昆币
+1
-来自
昆山论坛APP
2018-08-05
叶氏装饰
昆币
+1
-来自
昆山论坛APP
2018-08-04
共
5
条评分
,
昆币
+5
爆料有奖!关注昆山论坛抖音号,抖音搜索“昆山论坛”,或搜索抖音号:ksbbs
引用
举报
美女离线
叶氏設計整装
UID:504832
注册时间
2011-01-08
最后登录
2023-09-13
发帖
9163
搜Ta的帖子
精华
0
昆币
7397
访问TA的空间
加好友
用道具
级别:
禁止发声
发帖
9163
昆币
7397 枚
加关注
发消息
只看该作者
15楼
发表于: 2018-08-05
,
来自:江苏省
0==
◢ 现代风格 ◣
项目地址: 九扬香郡
项目面积:110 平米
装修费用:全包14万
装修风格:现代风格
设计施工:叶氏装饰
[ 此帖被叶氏装饰在2018-08-05 11:59重新编辑 ]
本帖评分记录
再见只是陌生
昆币
+1
-来自
昆山论坛APP
2018-08-18
叶氏装饰客服
昆币
+1
-来自
昆山论坛APP
2018-08-06
叶氏装饰
昆币
+1
-来自
昆山论坛APP
2018-08-05
共
3
条评分
,
昆币
+3
爆料有奖!关注昆山论坛抖音号,抖音搜索“昆山论坛”,或搜索抖音号:ksbbs
引用
举报
美女离线
叶氏設計整装
UID:504832
注册时间
2011-01-08
最后登录
2023-09-13
发帖
9163
搜Ta的帖子
精华
0
昆币
7397
访问TA的空间
加好友
用道具
级别:
禁止发声
发帖
9163
昆币
7397 枚
加关注
发消息
只看该作者
16楼
发表于: 2018-08-05
,
来自:浙江
0==
项目名称:中航九方城
项目面积:90㎡
项目风格:现代简约
项目性质:全包
项目造价:12w
设计团队:叶氏环保家装
施工单位:叶氏环保家装
[ 此帖被叶氏装饰在2018-08-06 16:29重新编辑 ]
内容来自 iPhone 手机客户端
本帖评分记录
再见只是陌生
昆币
+1
-来自
昆山论坛APP
2018-08-18
叶氏装饰客服
昆币
+1
-来自
昆山论坛APP
2018-08-06
叶氏装饰
昆币
+1
-来自
昆山论坛APP
2018-08-06
共
3
条评分
,
昆币
+3
爆料有奖!关注昆山论坛抖音号,抖音搜索“昆山论坛”,或搜索抖音号:ksbbs
引用
举报
美女离线
叶氏設計整装
UID:504832
注册时间
2011-01-08
最后登录
2023-09-13
发帖
9163
搜Ta的帖子
精华
0
昆币
7397
访问TA的空间
加好友
用道具
级别:
禁止发声
发帖
9163
昆币
7397 枚
加关注
发消息
只看该作者
17楼
发表于: 2018-08-06
,
来自:浙江
0==
项目名称:昆山 · 江南理想20#
项目面积:168㎡
项目风格:现代简约
项目性质:全包
项目造价:28w
设计团队:叶氏环保家装
施工单位:叶氏环保家装
小叶子有话说:
《西虹市首富》自上映以来票房一路飙升,很多人因此而幻想如果自己突然有10个亿该怎么花?但毕竟现实生活中并没有这种天上掉馅饼的好事,自己努力挣的钱才是自己的;同理,自己用心装的房,才是最舒适的!
今天小叶子推荐的这款168㎡的现代简约案例是以化繁为简为原则,从家具到灯具的边框造型都利用了大量的原木元素,为了打造出简洁美观又自然舒适的氛围。空间上的大片留白让房间显得干净而宽敞,成就更大的视觉空间,白色的墙壁与浅色木地板的搭配让整个空间变得整洁闪亮。
▼玄关 The entrance
入户玄关是收纳式鞋柜,
上下分体错落有致。下柜放主人的鞋子,上层可以用作储纳空间,是非常好的收纳
设计,功能也很强大。
▼客厅 Living room
喜欢干净清爽的生活方式,于是有了素雅的白墙和原木家具;喜欢无拘无束的生活空间,于是让整个空间简单而自然。客厅清新唯美的治愈系配色,有种特别的渲染力,搭配自然纹理的木家具,有种让人停下来慢慢欣赏的想法,瞬间被这种宁静的气氛所感染。
▼餐厅 Dining room
餐厅周边空间宽阔,淡雅的空间色彩赋予餐厅素朴的格调,一盏金色分子灯,营造温馨的就餐环境。为了避免空旷,餐桌旁的意境画进行了点缀作用。
▼厨房 The kitchen
厨房移门采用黑色边框,与原木色相映衬显得简洁大方。
厨房内白色橱柜明亮整洁,空间还大,白色系的装修设计更加美观自然,看着十分舒服。
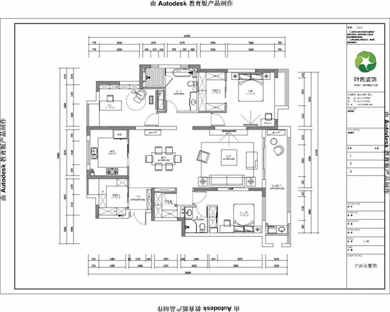
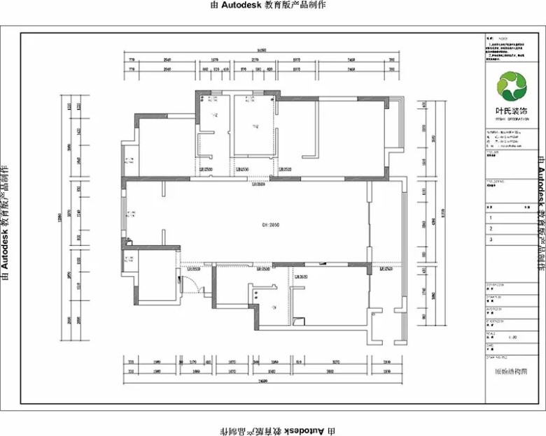
▼平面图 The plan
[ 此帖被叶氏装饰在2018-08-06 22:38重新编辑 ]
内容来自 iPhone 手机客户端
本帖评分记录
再见只是陌生
昆币
+1
-来自
昆山论坛APP
2018-08-18
叶氏装饰
昆币
+1
-来自
昆山论坛APP
2018-08-10
共
2
条评分
,
昆币
+2
爆料有奖!关注昆山论坛抖音号,抖音搜索“昆山论坛”,或搜索抖音号:ksbbs
引用
举报
美女离线
叶氏設計整装
UID:504832
注册时间
2011-01-08
最后登录
2023-09-13
发帖
9163
搜Ta的帖子
精华
0
昆币
7397
访问TA的空间
加好友
用道具
级别:
禁止发声
发帖
9163
昆币
7397 枚
加关注
发消息
只看该作者
18楼
发表于: 2018-08-07
,
来自:浙江
0==
项目名称:公元壹号
项目面积:110㎡
项目风格:现代简约
项目性质:全包
项目造价:13.5w
设计团队:叶氏环保家装
施工单位:叶氏环保家装
本帖评分记录
再见只是陌生
昆币
+1
-来自
昆山论坛APP
2018-08-18
叶氏装饰
昆币
+1
-来自
昆山论坛APP
2018-08-10
叶氏装饰客服
昆币
+1
-来自
昆山论坛APP
2018-08-07
共
3
条评分
,
昆币
+3
爆料有奖!关注昆山论坛抖音号,抖音搜索“昆山论坛”,或搜索抖音号:ksbbs
引用
举报
美女离线
叶氏設計整装
UID:504832
注册时间
2011-01-08
最后登录
2023-09-13
发帖
9163
搜Ta的帖子
精华
0
昆币
7397
访问TA的空间
加好友
用道具
级别:
禁止发声
发帖
9163
昆币
7397 枚
加关注
发消息
只看该作者
19楼
发表于: 2018-08-07
,
来自:浙江
0==
项目名称:中南世纪城
项目面积:97㎡
项目风格:现代简约
项目性质:全包
项目造价:12w
设计团队:叶氏环保家装
施工单位:叶氏环保家装
本帖评分记录
再见只是陌生
昆币
+1
-来自
昆山论坛APP
2018-08-18
叶氏装饰
昆币
+1
-来自
昆山论坛APP
2018-08-08
共
2
条评分
,
昆币
+2
爆料有奖!关注昆山论坛抖音号,抖音搜索“昆山论坛”,或搜索抖音号:ksbbs
引用
举报
发帖
回复
返回列表
上一页
1
2
3
4
5
6
...13
下一页
到第
页
确认
http://sy.ksbbs.com
访问内容超出本站范围,不能确定是否安全
继续访问
取消访问
快速回复
限76 字节
如果您在写长篇帖子又不马上发表,建议存为草稿
您目前还是游客,请
登录
或
注册
进入高级模式
文字颜色
发 布
回复后跳转到最后一页
上一个
下一个
隐藏
快速跳转
社会民生
聚焦昆山
立法直通车
昆山分类信息
昆山市教育局
昆山公交集团
昆山市交通运输局
消费维权
美丽昆山
昆山百事通
文明昆山
全民反诈
城市生活
玉山广场
昆友圈
走遍天下
昆山招聘
KBS车友会
昆山体育
房产装修
房产大家谈
房产租售
酸甜苦辣话装修
生活资讯
家有儿女
美食天地
花草宠物
交友婚恋
闲花文字
数码摄影
认证商家
论坛商家
昆山商情
社区站务
论坛事务
删帖声明
关闭
关闭
选中
1
篇
全选
喜欢就打赏个小红包吧
请选择打赏金额
1元
5元
10元
30元
100元
200元
您是游客,登陆后可以使用赏金钱包
赏金钱包支付
微信扫码支付
赏
我要提现
用微信扫描二维码完成支付
电话:0512-57993030
工作日 8:30-17:00在线
广告热线:18012662666
紧急联系:18888186330