夜间模式
  • 60915阅读
  • 52回复

【中木泾美墅】开启装修模式,开帖为自己留下回忆 [复制链接]

上一主题 下一主题
美女离线真真yy
发帖
1924
昆币
2284 枚
只看楼主 使用道具 电梯直达
楼主  发表于: 2018-08-29 , 来自:江苏省0==
家装日记
小区: 中木泾美墅
套内面积: 300 (平米)
预算:
开工日期: 2018-08-21
装修风格: 中式
装修方式: 半包
装修公司: 1918装饰
文采不好,写个流水账,给自己留下回忆!
在此感谢方总以及公司的设计师刘工,不厌其烦的改动方案与效果图。希望在接下来的日子里面合作愉快,为我的装修旅程留下美好回忆。



本帖评分记录
安居木门厂 昆币 +10 - 2018-09-17
foxriver1025 昆币 +1 -来自昆山论坛APP 2018-09-03
昆山伟宏门窗 昆币 +1 - 2018-08-29
妖夭的小清新 昆币 +10 图文并茂 2018-08-29
装修版客服 昆币 +10 鼓励分享 2018-08-29
5条评分昆币+32
爆料有奖!关注昆山论坛抖音号,抖音搜索“昆山论坛”,或搜索抖音号:ksbbs
 
美女离线真真yy
发帖
1924
昆币
2284 枚
沙发  发表于: 2018-08-29 , 来自:江苏省0==
由于孩子的年纪越来越大,想重新装修的欲望越来越强,好在有朋友推荐,顺理成章的完成了签约,看日子,开工,一切顺利的进行中。


[ 此帖被真真yy在2018-08-29 14:09重新编辑 ]
爆料有奖!关注昆山论坛抖音号,抖音搜索“昆山论坛”,或搜索抖音号:ksbbs
 
美女离线真真yy
发帖
1924
昆币
2284 枚
板凳  发表于: 2018-08-29 , 来自:江苏省0==
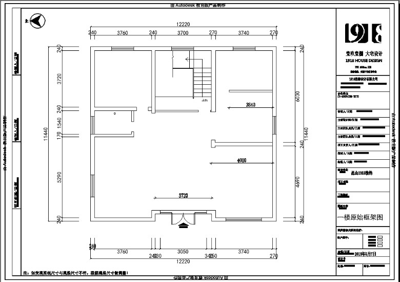
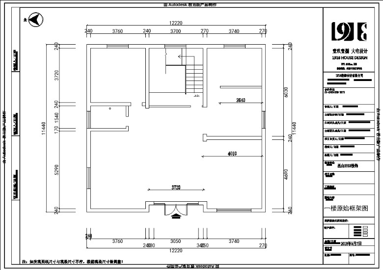
先来个原始图吧,特地找设计师要的。



爆料有奖!关注昆山论坛抖音号,抖音搜索“昆山论坛”,或搜索抖音号:ksbbs
 
美女离线冬日旭暖
发帖
1153
昆币
2160 枚
地板  发表于: 2018-08-29 , 来自:江苏省0==
楼主加油
爆料有奖!关注昆山论坛抖音号,抖音搜索“昆山论坛”,或搜索抖音号:ksbbs
 
美女离线真真yy
发帖
1924
昆币
2284 枚
4楼 发表于: 2018-08-29 , 来自:江苏省0==
效果图





爆料有奖!关注昆山论坛抖音号,抖音搜索“昆山论坛”,或搜索抖音号:ksbbs
 
离线美缝
级别: 禁止发言
发帖
12
昆币
3 枚
5楼 发表于: 2018-08-29 , 来自:安徽省0==
用户被禁言,该主题自动屏蔽!
爆料有奖!关注昆山论坛抖音号,抖音搜索“昆山论坛”,或搜索抖音号:ksbbs
 
美女离线真真yy
发帖
1924
昆币
2284 枚
6楼 发表于: 2018-08-29 , 来自:江苏省0==
这个是第一期的版本,后续还要修改,期待中。
爆料有奖!关注昆山论坛抖音号,抖音搜索“昆山论坛”,或搜索抖音号:ksbbs
 
美女离线真真yy
发帖
1924
昆币
2284 枚
7楼 发表于: 2018-08-29 , 来自:江苏省0==
回 美缝 的帖子
美缝:恭喜恭喜 (2018-08-29 14:15)

同喜,同喜
爆料有奖!关注昆山论坛抖音号,抖音搜索“昆山论坛”,或搜索抖音号:ksbbs
 
美女离线真真yy
发帖
1924
昆币
2284 枚
8楼 发表于: 2018-08-29 , 来自:江苏省0==
回 冬日旭暖 的帖子
冬日旭暖:楼主加油[表情] (2018-08-29 14:13)

一起加油
爆料有奖!关注昆山论坛抖音号,抖音搜索“昆山论坛”,或搜索抖音号:ksbbs
 
帅哥离线戰神
发帖
200314
昆币
117438 枚
9楼 发表于: 2018-08-29 , 来自:江苏省0==
回 真真yy 的帖子
真真yy:效果图[图片]
[图片]
[图片]
[图片]
....... (2018-08-29 14:13)

美,真滴美!
大,够大气!
爆料有奖!关注昆山论坛抖音号,抖音搜索“昆山论坛”,或搜索抖音号:ksbbs
 
快速回复
限76 字节
如果您在写长篇帖子又不马上发表,建议存为草稿
 
上一个 下一个