|
楼主 发表于: 2018-09-05
, 来自:江苏省0==
家装日记
小区:
| 中南世纪城 |
套内面积: |
107 (平米) |
预算: |
20 万 |
开工日期: |
2018-08-01 |
装修风格: |
欧式 |
装修方式: |
半包 |
装修公司: |
印象水仙 |
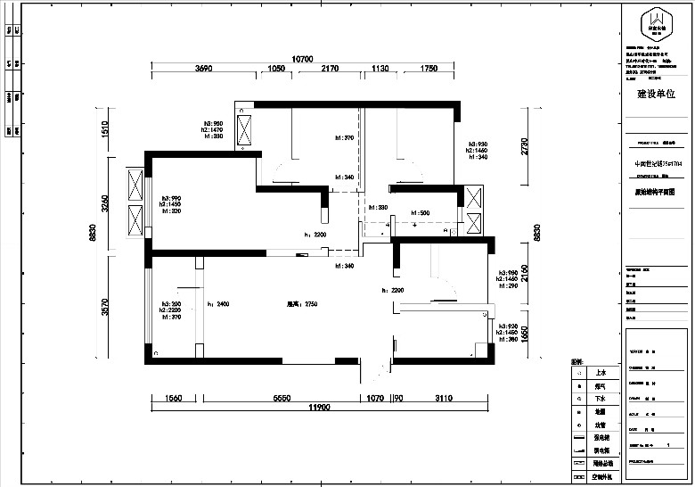
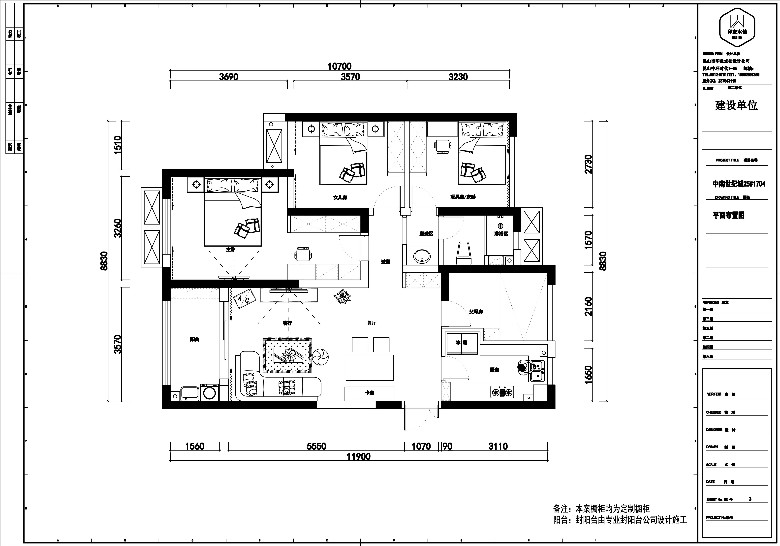
经常来逛论坛,但是只是逛逛,看了很多朋友发的装修帖,挺有感悟的。今天我也来开帖,谈谈我对我们家装修的一些看法。路过的朋友还请多多关照。 我是自己开店的,创业到今天,有了自己的一家汽车美容店,为什么会确定印象水仙设计呢,是因为我一个朋友介绍给我的,然后我就加了他们老板的微信,通过聊天知道了大家都是自己创业过来人,大家都很不容易,而且我们俩之间也有很多的共同点,两个人交流的也比较融洽,就约了个时间去他们公司具体了解了,整个装修咨询的过程,我跟我老婆还是比较满意他们的装修设计模式,尤其是他们展示的作品都是实景作品,最后还有好多业主发的满意视频,反正这次选的公司到目前为止我现在还是比较满意的。 基本信息栏:房型:四房两厅一卫一厨一阳台外墙面积:107㎡装修总预算:20万包工方式:半包装潢公司:印象水仙室内设计设计师:思思开工日期:2018年8月1日楼盘地址:中南世纪城 首先,我来晚了,我们家已经在做瓦工阶段了,但是后续我会一 一把我们家装修的过程分享给大家,在这里我先给大家分享一下我们家的原始图和平面图。
这里要感谢设计师全面的设计方案,现在终于知道他们量房的时候,为什么会问我那么多问题了,原来他们都把我跟我老婆的想法全部融入进设计里了,不得不说,收费设计跟免费设计还是存在很大的差异的,当然了这只是从我个人的想法考虑的,设计师从量房到出平面再到立面三维图,我跟我老婆都是共同参与的,体会到了设计师的良苦用心,他们公司的老板金总现在跟我也是朋友了,家里硬装现在在施工,不过我更期待家里后期的软装设计服务,更期待最终的效果,合作愉快。
|