夜间模式
  • 59857阅读
  • 75回复

【网红小姐姐2019版】装修小白直播流水账 [复制链接]

上一主题 下一主题
离线lisen1019
级别: 昆山过客
发帖
30
昆币
79 枚
只看楼主 使用道具 电梯直达
楼主  发表于: 2018-11-06 , 来自:江苏省0==
家装日记
小区: 凯迪城
套内面积: 115 (平米)
预算: 25 万
开工日期: 2018-11-05
装修风格: 日式
装修方式: 半包
装修公司: 79设计
    选择   

    自从计划装修那一刻起,身为专业小白的我就开始混迹论坛装修版块、土巴兔之类的装修网站以及各种APP,实在不敢去大街上逛装修公司,为什么?因为我是小白,而且是非常容易被忽悠的那种小白。所以就各种网上搜寻信息,毕竟口碑是日积月累的,网上都能找到一些蛛丝马迹。经过对比,还是在论坛上提交了量房需求,忘记了是哪一天,监理小哥哥电话撩我,说是要找4家装修公司服务我,嗯,服务我。然后就定了某一天,那是一个月黑风高、伸手不见五指的夜晚,不对,记错了,大白天,阳光非常好,四家装修公司陆陆续续按照约定时间来量了房,场面有点热闹,几度失去控制,还好在监理小哥的有序安排下,4家装修公司一一沟通风格以及特殊需求,然后送走了各位。大概过了几天,这4家装修公司陆续的都做好了方案,做好了价格,再然后我就一一去店里沟通,听他们xi nao,从这开始,作为小白的我,开始接触到一丢丢的装修方面的术语以及简单的工艺,每谈一家,小白就多进阶一点。其实我自己另外还找了两家装修公司,前前后后加上论坛的,总共6家,全部否定,最终受我网红小姐姐影响以及码农的切身经历等等,还是选择了79设计。因为信任感一旦建立起来,就会看它越看越顺眼,就像丈母娘看女婿一样。通过小姐姐要到79的微信号后就开始了常规量房、沟通流程,沟通过程发现张姐真的是有北方人的一种直爽,如果我提的想法不切合房屋结构的实际的话,她都会冷面直言,不像销售精英那种的满脸堆笑,这应该就是一直对自己专业的自信吧。设计师路工前前后后一直默默无闻的画图,偶尔一点沟通,只要见面就是不停递烟,聊起来感觉蛮舒服的。哦对了,有次负责软装设计的黄姐也在,关于后期的软装设计,也给我这小白科普了相关知识,作为专业小白的我,自然觉得高大上,再然后交设计费,出效果图,再然后确认效果图、出报价,最终报价后,涂总也是过来仔细检查各小项,发现了一两处可以削减预算的小项,钱不多,但给人的感觉很细心,领导都这么细心的话,那做事应该错不了。最后砍砍价(报我小姐姐的名号果然还是可以打折的),签字,开工。


    信任感的由来
    量房后监理小哥把我拉到群里,偶然发现了网红小姐姐,然后再回过头看他论坛发的贴,详细的拜读,写的真的很用心,虽然我当时是看不懂的,加了小姐姐好友,不仅提供了自己整理的装秘籍,还给了好多挑选装修公司的建议,热心无私的帮忙,所以对小姐姐的信任感就建立起来了,79是小姐姐推荐而来,所以对79设计的信任感也就建立起来了。

    上述的种种这些,全是主观感受,毕竟2018.11.5刚开始敲墙,万里长征刚开始第一步,至于后续的装修直播才是硬货,信任感很难建立,但很容易坍塌。

    网红小姐姐2019版的由来
    为什么叫网红小姐姐2019版?不是想蹭小姐姐的热度,只是想尽自己微薄之力,像小姐姐那样分享所见所得,小姐姐最近在群里一直在说隐退的事情,大家起哄架秧子,说是要我接过小姐姐衣钵,那我就厚着脸皮上了啊~~~所以网红小姐姐2019版就诞生了。

    直播
    开始进入“正规”的直播流程,可能要历时半年,保证不烂尾。

装修风格原本定位日式原木,后来稍加改动一下,应该就是北欧了。
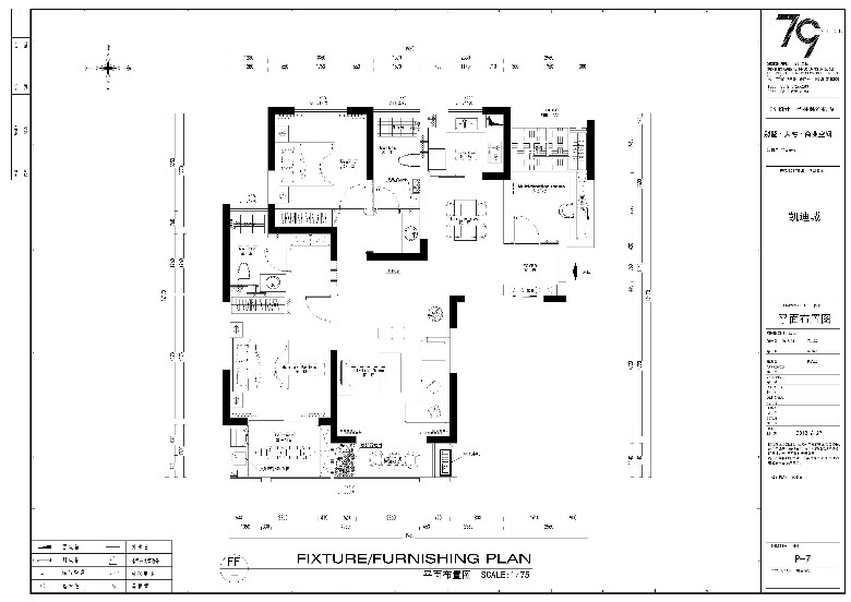
原始结构图


平面设计图

上一波效果图









2018.11.5开始敲砌墙,开工前一天都会群里汇报一下第二天的工作计划。




11.5晚上去看了一下现场,进度还挺快,只有一个飘窗和阳台一点点的地方没有敲掉,晚上去的,摸黑开着手电筒看了下就走了,照片没拍。


今天过去找监理小哥哥把论坛监理服务签了
本帖评分记录
aaron200016 昆币 +1 -来自昆山论坛APP 2019-03-07
chris_chris 昆币 +1 -来自昆山论坛APP 2019-03-06
jiali1717 昆币 +1 -来自昆山论坛APP 2018-12-09
樱桃小包子 昆币 +1 -来自昆山论坛APP 2018-12-08
水电师傅 昆币 +1 -来自昆山论坛APP 2018-11-18
昆山伟宏门窗 昆币 +1 - 2018-11-14
lisen1019 昆币 +1 -来自昆山论坛APP 2018-11-10
小洋515 昆币 +1 -来自昆山论坛APP 2018-11-06
金品·世嘉 昆币 +1 -来自昆山论坛APP 2018-11-06
家装君 昆币 +10 - 2018-11-06
12
13条评分昆币+31
爆料有奖!关注昆山论坛抖音号,抖音搜索“昆山论坛”,或搜索抖音号:ksbbs
 
发帖
272
昆币
1083 枚
沙发  发表于: 2018-11-06 , 来自:江苏省0==
我在公司等你
爆料有奖!关注昆山论坛抖音号,抖音搜索“昆山论坛”,或搜索抖音号:ksbbs
 
[url][urlend4]
离线lisen1019
级别: 昆山过客
发帖
30
昆币
79 枚
板凳  发表于: 2018-11-06 , 来自:江苏省0==
特别处理的几个地方:
1、主卧隐形门
2、客卫干湿分离
3、主卧与客厅阳台实墙隔开,客厅阳台做了个鱼池 (休闲区),客厅不装移门,生活区阳台放在了主卧阳台
4、主卧木地板上墙
爆料有奖!关注昆山论坛抖音号,抖音搜索“昆山论坛”,或搜索抖音号:ksbbs
 
美女离线网红小姐姐

发帖
2926
昆币
6896 枚
地板  发表于: 2018-11-06 , 来自:江苏省0==
     恭喜恭喜
爆料有奖!关注昆山论坛抖音号,抖音搜索“昆山论坛”,或搜索抖音号:ksbbs
 
美女离线网红小姐姐

发帖
2926
昆币
6896 枚
4楼 发表于: 2018-11-06 , 来自:江苏省0==
写的不错 ,继续加油!持续关注
爆料有奖!关注昆山论坛抖音号,抖音搜索“昆山论坛”,或搜索抖音号:ksbbs
 
美女离线金品·世嘉
发帖
2726
昆币
3613 枚
5楼 发表于: 2018-11-06 , 来自:江苏省0==
又开新帖啦
爆料有奖!关注昆山论坛抖音号,抖音搜索“昆山论坛”,或搜索抖音号:ksbbs
 
美女离线金品·世嘉
发帖
2726
昆币
3613 枚
6楼 发表于: 2018-11-06 , 来自:江苏省0==
不错的风格,持续关注!
爆料有奖!关注昆山论坛抖音号,抖音搜索“昆山论坛”,或搜索抖音号:ksbbs
 
级别: 初来乍到
发帖
1
昆币
2 枚
7楼 发表于: 2018-11-06 , 来自:江苏省0==
文章写的很有声色,撩出了幽默趣味 确是笔落惊风雨呀
本帖评分记录
樱桃小包子 昆币 +1 -来自昆山论坛APP 2018-12-08
1条评分昆币+1
爆料有奖!关注昆山论坛抖音号,抖音搜索“昆山论坛”,或搜索抖音号:ksbbs
 
帅哥离线1918设计
级别: 禁止发声
发帖
9059
昆币
10185 枚
8楼 发表于: 2018-11-06 , 来自:江苏省0==
爆料有奖!关注昆山论坛抖音号,抖音搜索“昆山论坛”,或搜索抖音号:ksbbs
 
离线lisen1019
级别: 昆山过客
发帖
30
昆币
79 枚
9楼 发表于: 2018-11-06 , 来自:江苏省0==
1、今天去家装君那里签了论坛监理服务,跟监理小哥哥和家装君MM聊了一点关于柜子的事情
2、家装君MM热情的倒了一杯热茶,给原本秋风瑟瑟的凉秋顿时增加了丝丝暖意,杯口冒出的热气瞬间温暖了我的心房。
3、去了好家居,把厨柜签了下来,步我师父的后尘,台面选择了2.0cm厚度,预算蹭的一下加了上去
4、回来的路上,装修公司告知,敲墙已经结束,敲完了 这效率可以
5、本来还要去谈集成吊顶的,结果时间没够用

目前已确定的主材有:厨柜、淋浴房、磁砖、封阳台
本帖评分记录
樱桃小包子 昆币 +1 -来自昆山论坛APP 2018-12-08
1条评分昆币+1
爆料有奖!关注昆山论坛抖音号,抖音搜索“昆山论坛”,或搜索抖音号:ksbbs
 
快速回复
限76 字节
如果您提交过一次失败了,可以用”恢复数据”来恢复帖子内容
 
上一个 下一个