夜间模式
  • 319942阅读
  • 657回复

隆隆严冬,抵挡不住我装修的热情 [复制链接]

上一主题 下一主题
美女离线yangyang_84
发帖
2877
昆币
5457 枚
只看楼主 使用道具 电梯直达
楼主  发表于: 2018-12-10 , 来自:江苏省0==
本想悄么声地把装修进行到底,但想想还是留下些痕迹:一是记录自己这些日子的辛劳,期待能有个好的结果;二是分享自己经历的坑,希望还未装修的人能引以为戒,顺利跨过,如此,不枉我来此开贴;三是可以分享下心得和经验(如果有的话);四是可以随时来此讨教,毕竟,论坛卧虎藏龙,高手如云。。。
从去年初开始看房,中间经历了跳价等各种波折,终于在今年4月份,定了一套虽不如意但聊胜于无的房子。至9月初,房子到手,纠结了一番后,决定还是先装修。


关于2手房,我只想说,太多坑了:1,房子裂缝,昨天开工,监理到现场一看,几面墙都有底到上的裂缝,后面重新装修,只能挂网,一笔费用多出来了;2,外墙漏水,我们看房的时候没有每个边边角角都看,等拿到房后,发现窗帘后,墙纸下,漏水的地方有2处;今天将厨房的吊顶和墙砖拆掉,又发现一处漏水;3.大片玻璃破损:房东很鸡贼,卧室钢化玻璃碎裂,用铝片订起来,然后窗帘遮挡,很不显眼,直到装修拆除窗帘时才发现,而换这块玻璃,至少2000块(因为需要用吊机将玻璃从外面吊上去,然后安装),真的是要吐血~

回来说装修,从10月份开始决定装修,便又回归了昆山论坛,想4年前,我也是常潜水混家有儿女的人。直奔装修版块,发现有免费量房服务(给论坛一个的赞),于是就报了名。很快,监理小哥哥给推荐了4家装修公司,两家论坛的网红公司,LT, DC,还有两家未听过的公司:MT,JM。10/17,月黑风高的夜晚,监理小哥哥带着4家公司的人,分两拨来量房了,效率绝对是杠杠滴,而我从此开始,也逐渐感受到了每个不同公司的风格。放几张量房的图片:




[ 此帖被网红小姐姐在2018-12-10 21:41重新编辑 ]
本帖评分记录
睿妈妈 昆币 +1 -来自昆山论坛APP 2024-03-12
昆山馨绿家 昆币 +1 -来自昆山论坛APP 2019-05-21
叁牙妹 昆币 +1 -来自昆山论坛APP 2019-05-06
悠游的YOYO 昆币 +1 -来自昆山论坛APP 2019-04-25
贺嘉伟 昆币 +1 -来自昆山论坛APP 2019-04-08
六六―大顺 昆币 +1 -来自昆山论坛APP 2019-01-25
网红小姐姐 昆币 +10 鼓励分享 2019-01-22
三省吾身 昆币 +1 -来自昆山论坛APP 2019-01-15
昆山伟宏门窗 昆币 +1 - 2018-12-17
昆山封阳台 昆币 +1 -来自昆山论坛APP 2018-12-16
12
13条评分昆币+31
爆料有奖!关注昆山论坛抖音号,抖音搜索“昆山论坛”,或搜索抖音号:ksbbs
 
美女离线yangyang_84
发帖
2877
昆币
5457 枚
沙发  发表于: 2018-12-10 , 来自:江苏省0==
接下来的每个周末,包括下班后,奔波于每个装修公司之间:
1.    最先联系我看报价的是DC,这个公司也是量房时第一批到达现场的,所以心里好感指数蹭蹭上升;
2.    因为4家装修公司都在附近,所以我从MT开始看起,报价还OK,但设计师的理念太超前,设计想法是好的,奈何我们接受不了,因此第一个被淘汰;
3.    接下来去了DC,和设计师聊了一个下午,边聊边修改图纸:询问了我们对目前房型的想法,是否要做大的改动,问了我们的生活惯,反映在平面设计上都有哪些小小要求,喜欢什么风格(面对我这样一个还不知道北欧风格是何风格的小白,给我看了很多图片,选自己喜欢的和适合目前房型的风格)并给了很多中肯的建议。聊着聊着发现竟然是老乡,这好感指数,更加要爆棚;但因为改动较大,当时并没给报价,说要重新修改预算,周日接着聊;后来四家公司比较下来,DC的报价最高。。。本想就此作罢,但看了工地,施工还是很标准的,一些细节处理的也很到位,老公劝我:一分钱一分货,贵就贵点吧,只要做工好,贵点也是有道理的,于是继续谈合作然后成功牵手;
4.    然后去了MT,销售姐姐特别热情,主打沟通,设计师很腼腆,很少说话,让我有点质疑设计师的水平,但是在MT,还是给了一些好的主意的,报价也是不高不低,材料看起来也OK,沟通了三次,差点要订下来,但最后看了工地,直接翻盘了。对于MT,我最歉疚,但没办法,没达到我想要的标准,无论如何无法迁就;
5.    再说说LT,第一次看报价时,把LT放到了最后,但心里对LT的期望还是挺大的。因为时间的缘故,过去的时候已经下午4:30左右了。设计师给我们看了他的两个设计想法及对应的预算,对于我们提出的需求,并没有太多buy in的感觉,所以我们稍微有些失落,沟通了20分钟左右就匆匆离开了。虽然设计师后面跟进还OK,也看了几家工地还算标准,但总是担心后期沟通时不通畅,所以也说拜拜了。
6.    中间也了解了金螳螂和79,一个是苏州同事介绍,一个是源自于论坛很多名人的帖子;对于金螳螂的快速报价模式,我很喜欢,但可惜的是我并没有花更多的时间去了解,原因就不再说了。对于79,我心里很喜欢,也去喝了茶看了工地,有很多亮点,但因为79比较主推半包,而我们俩因为时间关系,属意于全包,所以就没继续往下谈。
所以选装修公司,也是一件看缘分的事情,有的注定是情深缘浅。。。
爆料有奖!关注昆山论坛抖音号,抖音搜索“昆山论坛”,或搜索抖音号:ksbbs
 
美女离线yangyang_84
发帖
2877
昆币
5457 枚
板凳  发表于: 2018-12-10 , 来自:江苏省0==
选择DC,很多私人的成分在里面:设计师是老乡,感觉很亲切,沟通也很顺畅,当然和设计师积极主动的沟通是分不开的;然后也有朋友推荐了DC的老板娘给我,聊的也很愉快。老板娘和我年龄相仿,娃也差不多大,很多共同的话题。重要的是,老板娘承诺,质量让我们放心,当然,我相信其他公司老板肯定也会这样承诺,但听了,仍是觉得莫名安心。我就是这样,太感性了
本帖评分记录
ksgsh1234 昆币 +1 -来自昆山论坛APP 2018-12-10
1条评分昆币+1
爆料有奖!关注昆山论坛抖音号,抖音搜索“昆山论坛”,或搜索抖音号:ksbbs
 
美女离线yangyang_84
发帖
2877
昆币
5457 枚
地板  发表于: 2018-12-10 , 来自:江苏省0==
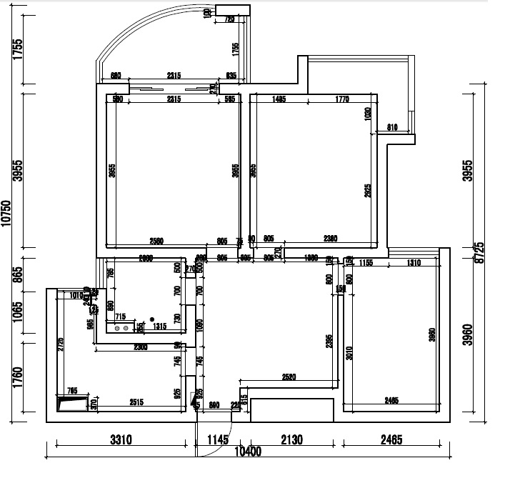
接下来就是确定施工方案和出效果图。真是隔行如隔山,本来以为很简单的施工方案,实际看到设计师展示的时候,直接晕了:26张CAD图。。。设计师辛苦了~后面因为榻榻米尺寸和开关的设计,又让设计师小改了一下,竟然有种罪过的感觉
先上户型图 & 效果图,效果图只有客餐厅,设计师说因为我们客餐厅中间有隔断,做不了全景。。。不管怎样,能装出效果图的feel,也是OK的。
爆料有奖!关注昆山论坛抖音号,抖音搜索“昆山论坛”,或搜索抖音号:ksbbs
 
美女离线yangyang_84
发帖
2877
昆币
5457 枚
4楼 发表于: 2018-12-10 , 来自:江苏省0==
大家帮忙参谋下,效果图的配色,哪种OK?我比较倾向白+灰,老公觉得白&灰有些冷清,所以让设计师重新修改了效果图,修改后的图片是后2张。
爆料有奖!关注昆山论坛抖音号,抖音搜索“昆山论坛”,或搜索抖音号:ksbbs
 
美女离线jiali1717
发帖
2486
昆币
3363 枚
5楼 发表于: 2018-12-10 , 来自:江苏省0==
我也喜欢第一版

最近迷恋白加灰
爆料有奖!关注昆山论坛抖音号,抖音搜索“昆山论坛”,或搜索抖音号:ksbbs
 
级别: 禁止发言
发帖
836
昆币
904 枚
6楼 发表于: 2018-12-10 , 来自:北京市0==
用户被禁言,该主题自动屏蔽!
爆料有奖!关注昆山论坛抖音号,抖音搜索“昆山论坛”,或搜索抖音号:ksbbs
 
美女离线yangyang_84
发帖
2877
昆币
5457 枚
7楼 发表于: 2018-12-10 , 来自:江苏省0==
爱丁伯格家具:第一款,感觉地板色浅了点[表情] (2018-12-10 22:49) 

是的,和我感觉一样
爆料有奖!关注昆山论坛抖音号,抖音搜索“昆山论坛”,或搜索抖音号:ksbbs
 
美女离线yangyang_84
发帖
2877
昆币
5457 枚
8楼 发表于: 2018-12-11 , 来自:上海市0==
jiali1717:我也喜欢第一版[表情]
最近迷恋白加灰 (2018-12-10 22:25) 

嗯嗯,感觉地砖颜色改一改,应该整体效果会好一些
爆料有奖!关注昆山论坛抖音号,抖音搜索“昆山论坛”,或搜索抖音号:ksbbs
 
帅哥离线偷奶的牛
级别: 昆山名人

发帖
43726
昆币
125369 枚
9楼 发表于: 2018-12-11 , 来自:江苏省0==
yangyang_84:大家帮忙参谋下,效果图的配色,哪种OK?我比较倾向白+灰,老公觉得白&灰有些冷清,所以让设计师重新修改了效果图,修改后的图片是后2张。 (2018-12-10 21:51) 

白灰大气,
地板再暗两个色。
我瞎掰的哈。
爆料有奖!关注昆山论坛抖音号,抖音搜索“昆山论坛”,或搜索抖音号:ksbbs
 
快速回复
限76 字节
批量上传需要先选择文件,再选择上传
 
上一个 下一个