夜间模式
  • 194179阅读
  • 125回复

公寓楼一房改三房,看我变变变吧,现代北欧风 [复制链接]

上一主题 下一主题
级别: 昆山过客
发帖
87
昆币
119 枚
只看楼主 使用道具 电梯直达
楼主  发表于: 2019-02-25 , 来自:江苏省0==
基本信息栏:

公寓:一室一厅改成三室
建筑面积:59㎡
装修预算:15-20万
包工方式:半包
装潢公司:印象水仙室内设计
设计师:金钟(处女座设计师,注重细节,做事认真钻研)
开工日期:2019年1月11日(一月开工为数不多的黄道吉日,撒花开工,一切顺顺利利,装修大吉!
楼盘地址:中航城公寓



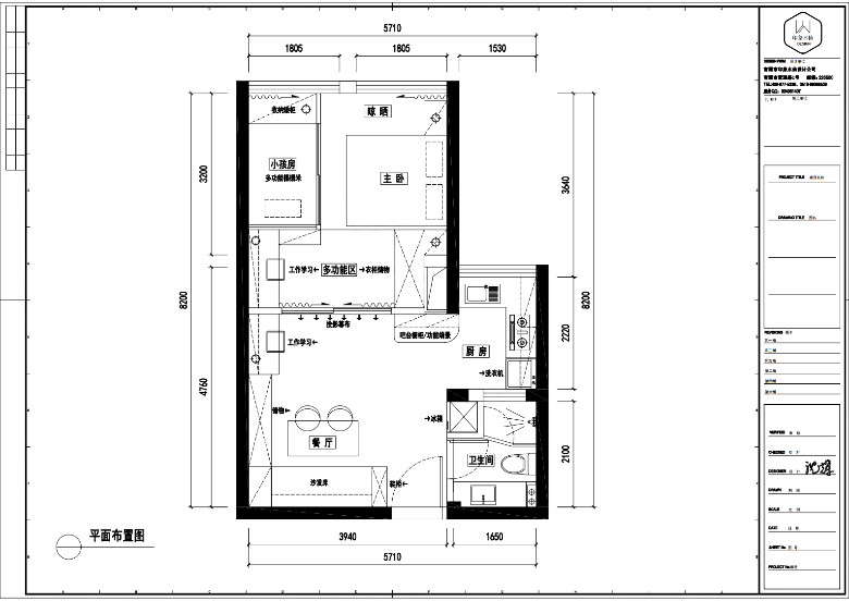
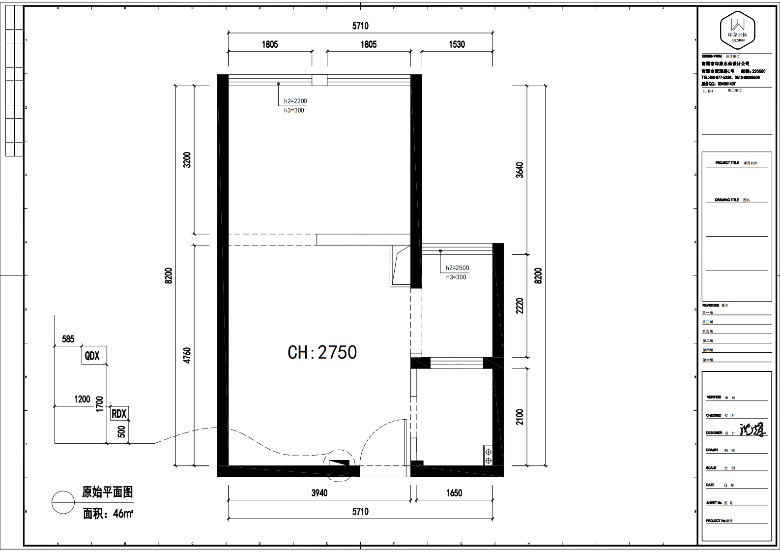
先上个原始房型图,个人觉得我们家这个户型还是很有潜力的,只要设计的好,后期居住绝对适合不过了。所以我跟我老公注重后期的施工质量的同时,也重视前期的设计过程和结果!






关于平面布局,我们商量了足足一个星期多的时间,我自己的职业是老师,办公区可不能少,客厅是个多功能的区域,可睡觉也可做待客区域,从平面布局来讲,我们家每个地方都充分的利用到位,设计师功不可没!


关于我们家选择装饰公司,说来可能是一见倾心不,印象水仙两年前给我的第一印象是极好的,后来去他们公司实地查看了解,我跟我老公都觉得公司的规模和服务态度上来说比较不错,再者给的价格也比较合理,设计师沈工和进进为人都非常的好,特别贴心,他们给了我们很多装修上的意见,对我们所提的各种设计要求也很耐心的做了多次修改,我们之间的沟通很顺畅,最终我们选择了与印象水仙的合作。





印象水仙的三维空间效果还不错,无论是尺寸还是画面感都比效果图好太多了。
从入口看工作区域和卧室,家里的布局还是很清晰的。










无论是我们自己还是小孩,学区域绝对要设计好,我相当看重。






我感觉我们家公寓后期装修好会是个逆袭。






房子不大,开工氛围可是极好,感动ing。






我认为:家,不仅仅是一间四四方方的房间,不仅仅是美丽豪华的布置。组成家的最重要的元素是房子里的人,我们需用心灵去经营,营造关爱、温暖、放松的居住环境。








[ 此帖被吞噬你的灵魂在2019-02-25 15:24重新编辑 ]
本帖评分记录
梦里有 昆币 +1 -来自昆山论坛APP 2019-07-30
中行装修贷 昆币 +1 -来自昆山论坛APP 2019-06-16
小萱萱0508 昆币 +1 -来自昆山论坛APP 2019-04-11
昆山伟宏门窗 昆币 +1 - 2019-02-25
杨杨得意 昆币 +1 -来自昆山论坛APP 2019-02-25
一片丹心 昆币 +1 -来自昆山论坛APP 2019-02-25
6条评分昆币+6
爆料有奖!关注昆山论坛抖音号,抖音搜索“昆山论坛”,或搜索抖音号:ksbbs
 
美女离线装修版客服
发帖
10174
昆币
22137 枚
置顶 (来自7楼) 发表于: 2019-02-26 , 来自:江苏省0==
楼主可以参加“寅盛杯装修日记大赛”,有机会赢取6888元现金大奖哦!详情请看:http://www.ksbbs.com/read-htm-tid-5951022.html
爆料有奖!关注昆山论坛抖音号,抖音搜索“昆山论坛”,或搜索抖音号:ksbbs
 
美女离线昆山伟宏门窗
级别: 禁止发言

发帖
18978
昆币
32400 枚
沙发  发表于: 2019-02-25 , 来自:江苏省0==
用户被禁言,该主题自动屏蔽!
爆料有奖!关注昆山论坛抖音号,抖音搜索“昆山论坛”,或搜索抖音号:ksbbs
 
美女离线昆山和美门窗
级别: 禁止发言
发帖
7597
昆币
22038 枚
板凳  发表于: 2019-02-26 , 来自:山东省0==
用户被禁言,该主题自动屏蔽!
爆料有奖!关注昆山论坛抖音号,抖音搜索“昆山论坛”,或搜索抖音号:ksbbs
 
帅哥离线月亮护卫
发帖
1089
昆币
840 枚
地板  发表于: 2019-02-26 , 来自:江苏省0==
爆料有奖!关注昆山论坛抖音号,抖音搜索“昆山论坛”,或搜索抖音号:ksbbs
 
帅哥离线苍炎破坏者
发帖
1004
昆币
1409 枚
4楼 发表于: 2019-02-26 , 来自:江苏省0==
恭喜楼主
爆料有奖!关注昆山论坛抖音号,抖音搜索“昆山论坛”,或搜索抖音号:ksbbs
 
离线ks_kexin
发帖
1319
昆币
1228 枚
5楼 发表于: 2019-02-26 , 来自:江苏省0==
不错不错
爆料有奖!关注昆山论坛抖音号,抖音搜索“昆山论坛”,或搜索抖音号:ksbbs
 
发帖
829
昆币
934 枚
6楼 发表于: 2019-02-26 , 来自:江苏省0==
期待效果图呀
爆料有奖!关注昆山论坛抖音号,抖音搜索“昆山论坛”,或搜索抖音号:ksbbs
 
美女离线装修版客服
发帖
10174
昆币
22137 枚
7楼 发表于: 2019-02-26 , 来自:江苏省0==
楼主可以参加“寅盛杯装修日记大赛”,有机会赢取6888元现金大奖哦!详情请看:http://www.ksbbs.com/read-htm-tid-5951022.html
爆料有奖!关注昆山论坛抖音号,抖音搜索“昆山论坛”,或搜索抖音号:ksbbs
 
发帖
829
昆币
934 枚
8楼 发表于: 2019-02-26 , 来自:江苏省0==
爆料有奖!关注昆山论坛抖音号,抖音搜索“昆山论坛”,或搜索抖音号:ksbbs
 
快速回复
限76 字节
如果您提交过一次失败了,可以用”恢复数据”来恢复帖子内容
 
上一个 下一个