夜间模式
  • 139745阅读
  • 181回复

E和C的装修日记,出租房单身公寓的改造(台式风格) [复制链接]

上一主题 下一主题
帅哥离线小装
级别: 昆山新人
发帖
102
昆币
169 枚
160楼 发表于: 2019-08-09 , 来自:江苏省0==
All the persistence is, because love.所有的坚持都是,因为热爱。早安


本帖评分记录
小装 昆币 +1 -来自昆山论坛APP 2019-08-09
1条评分昆币+1
爆料有奖!关注昆山论坛抖音号,抖音搜索“昆山论坛”,或搜索抖音号:ksbbs
 
帅哥离线小装
级别: 昆山新人
发帖
102
昆币
169 枚
161楼 发表于: 2019-08-09 , 来自:未知0==
Haaaaarukii:原来是设计师啊 ,难怪装得这么好[表情]  (2019-07-18 11:25) 

不是所有的设计师都如此,这个要走心
爆料有奖!关注昆山论坛抖音号,抖音搜索“昆山论坛”,或搜索抖音号:ksbbs
 
帅哥离线小装
级别: 昆山新人
发帖
102
昆币
169 枚
162楼 发表于: 2019-09-30 , 来自:江苏省0==

「 藝 」



- 有光  有温度  更有感动  -
A space with light temperature and moving

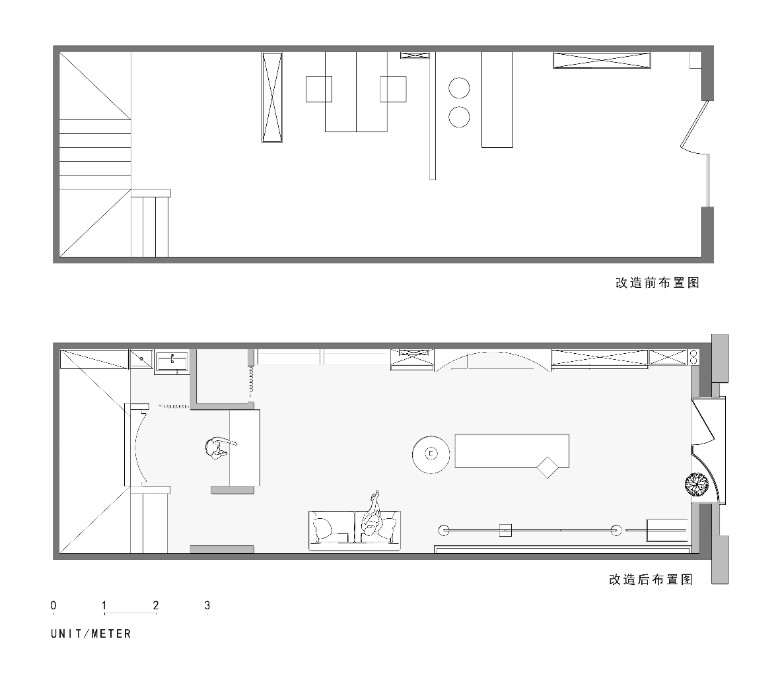
                                                                                                                 ▼ 平面图,plan




「 成 」






因为工作的身份,我们给很多朋友设计过新家、店铺、以及办公室等。城市节奏生活之快,对于新的工作生活,我们希望空间如家一般的温馨、舒服、自然。工作室选址在万达写字楼,这里没有待人接物般厚重的仪式感,只有专心工作后的闲适自得。






















工作室是两间独立的公寓,初次看到这个空间,就爱上了,两面依墙、两面环窗,自然采光特别的舒服,唯一的缺点就是空间比较局促,因为年轻人自由随性的生活观,我不喜欢过于严肃的工作氛围,这让我觉得工作很压抑,所以我们要打造一个居家般的设计工作室EC。











「 藝 成 」
是這樣的
她叫藝華  我叫鄭成
於是 取其首位
「 藝 」
藝術 不只屬於殿堂
可以在街頭巷弄 可以在院落斗室
通過設計傳達幸福
讓空間主人泯然一笑 就是藝術
「 成 」
成天 無邊無際的發想
如何成就一個好的設計
成就一個幸福的家 為了生活的美好
也為了每一個青睞我們的業主朋友



本帖评分记录
玛蒂尔达 昆币 +1 -来自昆山论坛APP 2019-10-04
小装 昆币 +1 -来自昆山论坛APP 2019-09-30
2条评分昆币+2
爆料有奖!关注昆山论坛抖音号,抖音搜索“昆山论坛”,或搜索抖音号:ksbbs
 
帅哥离线小装
级别: 昆山新人
发帖
102
昆币
169 枚
163楼 发表于: 2019-09-30 , 来自:江苏省0==



[ 此帖被小装在2019-09-30 18:29重新编辑 ]
爆料有奖!关注昆山论坛抖音号,抖音搜索“昆山论坛”,或搜索抖音号:ksbbs
 
帅哥离线小装
级别: 昆山新人
发帖
102
昆币
169 枚
164楼 发表于: 2019-10-10 , 来自:江苏省0==
爆料有奖!关注昆山论坛抖音号,抖音搜索“昆山论坛”,或搜索抖音号:ksbbs
 
美女离线高小花花
级别: 初来乍到
发帖
4
昆币
4 枚
165楼 发表于: 2019-10-10 , 来自:江苏省0==
设计最难的是落地,设计还原度如此之高,设计师还是很棒的
爆料有奖!关注昆山论坛抖音号,抖音搜索“昆山论坛”,或搜索抖音号:ksbbs
 
帅哥离线小装
级别: 昆山新人
发帖
102
昆币
169 枚
166楼 发表于: 2020-06-21 , 来自:江苏省0==
平淡生活里,来HB一起收获美好



「 藝 」



- 有光  有温度  更有感动  -
A space with light temperature and moving



HB位于昆山市万达广场,是一家集美妆和服装饰品为一体的综合店。店主人喜欢旅行, 她喜欢离开自己过腻歪的城市,到一个新的环境去收货所有与“美”相关的物品,然后和朋友去分享她的美好,于是便开了这个集合店。








HB地处车水马龙的街道和人群来往的喧闹之中;在动与静的切换中,我们希望HB更干净更有自身的气质,与沿街其他商铺有对比。






▼ 平面图,plan





爆料有奖!关注昆山论坛抖音号,抖音搜索“昆山论坛”,或搜索抖音号:ksbbs
 
帅哥离线小装
级别: 昆山新人
发帖
102
昆币
169 枚
167楼 发表于: 2020-06-21 , 来自:江苏省0==
前后一个月,小姐姐的买手店落成,色彩很美丽
本帖评分记录
小装 昆币 +1 -来自昆山论坛APP 2020-06-21
1条评分昆币+1
爆料有奖!关注昆山论坛抖音号,抖音搜索“昆山论坛”,或搜索抖音号:ksbbs
 
发帖
6918
昆币
6420 枚
168楼 发表于: 2020-06-22 , 来自:江苏省0==
  
爆料有奖!关注昆山论坛抖音号,抖音搜索“昆山论坛”,或搜索抖音号:ksbbs
 
发帖
1643
昆币
2615 枚
169楼 发表于: 2020-06-27 , 来自:未知0==
你是设计师??只做设计?
爆料有奖!关注昆山论坛抖音号,抖音搜索“昆山论坛”,或搜索抖音号:ksbbs
 
快速回复
限76 字节
如果您在写长篇帖子又不马上发表,建议存为草稿
 
上一个 下一个