夜间模式
  • 230291阅读
  • 313回复

【1918会如何装修我的小家?】92平小三室的简装之旅 [复制链接]

上一主题 下一主题
帅哥离线cfw0828
级别: 昆山过客
发帖
36
昆币
59 枚
10楼 发表于: 2019-04-28 , 来自:江苏省0==
孔德音:谢谢,同喜同喜^-^!就是感觉1918的工地是不是太多了,最近施工有点力不从心,希望是错觉 (2019-04-28 23:07) 

要盯项目经理进度的
最近工地很多,工人常分配不过来
我们都去年七月底装到现在才快尾声
爆料有奖!关注昆山论坛抖音号,抖音搜索“昆山论坛”,或搜索抖音号:ksbbs
 
美女离线孔德音
级别: 昆山新人
发帖
249
昆币
385 枚
11楼 发表于: 2019-04-28 , 来自:江苏省0==
淯ning:加油哈!我看到你了[表情] (2019-04-28 23:06) 

谢谢宁子,期待你的美食^-^!
爆料有奖!关注昆山论坛抖音号,抖音搜索“昆山论坛”,或搜索抖音号:ksbbs
 
美女离线孔德音
级别: 昆山新人
发帖
249
昆币
385 枚
12楼 发表于: 2019-04-28 , 来自:江苏省0==
cfw0828:要盯项目经理进度的
最近工地很多,工人常分配不过来
我们都去年七月底装到现在才快尾声 (2019-04-28 23:19) 

……从去年七月,装到现在?


恐怖如斯!!!
爆料有奖!关注昆山论坛抖音号,抖音搜索“昆山论坛”,或搜索抖音号:ksbbs
 
美女离线孔德音
级别: 昆山新人
发帖
249
昆币
385 枚
13楼 发表于: 2019-04-29 , 来自:江苏省0==
孔德音:……从去年七月,装到现在?
恐怖如斯!!! (2019-04-28 23:30) 

你家一定是壕宅壕装,工程量大的!慢工出细活
爆料有奖!关注昆山论坛抖音号,抖音搜索“昆山论坛”,或搜索抖音号:ksbbs
 
美女离线孔德音
级别: 昆山新人
发帖
249
昆币
385 枚
14楼 发表于: 2019-04-29 , 来自:江苏省0==
哈哈,大家来都来啦,能不能顺手给我点个赞,满足下我的虚荣心~


本帖评分记录
叁牙妹 昆币 +1 -来自昆山论坛APP 2019-04-30
昆山封阳台 昆币 +1 -来自昆山论坛APP 2019-04-29
cfw0828 昆币 +1 -来自昆山论坛APP 2019-04-29
3条评分昆币+3
爆料有奖!关注昆山论坛抖音号,抖音搜索“昆山论坛”,或搜索抖音号:ksbbs
 
美女离线孔德音
级别: 昆山新人
发帖
249
昆币
385 枚
15楼 发表于: 2019-04-29 , 来自:江苏省0==
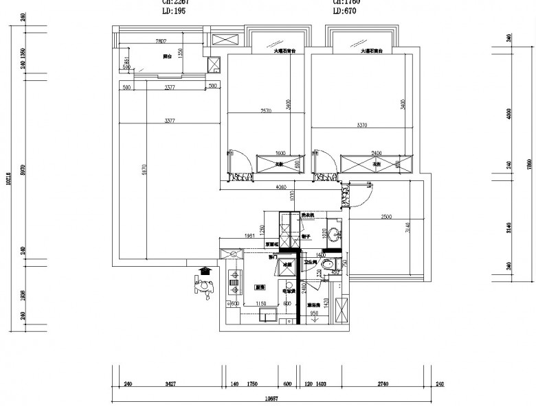
承上。

郑涛,郑工的设计



本帖评分记录
cfw0828 昆币 +1 -来自昆山论坛APP 2019-04-29
1条评分昆币+1
爆料有奖!关注昆山论坛抖音号,抖音搜索“昆山论坛”,或搜索抖音号:ksbbs
 
美女离线孔德音
级别: 昆山新人
发帖
249
昆币
385 枚
16楼 发表于: 2019-04-29 , 来自:江苏省0==
楼主没啥爱好,除了美食美人儿就爱看各种影视剧,英剧美剧日剧韩剧抗日神剧,只要好看来者不拒~

然后一直被欧美风种草,北欧简约加日式合风也很爱。一路走来咨询我这小户型走欧美风可还行,答曰

唉……

爆料有奖!关注昆山论坛抖音号,抖音搜索“昆山论坛”,或搜索抖音号:ksbbs
 
发帖
6918
昆币
6420 枚
17楼 发表于: 2019-04-29 , 来自:江苏省0==


欢迎关注【寅盛装饰】专注无毒家装9年
首创《无毒饮水系统》《无毒木饰面系统》《无毒墙面系统》三大无毒系统给你一个健康环保的家
公司官网:[url][urlend2]
VR案例:[url][urlend2]
精品案例:[url][urlend2]
公司官方微信公众号:yinszs
客服热线:18994472295
公司地址:城东店:昆山市太湖路588号左岸尚海湾3-103商铺 ( 近震川东路,阳光水世界对面 )
城北店:昆山市柏庐北路94号(柏庐大桥向北200米左右)


爆料有奖!关注昆山论坛抖音号,抖音搜索“昆山论坛”,或搜索抖音号:ksbbs
 
美女离线孔德音
级别: 昆山新人
发帖
249
昆币
385 枚
18楼 发表于: 2019-04-29 , 来自:江苏省0==
嗯,那就北欧简约加点我爱的日式风,简单明了

以下是好好住截图,侵删,是我想要的感觉^-^!




爆料有奖!关注昆山论坛抖音号,抖音搜索“昆山论坛”,或搜索抖音号:ksbbs
 
美女离线叁牙妹
级别: 昆山名人
发帖
66131
昆币
51161 枚
19楼 发表于: 2019-04-29 , 来自:未知0==
孔德音:看了你的自装贴,都想跟着自装啦[表情] (2019-04-28 23:10) 

我还有个装修公司装的贴
爆料有奖!关注昆山论坛抖音号,抖音搜索“昆山论坛”,或搜索抖音号:ksbbs
 
快速回复
限76 字节
批量上传需要先选择文件,再选择上传
 
上一个 下一个