夜间模式
  • 12424阅读
  • 0回复

[装修]简单而不失大气,这样的装修设计谁不喜欢? [复制链接]

上一主题 下一主题
帅哥离线1918设计
级别: 禁止发声
发帖
9059
昆币
10185 枚
只看楼主 使用道具 电梯直达
楼主  发表于: 2019-06-08 , 来自:江苏省0==


家不是物质堆砌来的空间
而是最温暖的地方
今天分享的案例是根据业主喜欢的新中式
精心设计的
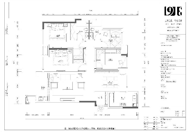
房屋信息
坐标:观湖壹号
户型:五房三厅两卫
建筑面积:145m2

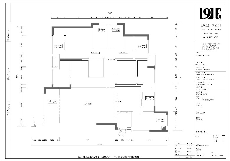
△原始图△

方案

门厅

门厅简单却又显得大气,带动了整个空间风格的基调

客厅

客厅整体以中性色为主调,简约中带着奢华,再加精致的软装搭配,营造沉稳内敛的居家效果



餐厅


每一个细节都在向您倾诉她的心声,让人赏心悦目

主卧

至简的家具摆设,让空间显得很宽敞


老人房

中式元素与现代材质巧妙兼柔
暖色色调让房间有了温度



女儿房

床头柜、书桌、衣柜
超强的储物空间满足孩子书籍、玩具及衣物的收纳
色彩以灰白为主,打造成优雅的公主房模样

卫生间

不同的空间,有不同的生活诉求
屋主追求有质感的简洁,整体显得很大气
好了,今天的案例就分享完了
感谢大家的支持与专注!
装修就选1918装饰】
我们专心筑家,只为让您安心住家
了解更多精彩案例请点击
[url][urlend3] | [url][urlend3]
[url][urlend3]

本帖评分记录
弟子规 昆币 +1 -来自昆山论坛APP 2020-08-21
1条评分昆币+1
爆料有奖!关注昆山论坛抖音号,抖音搜索“昆山论坛”,或搜索抖音号:ksbbs
 
快速回复
限76 字节
如果您提交过一次失败了,可以用”恢复数据”来恢复帖子内容
 
上一个 下一个