夜间模式
  • 15517阅读
  • 1回复

[装修]105m2也能给你超大的想象空间 [复制链接]

上一主题 下一主题
帅哥离线1918设计
级别: 禁止发声
发帖
9059
昆币
10185 枚
只看楼主 使用道具 电梯直达
楼主  发表于: 2019-06-13 , 来自:江苏省0==

每个人、每个时期
对于家都有着不一样的理解
每个时期所经历的不一样
同样对家的定义和理解
也是不一样的
不变的就是对于家的向往
今天要给大家分享的案列来自
观湖壹号
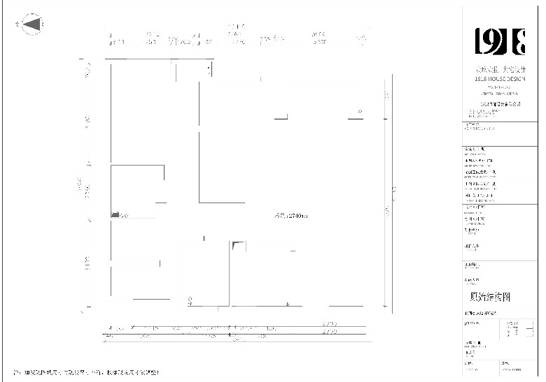
户型信息
项目地点:观湖壹号
项目面积:105㎡
项目风格:现代简约
项目户型:4房2厅2卫
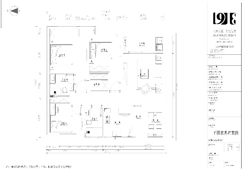
平面方案/Flat Plan


原始户型图

平面方案图
客厅/Living Room
餐厅/Dining Room
主卧/Master Room


次卧/Second bedroom

儿童房/Children's Room
卫生间/Bathroom
好了,今天的案例就分享完了
感谢您的支持与专注!
装修就选1918装饰】
我们专心筑家,只为让您安心住家



[ 此帖被1918设计在2019-06-13 17:57重新编辑 ]
本帖评分记录
弟子规 昆币 +1 -来自昆山论坛APP 2020-08-21
1条评分昆币+1
爆料有奖!关注昆山论坛抖音号,抖音搜索“昆山论坛”,或搜索抖音号:ksbbs
 
帅哥离线1918设计
级别: 禁止发声
发帖
9059
昆币
10185 枚
沙发  发表于: 2019-06-13 , 来自:江苏省0==
爆料有奖!关注昆山论坛抖音号,抖音搜索“昆山论坛”,或搜索抖音号:ksbbs
 
快速回复
限76 字节
批量上传需要先选择文件,再选择上传
 
上一个 下一个