夜间模式
  • 14044阅读
  • 0回复

[装修]89m2的北欧风,美的含蓄又不简单 [复制链接]

上一主题 下一主题
帅哥离线1918设计
级别: 禁止发声
发帖
9059
昆币
10185 枚
只看楼主 使用道具 电梯直达
楼主  发表于: 2019-06-28 , 来自:江苏省0==
简约、自然
人性化、简洁实用
力求在形式和功能的统一
在建筑室内设计方面
室内的顶、墙、地三个面
完全不用纹样和图案装饰
只用线条、色块来区分点缀
这就是所谓的简欧风格
今天给大家分享的是来自
绿地21新城的北欧案列
户型信息
项目地点:绿地21新城
项目面积:89㎡
项目风格:北欧
项目户型:4房2厅1厨1卫
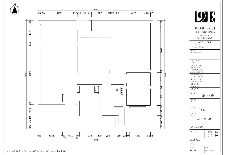
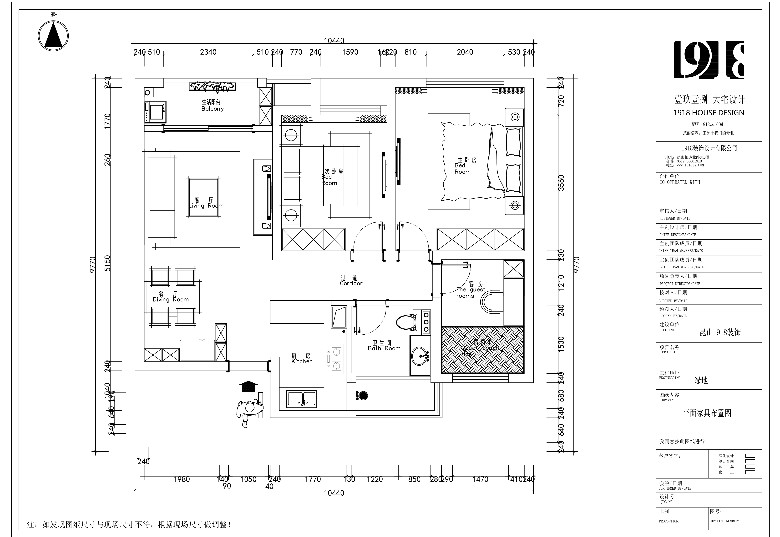
平面方案/Flat Plan
原始户型图
平面方案图

客厅/Living Room

厨房/Kitchen

餐厅/Dining Room

主卧/Master Room

次卧/Second bedroom
  


卫生间/Bathroom
简欧风格
体现的是对传统的尊重
对自然材料的欣赏
对形式和装饰的克制
好了,今天的案例就分享完了
感谢您的支持与专注!
装修就选1918装饰】
我们专心筑家,只为让您安心住家

[ 此帖被1918设计在2019-06-28 17:49重新编辑 ]
本帖评分记录
弟子规 昆币 +1 -来自昆山论坛APP 2020-08-21
1条评分昆币+1
爆料有奖!关注昆山论坛抖音号,抖音搜索“昆山论坛”,或搜索抖音号:ksbbs
 
快速回复
限76 字节
如果您提交过一次失败了,可以用”恢复数据”来恢复帖子内容
 
上一个 下一个