夜间模式
  • 142813阅读
  • 226回复

【叶氏·大美居整体软装】@MESSI的幸福小家 [复制链接]

上一主题 下一主题
帅哥离线yuxiang102
级别: 昆山新人

发帖
188
昆币
269 枚
110楼 发表于: 2019-12-17 , 来自:江苏省0==
橱柜选的是咖色门板,白色柜体。感觉深色的门板比较耐脏。刚好装修公司里面展示橱柜是这个颜色的。

爆料有奖!关注昆山论坛抖音号,抖音搜索“昆山论坛”,或搜索抖音号:ksbbs
 
帅哥离线yuxiang102
级别: 昆山新人

发帖
188
昆币
269 枚
111楼 发表于: 2019-12-17 , 来自:江苏省0==
橱柜板材选好了,橱柜设计会跟你确认安装的电器尺寸,这个非常重要。我选了洗碗机,所以就没用消毒柜,感觉消毒柜有点鸡肋。!洗碗真的是一件比较痛苦的事情



爆料有奖!关注昆山论坛抖音号,抖音搜索“昆山论坛”,或搜索抖音号:ksbbs
 
帅哥离线yuxiang102
级别: 昆山新人

发帖
188
昆币
269 枚
112楼 发表于: 2019-12-17 , 来自:江苏省0==
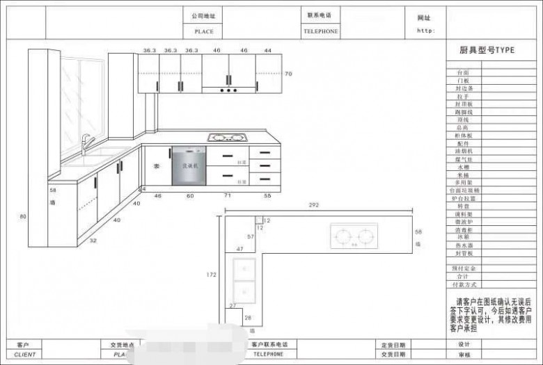
柜体设计图纸。洗碗机选的是美的8套的,如果家里人比较多的话可以选择13套的。刚开始我也准备选择13套的,但是去实体店看完以后选择8套就够用了,13套太大,我的厨房本身就很小

爆料有奖!关注昆山论坛抖音号,抖音搜索“昆山论坛”,或搜索抖音号:ksbbs
 
帅哥离线yuxiang102
级别: 昆山新人

发帖
188
昆币
269 枚
113楼 发表于: 2019-12-17 , 来自:江苏省0==
房间地板,门也要到装修装修公司提前选好。因为制作周期大概20天,我们选的是免漆板。实木门周期会更加长。第一张图片是三个卧室的门,第二张是卫生间的,第三张是房间地板的,德尔复合地板。实木地板太贵,后期保养也麻烦。提醒大家,装地暖一定要选择地暖专用地板。


爆料有奖!关注昆山论坛抖音号,抖音搜索“昆山论坛”,或搜索抖音号:ksbbs
 
帅哥离线yuxiang102
级别: 昆山新人

发帖
188
昆币
269 枚
114楼 发表于: 2019-12-17 , 来自:江苏省0==
yuxiang102:房间地板,门也要到装修装修公司提前选好。因为制作周期大概20天,我们选的是免漆板。实木门周期会更加长。第一张图片是三个卧室的门,第二张是卫生间的,第三张是房间地板的,德尔复合地板。实木地板太贵,后期保养也麻烦。提醒大家,装地暖一定要选择地暖专用地板。
[attachment .. (2019-12-17 16:50) 

装完后感觉厨房门和卫生间可以选择铝合金的,比较耐潮湿。
爆料有奖!关注昆山论坛抖音号,抖音搜索“昆山论坛”,或搜索抖音号:ksbbs
 
帅哥离线小小de蜗牛
级别: 初来乍到
发帖
4
昆币
4 枚
115楼 发表于: 2019-12-17 , 来自:江苏省0==
效果图看起来不错,期待最后装出来的效果。年后也准备装修,会一直关注更新。
爆料有奖!关注昆山论坛抖音号,抖音搜索“昆山论坛”,或搜索抖音号:ksbbs
 
帅哥离线laodong
级别: 初来乍到
发帖
6
昆币
7 枚
116楼 发表于: 2019-12-17 , 来自:江苏省0==
期待楼主更新,学学
爆料有奖!关注昆山论坛抖音号,抖音搜索“昆山论坛”,或搜索抖音号:ksbbs
 
帅哥离线laodong
级别: 初来乍到
发帖
6
昆币
7 枚
117楼 发表于: 2019-12-17 , 来自:江苏省0==
对了,楼主现在应该已经装修完了吧。算下硬装基本3个月完成了。赶紧更新发一下实际装出来效果啊
本帖评分记录
yuxiang102 昆币 +1 -来自昆山论坛APP 2019-12-17
1条评分昆币+1
爆料有奖!关注昆山论坛抖音号,抖音搜索“昆山论坛”,或搜索抖音号:ksbbs
 
帅哥离线yuxiang102
级别: 昆山新人

发帖
188
昆币
269 枚
118楼 发表于: 2019-12-17 , 来自:江苏省0==
小小de蜗牛:效果图看起来不错,期待最后装出来的效果。年后也准备装修,会一直关注更新。 (2019-12-17 17:27) 

好的,谢谢!有问题可以一起探讨。
爆料有奖!关注昆山论坛抖音号,抖音搜索“昆山论坛”,或搜索抖音号:ksbbs
 
帅哥离线yuxiang102
级别: 昆山新人

发帖
188
昆币
269 枚
119楼 发表于: 2019-12-17 , 来自:江苏省0==
laodong:期待楼主更新,学学[表情] (2019-12-17 18:19) 

好的,可以持续关注,有问题留言
爆料有奖!关注昆山论坛抖音号,抖音搜索“昆山论坛”,或搜索抖音号:ksbbs
 
快速回复
限76 字节
如果您提交过一次失败了,可以用”恢复数据”来恢复帖子内容
 
上一个 下一个