夜间模式
  • 207073阅读
  • 22回复

【居泰隆实体家居】我的小屋开工啦!现代轻奢风 [复制链接]

上一主题 下一主题
离线guwangwang
级别: 昆山过客
发帖
41
昆币
74 枚
只看楼主 使用道具 电梯直达
楼主  发表于: 2019-08-13 , 来自:江苏省0==
家装日记
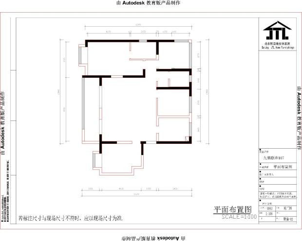
小区: 九锦颐和
套内面积: 167 (平米)
预算: 多多益善 万
开工日期: 2019年8月8号
装修风格: 其他
装修方式: 全包
装修公司: 居泰隆

    先来说说设计师小李吧:第一次上门聊,感觉人比较真诚,年龄相仿,感觉比较聊得来,然后对我一些比较纠结的地方有自己独到的分析和见解。(比较倾向于选他了)

    感觉小李平时还是很忙的,一个人要跟进这么多设计,忙的过来吗?毕竟人的精力是有限的,项目多了专注度肯定会有所下降,不过小李说他现在已在减少设计单数了,将投入更多的精力专门去做设计(好吧,相信你)

    问了几位找他装修的朋友,都说小李做现代确实有一定的优势

    好了,那就不多说了,定下,小李,要给力哦。




开工准备












对于各个保护的地方,这个公司做的确实很到位
今天去看工地了,原来周末不让施工,工人师傅辛苦.
我家砸墙的地方还是很多的
砸墙+ing







今天第一天更新,,,后续继续更新哈!


本帖评分记录
昆山装修公司 昆币 +1 -来自昆山论坛APP 2019-09-12
黄tina 昆币 +1 -来自昆山论坛APP 2019-09-12
ldiwnbd 昆币 +1 -来自昆山论坛APP 2019-09-12
帅哥一妹妹 昆币 +1 -来自昆山论坛APP 2019-09-11
黑人阿邱 昆币 +1 -来自昆山论坛APP 2019-09-11
中行装修贷 昆币 +1 -来自昆山论坛APP 2019-08-17
昆山伟宏门窗 昆币 +1 - 2019-08-13
7条评分昆币+7
爆料有奖!关注昆山论坛抖音号,抖音搜索“昆山论坛”,或搜索抖音号:ksbbs
 
帅哥离线张家全
级别: 禁止发言
发帖
91
昆币
111 枚
沙发  发表于: 2019-08-13 , 来自:河南省0==
用户被禁言,该主题自动屏蔽!
爆料有奖!关注昆山论坛抖音号,抖音搜索“昆山论坛”,或搜索抖音号:ksbbs
 
美女离线昆山伟宏门窗
级别: 禁止发言

发帖
18978
昆币
32400 枚
板凳  发表于: 2019-08-13 , 来自:江苏省0==
用户被禁言,该主题自动屏蔽!
爆料有奖!关注昆山论坛抖音号,抖音搜索“昆山论坛”,或搜索抖音号:ksbbs
 
美女离线昆山和美门窗
级别: 禁止发言
发帖
7597
昆币
22038 枚
地板  发表于: 2019-08-14 , 来自:北京市0==
用户被禁言,该主题自动屏蔽!
爆料有奖!关注昆山论坛抖音号,抖音搜索“昆山论坛”,或搜索抖音号:ksbbs
 
级别: 禁止发言

发帖
1370
昆币
933 枚
4楼 发表于: 2019-08-15 , 来自:江苏省0==
用户被禁言,该主题自动屏蔽!
爆料有奖!关注昆山论坛抖音号,抖音搜索“昆山论坛”,或搜索抖音号:ksbbs
 
美女离线中行装修贷
级别: 禁止发言
发帖
38
昆币
34 枚
5楼 发表于: 2019-08-17 , 来自:江苏省0==
用户被禁言,该主题自动屏蔽!
爆料有奖!关注昆山论坛抖音号,抖音搜索“昆山论坛”,或搜索抖音号:ksbbs
 
离线guwangwang
级别: 昆山过客
发帖
41
昆币
74 枚
6楼 发表于: 2019-08-29 , 来自:江苏省0==
水电材料进场了,上图!!!










本帖评分记录
wanglin212 昆币 +1 -来自昆山论坛APP 2019-09-11
1条评分昆币+1
爆料有奖!关注昆山论坛抖音号,抖音搜索“昆山论坛”,或搜索抖音号:ksbbs
 
离线wanglin212
级别: 昆山过客
发帖
17
昆币
21 枚
7楼 发表于: 2019-09-11 , 来自:未知0==
李工不错
爆料有奖!关注昆山论坛抖音号,抖音搜索“昆山论坛”,或搜索抖音号:ksbbs
 
离线黑人阿邱
级别: 初来乍到
发帖
2
昆币
2 枚
8楼 发表于: 2019-09-11 , 来自:江苏省0==
期待后期更新,保护做的不错
爆料有奖!关注昆山论坛抖音号,抖音搜索“昆山论坛”,或搜索抖音号:ksbbs
 
帅哥离线帅哥一妹妹
级别: 初来乍到
发帖
4
昆币
4 枚
9楼 发表于: 2019-09-11 , 来自:江苏省0==
他们公司九锦颐和口碑不错的
爆料有奖!关注昆山论坛抖音号,抖音搜索“昆山论坛”,或搜索抖音号:ksbbs
 
快速回复
限76 字节
如果您提交过一次失败了,可以用”恢复数据”来恢复帖子内容
 
上一个 下一个