夜间模式
  • 613513阅读
  • 1244回复

【叶氏·大美居整体软装】---携手蛮好德~小屋养成记 [复制链接]

上一主题 下一主题
美女离线昆山和美门窗
级别: 禁止发言
发帖
7597
昆币
22038 枚
10楼 发表于: 2019-08-29 , 来自:北京市0==
用户被禁言,该主题自动屏蔽!
爆料有奖!关注昆山论坛抖音号,抖音搜索“昆山论坛”,或搜索抖音号:ksbbs
 
帅哥离线指尖微光
发帖
943
昆币
1211 枚
11楼 发表于: 2019-08-29 , 来自:江苏省0==
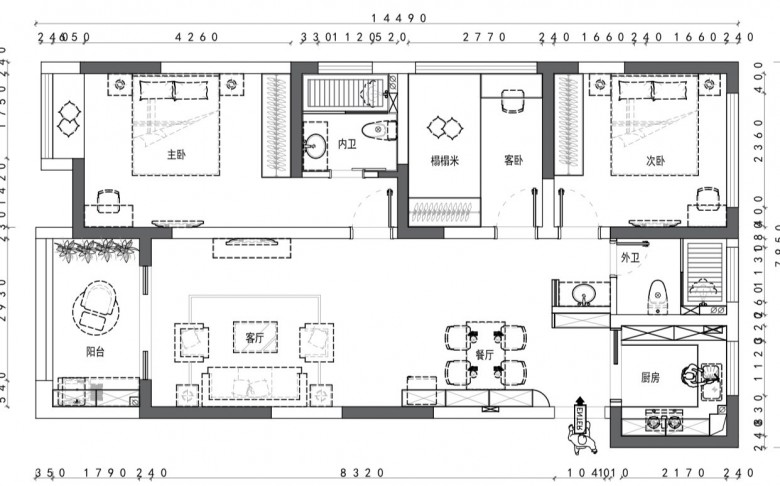
上一下户型图~定了大金的中央空调~1拖3,还有一个榻榻米房间放个挂壁的。

本帖评分记录
米老爷 昆币 +1 -来自昆山论坛APP 2019-11-02
指尖微光 昆币 +1 -来自昆山论坛APP 2019-08-30
2条评分昆币+2
爆料有奖!关注昆山论坛抖音号,抖音搜索“昆山论坛”,或搜索抖音号:ksbbs
 
帅哥离线指尖微光
发帖
943
昆币
1211 枚
12楼 发表于: 2019-08-30 , 来自:江苏省0==
Edwin9903:恭喜!开工大吉[表情]  (2019-08-29 14:05) 

谢谢
本帖评分记录
米老爷 昆币 +1 -来自昆山论坛APP 2019-11-03
1条评分昆币+1
爆料有奖!关注昆山论坛抖音号,抖音搜索“昆山论坛”,或搜索抖音号:ksbbs
 
帅哥离线指尖微光
发帖
943
昆币
1211 枚
13楼 发表于: 2019-08-30 , 来自:江苏省0==
小胖子跳高:恭喜恭喜[表情] (2019-08-29 15:25) 

谢谢
本帖评分记录
米老爷 昆币 +1 -来自昆山论坛APP 2019-11-03
1条评分昆币+1
爆料有奖!关注昆山论坛抖音号,抖音搜索“昆山论坛”,或搜索抖音号:ksbbs
 
美女离线荣盛门窗
级别: 禁止发言

发帖
7737
昆币
8552 枚
14楼 发表于: 2019-08-30 , 来自:江苏省0==
用户被禁言,该主题自动屏蔽!
爆料有奖!关注昆山论坛抖音号,抖音搜索“昆山论坛”,或搜索抖音号:ksbbs
 
美女离线荣盛门窗
级别: 禁止发言

发帖
7737
昆币
8552 枚
15楼 发表于: 2019-08-30 , 来自:江苏省0==
用户被禁言,该主题自动屏蔽!
爆料有奖!关注昆山论坛抖音号,抖音搜索“昆山论坛”,或搜索抖音号:ksbbs
 
帅哥离线指尖微光
发帖
943
昆币
1211 枚
16楼 发表于: 2019-08-31 , 来自:未知0==
效果图设计师也赶工做完啦,很感谢。后期的配色样式还需要修改。


爆料有奖!关注昆山论坛抖音号,抖音搜索“昆山论坛”,或搜索抖音号:ksbbs
 
帅哥离线梦里有
级别: 昆山过客
发帖
64
昆币
50 枚
17楼 发表于: 2019-08-31 , 来自:江苏省0==
我是做家装分期的有需要的联系
本帖评分记录
专业各种拆除 昆币 +1 -来自昆山论坛APP 2019-09-02
1条评分昆币+1
爆料有奖!关注昆山论坛抖音号,抖音搜索“昆山论坛”,或搜索抖音号:ksbbs
 
帅哥离线小熊系统门窗
级别: 昆山新人
发帖
197
昆币
8749 枚
18楼 发表于: 2019-08-31 , 来自:上海市0==
恭喜恭喜 开工大吉。
爆料有奖!关注昆山论坛抖音号,抖音搜索“昆山论坛”,或搜索抖音号:ksbbs
 
帅哥离线指尖微光
发帖
943
昆币
1211 枚
19楼 发表于: 2019-08-31 , 来自:未知0==
今天跑了一圈建材市场,定了地板,瓷砖,进户防盗门,封阳台等~感觉又瘪了许多~
1.瓷砖选的马可波罗的~具体用量还等现场量~厨房柜子下面打算用次点的砖,毕竟也看不到。这里涉及到一个地砖上墙的问题,若是选300600瓷片,就不太需要刷背胶。800800的话,需要进行裁切加工,而且要刷背胶粘贴,不然重量大,容易掉。这就产生一些加工费与胶的费用~不过地砖上墙耐久度高。
2.地板看了许久,大自然,圣象,世友等,3个建材市场也都看了下。因为选的是多层的~所以实木和强化的也没去看。实木的,是一整块板~中间不含胶~是最环保的!稳定性也是3者中稍差一点~毕竟空气干湿度,木材含水量,都会影响后期会不会起皮、开裂等。价格按木种、样式区别不等;强化地板,价格是亮点,稳定性也好,抗潮防霉能力都不错,不过环保也是硬伤,家里有小朋友的,慎选,选的话也挑大品牌,并且索要相关环保质检证明。最后我选的是实木多层的,多层分为3层,5层,9层,11层。具体分每个品牌不一样,主打的也有区别。稳定性介于两者之间,环保较之强化好很多。当然质检报告也很重要,虽然是片检的。相关环保说明,让商家在发票里面备注清楚。“定金”字眼很重要,可以的话加个备注~退款条件什么的。
爆料有奖!关注昆山论坛抖音号,抖音搜索“昆山论坛”,或搜索抖音号:ksbbs
 
快速回复
限76 字节
如果您提交过一次失败了,可以用”恢复数据”来恢复帖子内容
 
上一个 下一个