装修是个头疼的问题,也听过太多坑和套路,心里自然有点数了,现在这个市场套路太深了,我们也慢慢自己要学会判断好坏,装修知识,最基本的也需要掌握一二才行,不是太懂,装个样子,哈哈。
这次自己家也要进行装修了,我希望有时间可以在这里记录家里的装修进程,当日记来看看,至少自己也算是昆山论坛的老粉儿了,不会无聊的来顶。
家里的装修风格定的是现代风,家里人都挺喜欢,个人感觉这个风格不会随着每年的流行趋势变化的太大吧,也不容易过时。再者,其实我认为风格等入住以后就变成自己的风格了,主要是家里的装修有自己喜欢的样子和特色在。
家里的装修公司定的是印象水仙室内设计,一是我朋友介绍的,二来就是逛同小区邻居的时候看到他们公司的工地做的还不错,第一眼好感不错。下面是9月20日早上的开工照,仪式感很隆重鲜花礼炮,哈哈。
说实话,选择装修公司真是个技术活,我跟老公两人看似平时能说会道,侃侃而谈,真要说装修,比起专业的还真的算“小白”,还好,有懂门道的朋友引领我们,一开始我在论坛里找口碑,口碑与信誉都排得上名的几家公司,二就是登门实践啦,我们也算牺牲了许多休息的时间,比工艺、比价格、比材料......(当然,这里感谢我们的朋友做足了功课,否则我们自己还真是无头苍蝇般毫无头绪,我本人还还在上海工作,还好老公在本地,时间比我多一些),当然,走访了不少装修公司也慢慢学会了用眼看、用耳听、用头脑思考,学会了去比较,最后我们两家共同选择了印象水仙设计,一来呢口碑不错,工艺也值得信赖,之前看到的水电阶段的工地就做得很好,二来呢价格合理,我们就确定了。
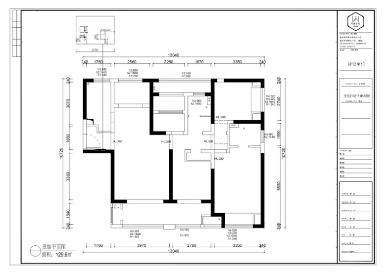
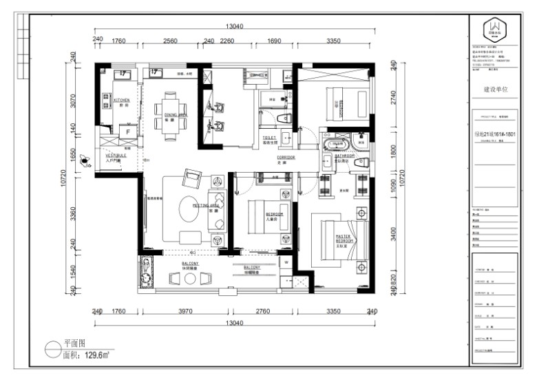
下面是我们家的原始图和平面图,很满意的布局。
目前家里在敲墙.....后续我会慢慢分享的。