夜间模式
  • 10666阅读
  • 5回复

[装修]印象水仙 | 如此浪漫,定不负好时光,124 ㎡法式 [复制链接]

上一主题 下一主题
帅哥离线印象水仙设计
级别: 家装商家
发帖
11306
昆币
19355 枚
只看楼主 使用道具 电梯直达
楼主  发表于: 2019-11-03 , 来自:江苏省0==



巴黎的人文风情,是最美的梦境,
透过风流婉转的明媚微光,
让人无限憧憬与怀念。





'ABOUT THE HOUSE'


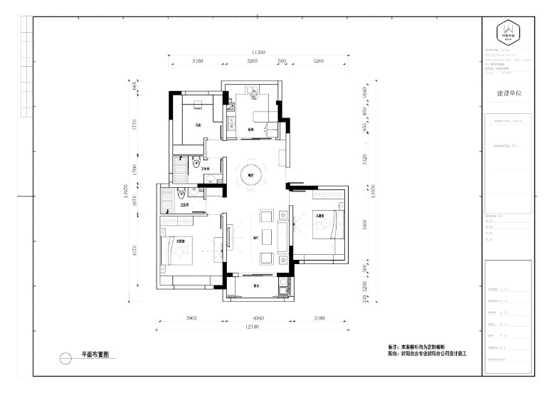
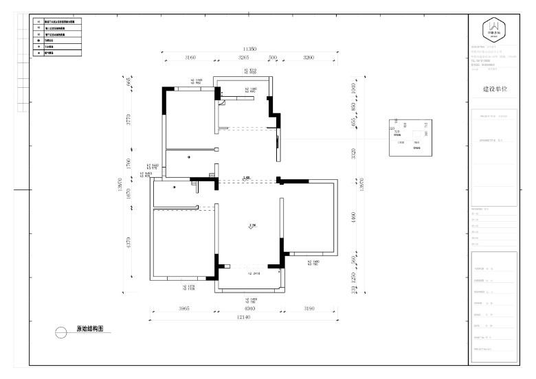
户型:三室两厅一厨两卫
风格:124㎡法式
硬 装 设 计:印象水仙
软 装 设 计:印象水仙
施          工:印象水仙


这是一套法式实景完工案例,设计师根据业主的喜好确定了法式风格,让人感觉很大的活动空间,整个色调温馨,浪漫,给人一种扑面而来的浓郁气息。

原始结构图

平面布置图


三维空间展示







* Living  Room


客厅优雅大气,别致的水晶吊灯和墙面造型,搭配宝蓝色沙发与白色茶几,让整个客厅都生机勃勃。



* Dining  Room



餐厅整体延续了客厅的风格,圆形餐桌搭配宝蓝色餐椅,艺术玻璃移门,巧妙地隔断厨房空间。



* Kitchen



厨房U型设计,巧妙的利用空间,整体色调采用明亮的白色调,给人一种纯净通透的感觉。

* Bedroom 1



主卧在色调运用上,以浅色为主,在视觉感知上,衣橱的纯白色令人觉得柔和、舒适,而宝蓝色的点缀,使空间在和谐统一的基础上更具有视觉层次感。



* Bedroom 2



儿童房的设计充满男孩的俏皮,蓝色床品搭配同色系墙面,青春又不失温馨,减少过多的室内包装设计,打造更加舒适简洁的卧室环境。

* study



书房/衣帽间,窗台大面积的书桌充分利用了室内空间,增加了学工作的区域,阳光透过窗户赋予整个空间更为通透的质感,整体悠闲而惬意。

* Washroom




卫生间整个空间干净整洁,淋浴区、马桶及洗脸盆的分布合理。


本帖评分记录
昆山伟宏门窗 昆币 +1 -来自昆山论坛APP 2019-11-03
1条评分昆币+1
爆料有奖!关注昆山论坛抖音号,抖音搜索“昆山论坛”,或搜索抖音号:ksbbs
 
美女离线昆山伟宏门窗
级别: 禁止发言

发帖
18978
昆币
32400 枚
沙发  发表于: 2019-11-03 , 来自:江苏省0==
用户被禁言,该主题自动屏蔽!
爆料有奖!关注昆山论坛抖音号,抖音搜索“昆山论坛”,或搜索抖音号:ksbbs
 
帅哥离线暴富暴瘦
级别: 昆山新人
发帖
292
昆币
470 枚
板凳  发表于: 2019-11-04 , 来自:江苏省0==
求小姐姐联系方式
本帖评分记录
印象水仙设计 昆币 +1 -来自昆山论坛APP 2019-11-04
1条评分昆币+1
爆料有奖!关注昆山论坛抖音号,抖音搜索“昆山论坛”,或搜索抖音号:ksbbs
 
帅哥离线印象水仙设计
级别: 家装商家
发帖
11306
昆币
19355 枚
地板  发表于: 2019-11-04 , 来自:江苏省0==
暴富暴瘦:求小姐姐联系方式[表情] (2019-11-04 02:50) 

早上好,小姐姐来了。哈哈。

电话、微信:15962697359
爆料有奖!关注昆山论坛抖音号,抖音搜索“昆山论坛”,或搜索抖音号:ksbbs
 
帅哥离线暴富暴瘦
级别: 昆山新人
发帖
292
昆币
470 枚
4楼 发表于: 2019-11-04 , 来自:未知0==
印象水仙设计:早上好,小姐姐来了。哈哈。
电话、微信:15962697359 (2019-11-04 07:44) 

客户小姐姐的微信吗
爆料有奖!关注昆山论坛抖音号,抖音搜索“昆山论坛”,或搜索抖音号:ksbbs
 
帅哥离线印象水仙设计
级别: 家装商家
发帖
11306
昆币
19355 枚
5楼 发表于: 2019-11-05 , 来自:江苏省0==
暴富暴瘦:客户小姐姐的微信吗[表情] (2019-11-04 10:12) 

你先加金钟微信,让他推送给你吧,客户信息我们得跟客户商量好才能透露哦。他们家情况金钟都了如指掌,也会帮到你的。
爆料有奖!关注昆山论坛抖音号,抖音搜索“昆山论坛”,或搜索抖音号:ksbbs
 
快速回复
限76 字节
如果您提交过一次失败了,可以用”恢复数据”来恢复帖子内容
 
上一个 下一个