夜间模式
  • 133187阅读
  • 68回复

疫情当前,我开始了我的装修计划!华易达,我的后半辈子就交给你了! [复制链接]

上一主题 下一主题
美女离线nakai
级别: 昆山过客
发帖
63
昆币
204 枚
10楼 发表于: 2020-03-12 , 来自:江苏省0==
回 东莞皇后娘娘 的帖子
东莞皇后娘娘:楼主 装修大概多少钱 (2020-03-11 16:25)

我下午就直接去他们公司,和设计具体沟通下 我看看他的设计报价 嘿嘿
爆料有奖!关注昆山论坛抖音号,抖音搜索“昆山论坛”,或搜索抖音号:ksbbs
 
美女离线nakai
级别: 昆山过客
发帖
63
昆币
204 枚
11楼 发表于: 2020-03-12 , 来自:江苏省0==

今天去他们看了一下




设计师问了我一些问题 比如我的喜爱、家庭成员、生活惯、行李多不多,居然还要考虑到我的职业!真是出乎我的意料。当然最最重要的是我的资金和预算,嗯~全程我就像个认真听课的孩子




我比较感动的是设计师并没有向我推荐高价的装修计划,他根据我之前在线上跟他沟通的情况作了草图,上次跟他说我想要那种一进门就给别人很宽敞的感觉,不要显得拥挤。今天详细聊了之后,很用心的根据我的预算一点点为我解答和建议。整体下来我心里也有底了。终于确定下了设计图。




整个下午估计他就接待我一个人了,很有耐心。以前不会看图纸,即使看了也没有直观的感受,经过设计师一下午的“精心辅导”,我终于能够看图纸想象出未来的家了!竟然莫名的有幸福感。哈哈哈哈


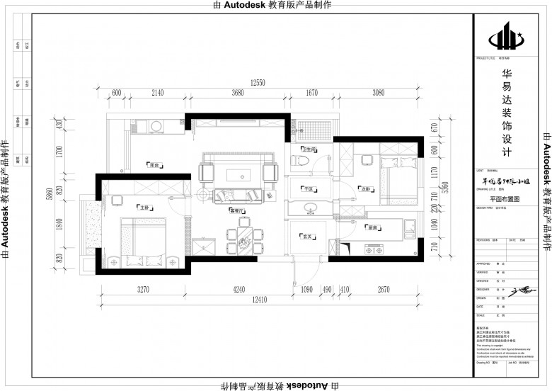
下面就是我家的设计图!快看啊!


爆料有奖!关注昆山论坛抖音号,抖音搜索“昆山论坛”,或搜索抖音号:ksbbs
 
美女离线nakai
级别: 昆山过客
发帖
63
昆币
204 枚
12楼 发表于: 2020-03-13 , 来自:江苏省0==
爆料有奖!关注昆山论坛抖音号,抖音搜索“昆山论坛”,或搜索抖音号:ksbbs
 
离线kpelervi
级别: 昆山新人
发帖
380
昆币
409 枚
13楼 发表于: 2020-03-13 , 来自:江苏省0==
现在也没法开工吧?小区让进吗
爆料有奖!关注昆山论坛抖音号,抖音搜索“昆山论坛”,或搜索抖音号:ksbbs
 
离线kpelervi
级别: 昆山新人
发帖
380
昆币
409 枚
14楼 发表于: 2020-03-13 , 来自:江苏省0==
爆料有奖!关注昆山论坛抖音号,抖音搜索“昆山论坛”,或搜索抖音号:ksbbs
 
美女离线nakai
级别: 昆山过客
发帖
63
昆币
204 枚
15楼 发表于: 2020-03-13 , 来自:江苏省0==
回 kpelervi 的帖子
kpelervi:现在也没法开工吧?小区让进吗 (2020-03-13 14:33)

还不能进呢 看小区啥时候让进吧 先把东西定好 等能进了就直接开工。
爆料有奖!关注昆山论坛抖音号,抖音搜索“昆山论坛”,或搜索抖音号:ksbbs
 
美女离线nakai
级别: 昆山过客
发帖
63
昆币
204 枚
16楼 发表于: 2020-03-16 , 来自:江苏省0==
我们小区可以进来装修了。施工队在门口排了半个多小时的队办理通行证,真是辛苦啦!
爆料有奖!关注昆山论坛抖音号,抖音搜索“昆山论坛”,或搜索抖音号:ksbbs
 
帅哥离线Haaaaarukii
级别: 昆山新人
发帖
311
昆币
380 枚
17楼 发表于: 2020-03-16 , 来自:江苏省0==
竟然可以进小区装修了
爆料有奖!关注昆山论坛抖音号,抖音搜索“昆山论坛”,或搜索抖音号:ksbbs
 
美女离线nakai
级别: 昆山过客
发帖
63
昆币
204 枚
18楼 发表于: 2020-03-16 , 来自:江苏省0==
Haaaaarukii:竟然可以进小区装修了[表情]  (2020-03-16 14:00) 

对的呢 就是这种通行证
爆料有奖!关注昆山论坛抖音号,抖音搜索“昆山论坛”,或搜索抖音号:ksbbs
 
美女离线nakai
级别: 昆山过客
发帖
63
昆币
204 枚
19楼 发表于: 2020-03-19 , 来自:江苏省0==
我家小区终于正式开工了,各种手续办好,开工大吉!后面给你们看我家的效果图。
爆料有奖!关注昆山论坛抖音号,抖音搜索“昆山论坛”,或搜索抖音号:ksbbs
 
快速回复
限76 字节
如果您在写长篇帖子又不马上发表,建议存为草稿
 
上一个 下一个