夜间模式
  • 264760阅读
  • 118回复

论坛小白的装修日记开始啦!请大家多多指教! [复制链接]

上一主题 下一主题
美女离线manyu
级别: 昆山过客
发帖
39
昆币
53 枚
10楼 发表于: 2020-04-03 , 来自:江苏省0==
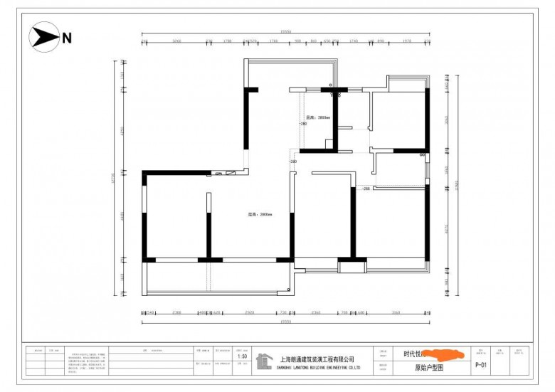
先发一下我家的原始户型图,户型还是满意的,四开间朝南

爆料有奖!关注昆山论坛抖音号,抖音搜索“昆山论坛”,或搜索抖音号:ksbbs
 
美女离线manyu
级别: 昆山过客
发帖
39
昆币
53 枚
11楼 发表于: 2020-04-03 , 来自:江苏省0==
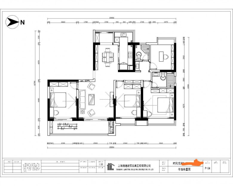
厨房比较小,一些厨房电器没处安家(特别是大号洗碗机),起初设计师建议放在北阳台的高柜,可能是个人生活惯,也为了以后用起来方便,还是要求小宋妹妹把电器全塞进厨房,大家可以看看变动后的厨房空间,电器可以安排的妥妥的!改动后又怕餐厅视野受到影响,矛盾

爆料有奖!关注昆山论坛抖音号,抖音搜索“昆山论坛”,或搜索抖音号:ksbbs
 
帅哥离线leo2008
发帖
1151
昆币
17 枚
12楼 发表于: 2020-04-04 , 来自:江苏省0==
manyu:厨房比较小,一些厨房电器没处安家(特别是大号洗碗机),起初设计师建议放在北阳台的高柜,可能是个人生活惯,也为了以后用起来方便,还是要求小宋妹妹把电器全塞进厨房,大家可以看看变动后的厨房空间,电器可以安排的妥妥的!改动后又怕餐厅视野受到影响,矛盾
[attachment=5 .. (2020-04-03 14:26) 

洗碗机放在水槽旁边方便操作
爆料有奖!关注昆山论坛抖音号,抖音搜索“昆山论坛”,或搜索抖音号:ksbbs
 
美女离线不动脑的兔子
级别: 初来乍到
发帖
7
昆币
2 枚
13楼 发表于: 2020-04-04 , 来自:江苏省0==
恭喜开工
爆料有奖!关注昆山论坛抖音号,抖音搜索“昆山论坛”,或搜索抖音号:ksbbs
 
美女离线manyu
级别: 昆山过客
发帖
39
昆币
53 枚
14楼 发表于: 2020-04-04 , 来自:未知0==
4月4日是全国哀悼日,向牺牲的烈士及数以千计的同胞逝世表示哀悼。
爆料有奖!关注昆山论坛抖音号,抖音搜索“昆山论坛”,或搜索抖音号:ksbbs
 
美女离线manyu
级别: 昆山过客
发帖
39
昆币
53 枚
15楼 发表于: 2020-04-04 , 来自:未知0==
今天也是我们家水电交底的日子,中央空调、地暖,软水、净水,集成灶,定制,假期过来,感谢感谢





爆料有奖!关注昆山论坛抖音号,抖音搜索“昆山论坛”,或搜索抖音号:ksbbs
 
美女离线manyu
级别: 昆山过客
发帖
39
昆币
53 枚
16楼 发表于: 2020-04-04 , 来自:未知0==
主卫台盆想做墙排,水电师傅说因为存水弯的问题不太好做,朗通洪监理跟水电师傅沟通商量,想办法帮我解决
爆料有奖!关注昆山论坛抖音号,抖音搜索“昆山论坛”,或搜索抖音号:ksbbs
 
离线浅睡辄止
级别: 昆山新人
发帖
324
昆币
1362 枚
17楼 发表于: 2020-04-04 , 来自:江苏省0==
不容易啊,装修费心
爆料有奖!关注昆山论坛抖音号,抖音搜索“昆山论坛”,或搜索抖音号:ksbbs
 
美女离线manyu
级别: 昆山过客
发帖
39
昆币
53 枚
18楼 发表于: 2020-04-04 , 来自:江苏省0==
leo2008:洗碗机放在水槽旁边方便操作[表情] (2020-04-04 06:37) 

对的,就是考虑操作方便,才把厨房电器全塞进去了
爆料有奖!关注昆山论坛抖音号,抖音搜索“昆山论坛”,或搜索抖音号:ksbbs
 
美女离线manyu
级别: 昆山过客
发帖
39
昆币
53 枚
19楼 发表于: 2020-04-06 , 来自:江苏省0==
昨天去月星看家具,不看没事,看了之后,竟然把我主卧的装修方案推翻了,我家那位看中的床,老板帮我实际算了下卧室尺寸,床和床头柜进去后简直无处下脚,果断改方案,衣柜改到床尾(卧室宽度足够),建议大家定好风格后,先定家具再设计施工,这样插座什么的都好安排!
(水电已经进厂的,还临时改方案,这操作服了我自己


爆料有奖!关注昆山论坛抖音号,抖音搜索“昆山论坛”,或搜索抖音号:ksbbs
 
快速回复
限76 字节
批量上传需要先选择文件,再选择上传
 
上一个 下一个