夜间模式
  • 74763阅读
  • 27回复

127平方三房两卫现代风装修日记 [复制链接]

上一主题 下一主题
级别: 初来乍到
发帖
6
昆币
18 枚
只看楼主 使用道具 电梯直达
楼主  发表于: 2020-04-13 , 来自:江苏省0==
    去年11月底拿的房,在12.9的9.18分开工了。选的装修公司是1918,因为本人喜欢看家装论坛,一次偶然的机会看到1918的装修的水电图,水管,电管,工地现场都紧然有序。再加上大家对他家的口碑都不错。所以义不容辞的选择了1918。在这里要特别感谢一下袁总和许监理。
    本人的补的装修心得,现在进度在贴砖。废话不多说了,上图
本帖评分记录
青青叶 昆币 +1 -来自昆山论坛APP 2020-08-29
林必成 昆币 +1 -来自昆山论坛APP 2020-08-17
旭日东升gogo 昆币 +1 -来自昆山论坛APP 2020-06-30
年少轻狂灬 昆币 +1 -来自昆山论坛APP 2020-05-25
玖珂石材 昆币 +1 -来自昆山论坛APP 2020-05-16
昆山伟宏门窗 昆币 +1 -来自昆山论坛APP 2020-04-14
桃子11 昆币 +1 -来自昆山论坛APP 2020-04-14
雷池装饰 昆币 +1 -来自昆山论坛APP 2020-04-14
昆山和美门窗 昆币 +1 -来自昆山论坛APP 2020-04-13
荣盛门窗 昆币 +1 -来自昆山论坛APP 2020-04-13
12
11条评分昆币+11
爆料有奖!关注昆山论坛抖音号,抖音搜索“昆山论坛”,或搜索抖音号:ksbbs
 
帅哥离线1918设计
级别: 禁止发声
发帖
9059
昆币
10185 枚
沙发  发表于: 2020-04-13 , 来自:江苏省0==
感谢信任,定不负所望,一定给您一个温馨舒适的家。
爆料有奖!关注昆山论坛抖音号,抖音搜索“昆山论坛”,或搜索抖音号:ksbbs
 
美女离线装修版客服
发帖
10174
昆币
22137 枚
板凳  发表于: 2020-04-13 , 来自:江苏省0==
爆料有奖!关注昆山论坛抖音号,抖音搜索“昆山论坛”,或搜索抖音号:ksbbs
 
美女离线昆山和美门窗
级别: 禁止发言
发帖
7597
昆币
22038 枚
地板  发表于: 2020-04-13 , 来自:江苏省0==
用户被禁言,该主题自动屏蔽!
爆料有奖!关注昆山论坛抖音号,抖音搜索“昆山论坛”,或搜索抖音号:ksbbs
 
发帖
6918
昆币
6420 枚
4楼 发表于: 2020-04-14 , 来自:江苏省0==
关注了
【寅盛装饰无毒家装】装修不环保砸掉重做,昆山十年,口碑见证!
公司官网:[url][urlend2]
VR案例:[url][urlend2]
精品案例:[url][urlend2]
城东店:昆山市太湖路588号,左岸尚海湾3-103商铺 ( 近震川东路,阳光水世界对面 )
昆山城北店:昆山市柏庐北路94号(柏庐大桥向北200米左右)

爆料有奖!关注昆山论坛抖音号,抖音搜索“昆山论坛”,或搜索抖音号:ksbbs
 
离线全度家居
级别: 昆山过客
发帖
30
昆币
76 枚
5楼 发表于: 2020-04-14 , 来自:江苏省0==
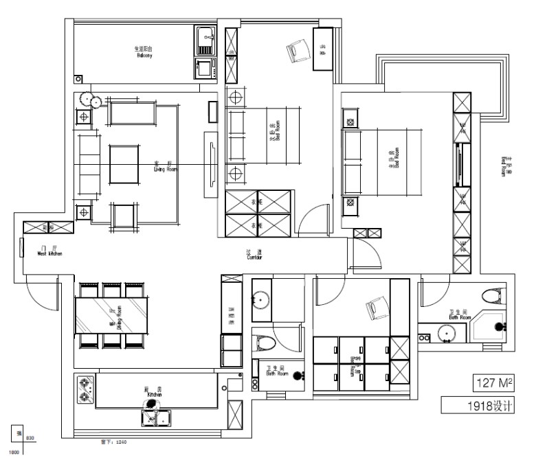
这房型不错,南北通透,大窗户。
爆料有奖!关注昆山论坛抖音号,抖音搜索“昆山论坛”,或搜索抖音号:ksbbs
 
级别: 初来乍到
发帖
6
昆币
18 枚
6楼 发表于: 2020-04-14 , 来自:江苏省0==
来波美美的下沉式的卫生间布局
爆料有奖!关注昆山论坛抖音号,抖音搜索“昆山论坛”,或搜索抖音号:ksbbs
 
级别: 初来乍到
发帖
6
昆币
18 枚
7楼 发表于: 2020-04-14 , 来自:江苏省0==
于4月9日完成了防水试验,上波美照。
爆料有奖!关注昆山论坛抖音号,抖音搜索“昆山论坛”,或搜索抖音号:ksbbs
 
级别: 初来乍到
发帖
6
昆币
18 枚
8楼 发表于: 2020-04-14 , 来自:江苏省0==
接下煤气布管,空调安装,地砖铺设,装窗户简单而有序的进行中。
窗户用的是:帝奥斯
地砖:L&D唯美(包给1918的)
空调:美的(开发商送的),一直是个梗,想置换,但置换价不高。最后还是用了。

[ 此帖被沉默的羔羊?在2020-04-14 10:56重新编辑 ]
爆料有奖!关注昆山论坛抖音号,抖音搜索“昆山论坛”,或搜索抖音号:ksbbs
 
美女离线昆山伟宏门窗
级别: 禁止发言

发帖
18978
昆币
32400 枚
9楼 发表于: 2020-04-14 , 来自:江苏省0==
用户被禁言,该主题自动屏蔽!
爆料有奖!关注昆山论坛抖音号,抖音搜索“昆山论坛”,或搜索抖音号:ksbbs
 
快速回复
限76 字节
如果您在写长篇帖子又不马上发表,建议存为草稿
 
上一个 下一个