夜间模式
  • 580391阅读
  • 257回复

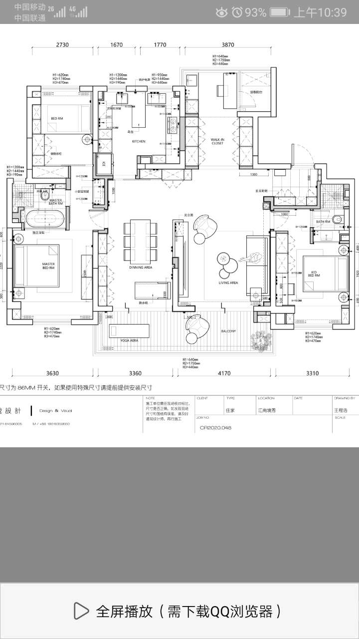
江南境秀171平-四卧室改为两卧室,大横客厅自由空间 [复制链接]

上一主题 下一主题
离线湖关歌德
发帖
704
昆币
1424 枚
30楼 发表于: 2020-08-01 , 来自:江苏省0==
崬鼕:O大的?
楼主是不是也上CHH? (2020-07-31 08:22) 

是的 O大  chh   同一id   去O大公司订的在宜山路
爆料有奖!关注昆山论坛抖音号,抖音搜索“昆山论坛”,或搜索抖音号:ksbbs
 
离线LuoDaKuang
级别: 昆山新人
发帖
255
昆币
282 枚
31楼 发表于: 2020-08-03 , 来自:江苏省0==
持续关注!
爆料有奖!关注昆山论坛抖音号,抖音搜索“昆山论坛”,或搜索抖音号:ksbbs
 
离线湖关歌德
发帖
704
昆币
1424 枚
32楼 发表于: 2020-08-08 , 来自:江苏省0==
最终
爆料有奖!关注昆山论坛抖音号,抖音搜索“昆山论坛”,或搜索抖音号:ksbbs
 
离线湖关歌德
发帖
704
昆币
1424 枚
33楼 发表于: 2020-08-08 , 来自:江苏省0==
效果
爆料有奖!关注昆山论坛抖音号,抖音搜索“昆山论坛”,或搜索抖音号:ksbbs
 
帅哥离线Haaaaarukii
级别: 昆山新人
发帖
311
昆币
380 枚
34楼 发表于: 2020-08-10 , 来自:江苏省0==

哈哈哈,这个非常可以
爆料有奖!关注昆山论坛抖音号,抖音搜索“昆山论坛”,或搜索抖音号:ksbbs
 
离线湖关歌德
发帖
704
昆币
1424 枚
35楼 发表于: 2020-08-10 , 来自:江苏省0==
木厨柜




爆料有奖!关注昆山论坛抖音号,抖音搜索“昆山论坛”,或搜索抖音号:ksbbs
 
离线湖关歌德
发帖
704
昆币
1424 枚
36楼 发表于: 2020-08-14 , 来自:江苏省0==
炉子
爆料有奖!关注昆山论坛抖音号,抖音搜索“昆山论坛”,或搜索抖音号:ksbbs
 
离线湖关歌德
发帖
704
昆币
1424 枚
37楼 发表于: 2020-08-16 , 来自:江苏省0==
mini

爆料有奖!关注昆山论坛抖音号,抖音搜索“昆山论坛”,或搜索抖音号:ksbbs
 
离线willingme
发帖
1083
昆币
1236 枚
38楼 发表于: 2020-08-16 , 来自:江苏省0==
期待后续(˙ー˙)
爆料有奖!关注昆山论坛抖音号,抖音搜索“昆山论坛”,或搜索抖音号:ksbbs
 
离线湖关歌德
发帖
704
昆币
1424 枚
39楼 发表于: 2020-08-16 , 来自:江苏省0==
快步 费罗娜  山塞德录






爆料有奖!关注昆山论坛抖音号,抖音搜索“昆山论坛”,或搜索抖音号:ksbbs
 
快速回复
限76 字节
如果您提交过一次失败了,可以用”恢复数据”来恢复帖子内容
 
上一个 下一个