夜间模式
  • 279451阅读
  • 254回复

【薇薇家居全案软装】携手薇薇家居,打造意式极简舒适空间❤白鹭湾软装实记 [复制链接]

上一主题 下一主题
级别: 昆山新人
发帖
148
昆币
159 枚
只看楼主 使用道具 电梯直达
楼主  发表于: 2020-08-24 , 来自:江苏省0==
家装日记
小区: 白鹭湾
套内面积: 300 (平米)
预算: 软装20万 万
开工日期: 2020-07-04
装修风格: 简约
装修方式: 半包
装修公司: 大业美居
写在前面
      房子从去年年底就开始施工,原计划是秋天入住,因为疫情的关系拖到现在仍在施工阶段,所以入住时间同样往后延期,现在计划是在过年之前能入住。尽管如此,由于我们夫妻两个最初就商量好,认为装修还是要提前决定好软装部分,一方面软装决定房子的整体基调,另一方面软装涉及到的家居用品比较丰富,比如大到沙发、床,小到装饰画、地毯、抱枕颜色等等。所以根据预算提前确定软装细节也能节省很多时间。所以疫情刚过就跑遍了昆山的软装设计公司,几经筛选后,在4月初确定了薇薇家居来帮我们设计软装这一部分。因为装修时间过长,所以硬装部分就略过,主要来讲一讲我们与薇薇家居设计师沟通确定软装部分的过程。



本帖评分记录
月涧横千丈 昆币 +1 -来自昆山论坛APP 2020-09-17
薇薇家居 昆币 +1 -来自昆山论坛APP 2020-08-30
昆山伟宏门窗 昆币 +1 -来自昆山论坛APP 2020-08-28
薇薇家居客服 昆币 +1 -来自昆山论坛APP 2020-08-26
昆山和美门窗 昆币 +1 -来自昆山论坛APP 2020-08-25
荣盛门窗 昆币 +1 -来自昆山论坛APP 2020-08-25
6条评分昆币+6
爆料有奖!关注昆山论坛抖音号,抖音搜索“昆山论坛”,或搜索抖音号:ksbbs
 
级别: 昆山新人
发帖
148
昆币
159 枚
沙发  发表于: 2020-08-24 , 来自:江苏省0==
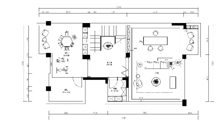
平面图
    一楼空间归为四类,客厅,茶室,厨房,餐厅
爆料有奖!关注昆山论坛抖音号,抖音搜索“昆山论坛”,或搜索抖音号:ksbbs
 
级别: 昆山新人
发帖
148
昆币
159 枚
板凳  发表于: 2020-08-24 , 来自:江苏省0==
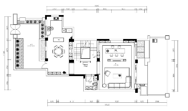
二楼分为主卧、儿童房、父母房、书房
爆料有奖!关注昆山论坛抖音号,抖音搜索“昆山论坛”,或搜索抖音号:ksbbs
 
级别: 昆山新人
发帖
148
昆币
159 枚
地板  发表于: 2020-08-24 , 来自:江苏省0==
地下室是休闲区,分为影音室、吧台区、健身区。
爆料有奖!关注昆山论坛抖音号,抖音搜索“昆山论坛”,或搜索抖音号:ksbbs
 
离线willingme
发帖
1083
昆币
1236 枚
4楼 发表于: 2020-08-24 , 来自:江苏省0==
    
爆料有奖!关注昆山论坛抖音号,抖音搜索“昆山论坛”,或搜索抖音号:ksbbs
 
美女离线七月海棠红
级别: 昆山新人
发帖
222
昆币
281 枚
5楼 发表于: 2020-08-25 , 来自:江苏省0==
柠檬精路过,楼主真壕
爆料有奖!关注昆山论坛抖音号,抖音搜索“昆山论坛”,或搜索抖音号:ksbbs
 
美女离线昆山和美门窗
级别: 禁止发言
发帖
7597
昆币
22038 枚
6楼 发表于: 2020-08-25 , 来自:江苏省0==
用户被禁言,该主题自动屏蔽!
爆料有奖!关注昆山论坛抖音号,抖音搜索“昆山论坛”,或搜索抖音号:ksbbs
 
级别: 昆山新人
发帖
148
昆币
159 枚
7楼 发表于: 2020-08-25 , 来自:江苏省0==
七夕快乐~伙伴们喜欢的话求关注留言哈~
爆料有奖!关注昆山论坛抖音号,抖音搜索“昆山论坛”,或搜索抖音号:ksbbs
 
级别: 昆山新人
发帖
148
昆币
159 枚
8楼 发表于: 2020-08-25 , 来自:江苏省0==
我们先在网上找了一些我们喜欢的案例,在和设计师初次见面的时候简单的沟通一下,设计师就很好的明白了我们的诉求。不得不说,有一个好的设计师真是事半功倍,在沟通方面无比的顺利,真的很赞。
爆料有奖!关注昆山论坛抖音号,抖音搜索“昆山论坛”,或搜索抖音号:ksbbs
 
级别: 昆山新人
发帖
148
昆币
159 枚
9楼 发表于: 2020-08-25 , 来自:江苏省0==
回 昆山和美门窗 的帖子
昆山和美门窗:[表情]楼主需要封窗户和做阳光房的话可以联系我。 (2020-08-25 21:00)

谢谢关注,我们封窗已经结束了
爆料有奖!关注昆山论坛抖音号,抖音搜索“昆山论坛”,或搜索抖音号:ksbbs
 
快速回复
限76 字节
如果您提交过一次失败了,可以用”恢复数据”来恢复帖子内容
 
上一个 下一个