夜间模式
  • 228782阅读
  • 120回复

【薇薇家居全案软装】与薇薇家居打造软装⭐白茶清风无别事,我在等风也等你 [复制链接]

上一主题 下一主题
美女离线星月满空山
级别: 昆山过客
发帖
53
昆币
58 枚
只看楼主 使用道具 电梯直达
楼主  发表于: 2020-09-16 , 来自:江苏省0==
家装日记
小区: 兰亭天悦
套内面积: 124 (平米)
预算: 20万 万
开工日期: 2020-05-01
装修风格: 简约
装修方式: 全包
装修公司: 薇薇家居软装
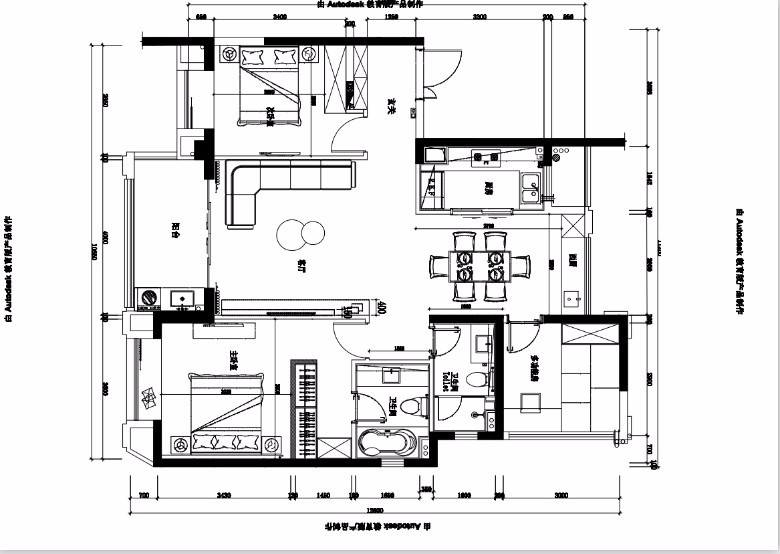
原始户型是二室一厅,三向朝南。考虑到生活学需要,将北面阳台改造了一下,改成了多动能房间。说是多动能房,其实是个榻榻米房间。可以用来学工作。或者客人来的时候也算是有个房间给客人住了。
本帖评分记录
星月满空山 昆币 +1 -来自昆山论坛APP 2020-09-29
薇薇家居客服 昆币 +1 -来自昆山论坛APP 2020-09-25
昆山和美门窗 昆币 +1 -来自昆山论坛APP 2020-09-17
昆山伟宏门窗 昆币 +1 -来自昆山论坛APP 2020-09-17
4条评分昆币+4
爆料有奖!关注昆山论坛抖音号,抖音搜索“昆山论坛”,或搜索抖音号:ksbbs
 
美女离线星月满空山
级别: 昆山过客
发帖
53
昆币
58 枚
沙发  发表于: 2020-09-16 , 来自:江苏省0==
改动后的户型看起来面积更大一些。原来北面阳台的功能都挪到南边的小阳台上,放置洗衣机和晾衣架,好在阳台面积充裕,除了洗衣机外,还能放个水池,没事弄弄花草也算是乐事了。
爆料有奖!关注昆山论坛抖音号,抖音搜索“昆山论坛”,或搜索抖音号:ksbbs
 
发帖
6918
昆币
6420 枚
板凳  发表于: 2020-09-17 , 来自:江苏省0==
楼主开工大吉
【寅盛装饰无毒家装】装修不环保砸掉重做,昆山十年,口碑见证!
公司官网:[url][urlend4]  
VR案例:[url][urlend4]  
精品案例:[url][urlend4]  
东店:昆山市太湖路588号,左岸尚海湾3-103商铺 ( 近震川东路,阳光水世界对面
昆山城北店:昆山市柏庐北路94号(柏庐大桥向北200米左右
爆料有奖!关注昆山论坛抖音号,抖音搜索“昆山论坛”,或搜索抖音号:ksbbs
 
美女离线昆山伟宏门窗
级别: 禁止发言

发帖
18978
昆币
32400 枚
地板  发表于: 2020-09-17 , 来自:未知0==
用户被禁言,该主题自动屏蔽!
爆料有奖!关注昆山论坛抖音号,抖音搜索“昆山论坛”,或搜索抖音号:ksbbs
 
美女离线昆山和美门窗
级别: 禁止发言
发帖
7597
昆币
22038 枚
4楼 发表于: 2020-09-17 , 来自:江苏省0==
用户被禁言,该主题自动屏蔽!
爆料有奖!关注昆山论坛抖音号,抖音搜索“昆山论坛”,或搜索抖音号:ksbbs
 
离线Edwin9903
发帖
1332
昆币
1485 枚
5楼 发表于: 2020-09-17 , 来自:江苏省0==
参观参观,
爆料有奖!关注昆山论坛抖音号,抖音搜索“昆山论坛”,或搜索抖音号:ksbbs
 
美女离线薇薇家居
级别: 昆山过客
发帖
93
昆币
102 枚
6楼 发表于: 2020-09-17 , 来自:江苏省0==
房子很方正哦
爆料有奖!关注昆山论坛抖音号,抖音搜索“昆山论坛”,或搜索抖音号:ksbbs
 
级别: 昆山新人
发帖
195
昆币
203 枚
7楼 发表于: 2020-09-18 , 来自:江苏省0==
期待楼主上图分享
爆料有奖!关注昆山论坛抖音号,抖音搜索“昆山论坛”,或搜索抖音号:ksbbs
 
发帖
553
昆币
602 枚
8楼 发表于: 2020-09-19 , 来自:江苏省0==

欢迎了解薇薇家居软装设计。我们有专业的软装设计师团队和近万平的实景展厅,囊括家居多种风格,更多的优秀案例欢迎咨询。
生活之美,贵在用心
居家之美,贵在经营
薇薇家居国际软装设计,为您整合家居行业优质资源
精心原创作品满足用户的个性化需求。
爆料有奖!关注昆山论坛抖音号,抖音搜索“昆山论坛”,或搜索抖音号:ksbbs
 
美女离线星月满空山
级别: 昆山过客
发帖
53
昆币
58 枚
9楼 发表于: 2020-09-19 , 来自:江苏省0==
谢谢大家的关注,现在房子已经基本完工了,进入到后期的家具进场阶段。软装是很重要的,摆了家具才有家的感觉。虽然我们软装只进行到中期没摆家具觉得有无限可能,想法很多。到后面跟设计师边沟通边确定自己的想法。再等到自己挑选的家具进场了之后看到自己喜欢的家具样式按照自己喜欢的方式摆设,很有成就感,也是很享受的一件事。
爆料有奖!关注昆山论坛抖音号,抖音搜索“昆山论坛”,或搜索抖音号:ksbbs
 
快速回复
限76 字节
如果您提交过一次失败了,可以用”恢复数据”来恢复帖子内容
 
上一个 下一个