|
楼主 发表于: 2020-09-19
, 来自:江苏省0==
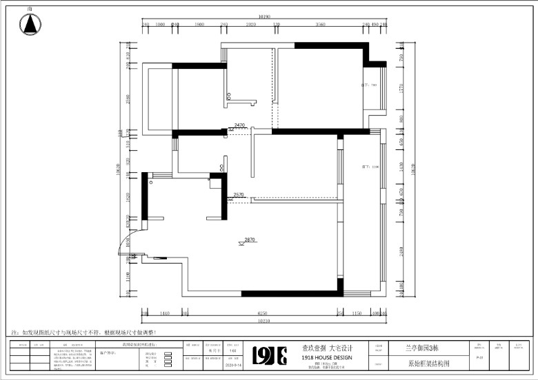
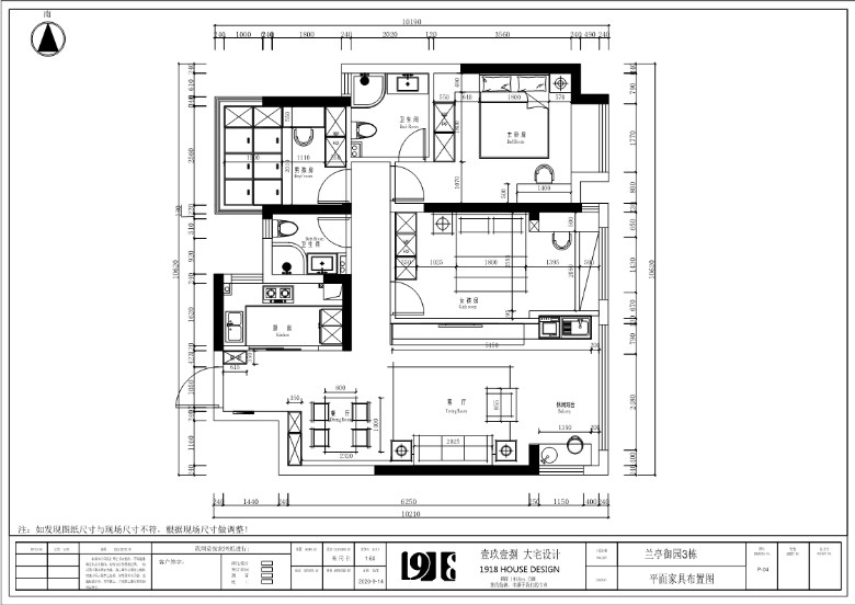
项目地址| Project address:昆山#兰亭御园面积|Square Meters:107m2 风格|Style:现代风格 设计|Designer:设计总监·杨同社材料|Material:地砖、乳胶漆、实木板材、石膏板施工单位|Construction unit:昆山壹玖壹捌装饰设计 设计说明|Design explanation:现代风格,阳台纳入客厅增加的客厅的面积和整体采光,大面积的电视背景柜无疑有巨大的收纳功能。黑白灰的搭配是经典中的永恒,使用了大量的白色与灰色,营造出现代时尚氛围,也让家更有质感。     
|