夜间模式
  • 26039阅读
  • 10回复

[装修讨论]93.1户型怎么设计比较好,边户,朝西。 [复制链接]

上一主题 下一主题
离线tonytian
发帖
1182
昆币
2227 枚
只看楼主 使用道具 电梯直达
楼主  发表于: 2020-10-09 , 来自:未知0==
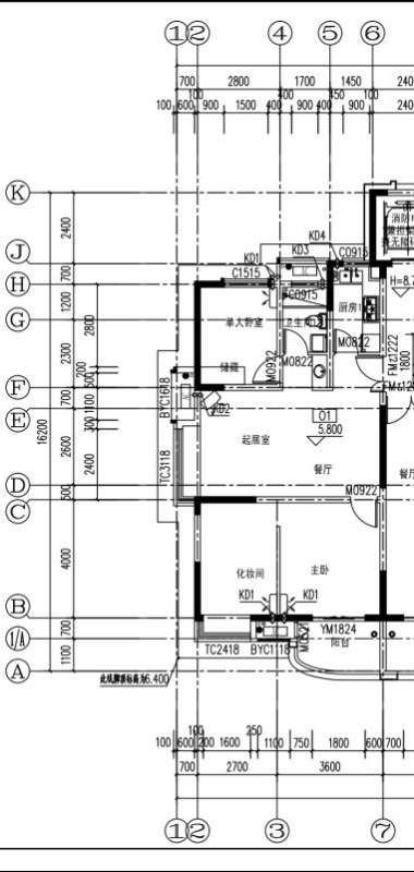
93.1户型怎么设计比较好,边户,朝西。
本帖评分记录
昆山伟宏门窗 昆币 +1 -来自昆山论坛APP 2020-10-09
1条评分昆币+1
爆料有奖!关注昆山论坛抖音号,抖音搜索“昆山论坛”,或搜索抖音号:ksbbs
 
美女离线装修版客服
发帖
10174
昆币
22137 枚
置顶 (来自3楼) 发表于: 2020-10-09 , 来自:江苏省0==
您可以上昆山论坛装修板块报名装修,昆山的知名装修公司都在上面,在线报名立享多重免费服务(免费设计方案,免费报等)!先装修后付款、施工工地全程监督:[url][urlend2]
爆料有奖!关注昆山论坛抖音号,抖音搜索“昆山论坛”,或搜索抖音号:ksbbs
 
帅哥离线1918设计
级别: 禁止发声
发帖
9059
昆币
10185 枚
沙发  发表于: 2020-10-09 , 来自:江苏省0==

回复:楼主@要不加个微信 聊聊

1918设计,用美刷新生活
从个性设计到整体装修,用心为每一位用户创造美好生活!
公司官网:[url][urlend4]  
全景分享:[url][urlend4]
实景案例:[url][urlend4]

爆料有奖!关注昆山论坛抖音号,抖音搜索“昆山论坛”,或搜索抖音号:ksbbs
 
离线朗通装饰
级别: 家装商家

发帖
16953
昆币
14167 枚
板凳  发表于: 2020-10-09 , 来自:江苏省0==
您好
楼主,我们公司有个公益贴,欢迎上传户型图设计师在线为您解析!
户型解析贴:http://bbs.kshot.com/read-htm-tid-5046209.html
爆料有奖!关注昆山论坛抖音号,抖音搜索“昆山论坛”,或搜索抖音号:ksbbs
 
美女离线装修版客服
发帖
10174
昆币
22137 枚
地板  发表于: 2020-10-09 , 来自:江苏省0==
您可以上昆山论坛装修板块报名装修,昆山的知名装修公司都在上面,在线报名立享多重免费服务(免费设计方案,免费报等)!先装修后付款、施工工地全程监督:[url][urlend2]
爆料有奖!关注昆山论坛抖音号,抖音搜索“昆山论坛”,或搜索抖音号:ksbbs
 
级别: 家装商家

发帖
21265
昆币
22148 枚
4楼 发表于: 2020-10-09 , 来自:江苏省0==
欢迎关注我们,自有施工团队,不外包
爆料有奖!关注昆山论坛抖音号,抖音搜索“昆山论坛”,或搜索抖音号:ksbbs
 
电话:13912674136   微信账号:13912674136 QQ:2993026895  公司地址:张浦镇学士路35号          
帅哥离线印象水仙设计
级别: 家装商家
发帖
11307
昆币
19357 枚
5楼 发表于: 2020-10-09 , 来自:江苏省0==
楼主,小编先分享一套类似户型完工实景给您参考看看,当然不是完全一样的哈,楼主可以参考局部设计,目前还不知道您喜欢的具体风格、小区楼盘、居住人口和预算等,您可以直接微信跟我们负责人金钟初步详聊一下。























爆料有奖!关注昆山论坛抖音号,抖音搜索“昆山论坛”,或搜索抖音号:ksbbs
 
美女离线昆山伟宏门窗
级别: 禁止发言

发帖
18978
昆币
32400 枚
6楼 发表于: 2020-10-09 , 来自:江苏省0==
用户被禁言,该主题自动屏蔽!
爆料有奖!关注昆山论坛抖音号,抖音搜索“昆山论坛”,或搜索抖音号:ksbbs
 
离线齐家典尚
发帖
3680
昆币
4956 枚
7楼 发表于: 2020-10-10 , 来自:江苏省0==
你好,欢迎关注华赢乐家整装体验馆
华赢乐家数码整装体验馆(昆山分公司),于2011年进驻昆山,是昆山首批整装家装公司,公司主打一站式整装模式。倡导轻松装修,拎包入住的装修理念。
全球一线材料工厂直供模式,让业主花普通的钱,享受到一线品牌的装修材料。
经过全体同事这些年的不断努力,公司已经发展成为城东规模最大,市场占有率遥遥领先的家装公司。

欢迎您的来电咨询
昆山店地址:昆山市前进东路888号弘基财富广场3#(18、19、20、21、32、33)号
公司网址:http://[url][urlend6] 邀您欣赏更多精彩案例!


爆料有奖!关注昆山论坛抖音号,抖音搜索“昆山论坛”,或搜索抖音号:ksbbs
 
发帖
6918
昆币
6420 枚
8楼 发表于: 2020-10-10 , 来自:江苏省0==
楼主求关注
【寅盛装饰无毒家装】装修不环保砸掉重做,昆山十年,口碑见证!
公司官网:[url][urlend4]  
VR案例:[url][urlend4]  
精品案例:[url][urlend4]  
东店:昆山市太湖路588号,左岸尚海湾3-103商铺 ( 近震川东路,阳光水世界对面
昆山城北店:昆山市柏庐北路94号(柏庐大桥向北200米左右


爆料有奖!关注昆山论坛抖音号,抖音搜索“昆山论坛”,或搜索抖音号:ksbbs
 
快速回复
限76 字节
如果您在写长篇帖子又不马上发表,建议存为草稿
 
上一个 下一个