夜间模式
  • 14647阅读
  • 3回复

[装修]印象水仙|「 态度 」,133㎡现代风住宅 [复制链接]

上一主题 下一主题
帅哥离线印象水仙设计
级别: 家装商家
发帖
11310
昆币
19361 枚
只看楼主 使用道具 电梯直达
楼主  发表于: 2020-12-05 , 来自:江苏省0==




FREE SPACE
自由空间


面积 / 133㎡
风格 / 现代风
户型 / 四室两厅两卫
硬装设计 / 印象水仙
软装设计 / 印象水仙  
施工单位 / 印象水仙

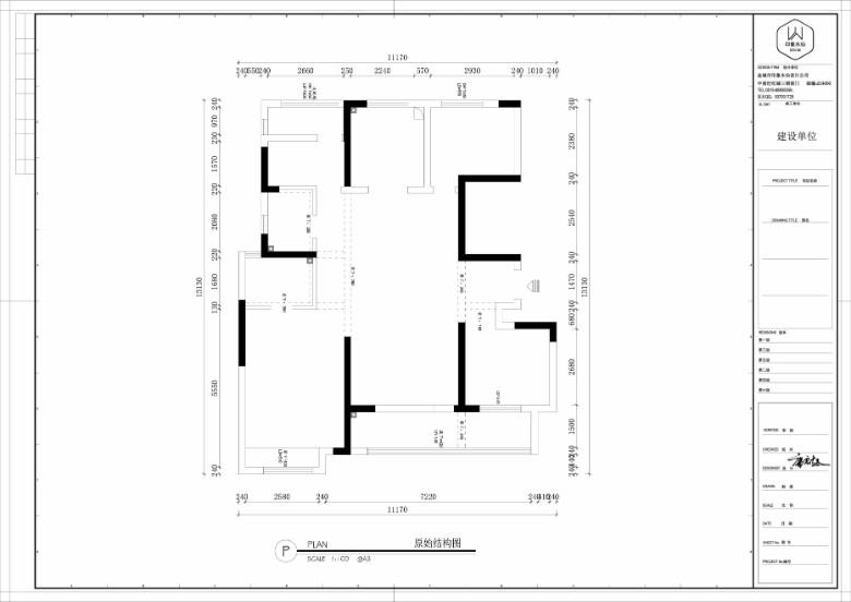
原始平面图




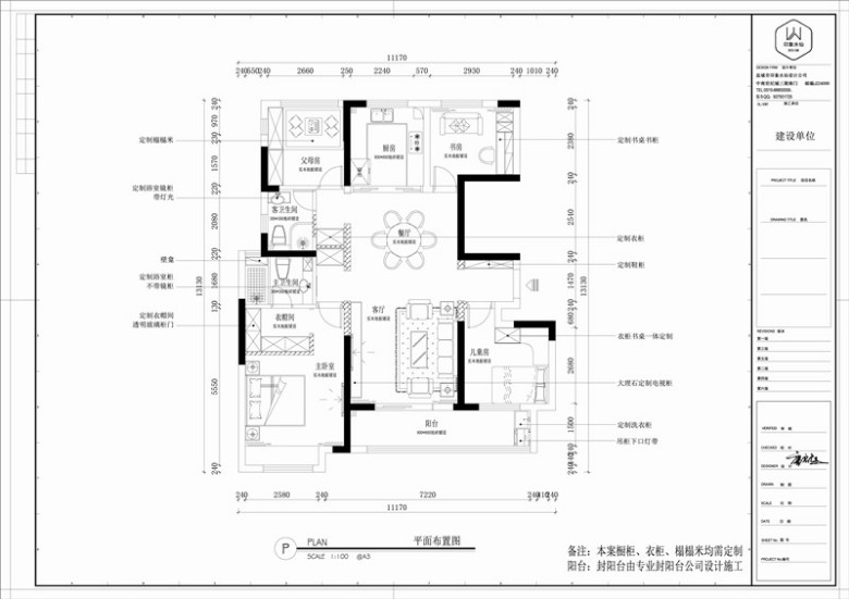
平面布置图




Living Room 客厅







本着极简风格的态度,感受材质与颜色的质感与设计感;沙发颜色跟木饰面的协调,橘色元素在灰色的基底中进行调和,让原本沉静的空间充满活力,采用无主灯设计,与客厅整体完美融入。







极简主义的稳重和不失惊艳的韵味
通过木质元素的充分运用




Corridor 过道




过道,主家钟情于木饰面,与软装装饰融为一体,精致且高级。

Dining Room 餐厅




餐厅两侧墙面选用深色木饰面结合顶面无主灯线条的设计,保持了整个空间的宽阔感;厨房与餐厅的格局也格外友好,餐桌椅选用极简风家居,更是提升了用餐环境的格调。




Bedroom 卧室




主卧选择深咖色基调,营造出一种高级的格调。主卧衣帽间、主卫形成套间,串联起空间动线,满足收纳需求的同时将实用发挥到极致,营造理性的质感,透入优雅的气质,大气沉稳不言自喻。





[ 此帖被印象水仙设计在2020-12-05 17:24重新编辑 ]
本帖评分记录
昆山伟宏门窗 昆币 +1 -来自昆山论坛APP 2020-12-06
1条评分昆币+1
爆料有奖!关注昆山论坛抖音号,抖音搜索“昆山论坛”,或搜索抖音号:ksbbs
 
帅哥离线修改的用户名
发帖
517
昆币
2917 枚
沙发  发表于: 2020-12-05 , 来自:江苏省0==
装了多少钱
爆料有奖!关注昆山论坛抖音号,抖音搜索“昆山论坛”,或搜索抖音号:ksbbs
 
美女离线昆山伟宏门窗
级别: 禁止发言

发帖
18978
昆币
32400 枚
板凳  发表于: 2020-12-06 , 来自:江苏省0==
用户被禁言,该主题自动屏蔽!
爆料有奖!关注昆山论坛抖音号,抖音搜索“昆山论坛”,或搜索抖音号:ksbbs
 
离线代拆代行
级别: 昆山新人
发帖
134
昆币
193 枚
地板  发表于: 2020-12-06 , 来自:江苏省0==
好多木纹色
爆料有奖!关注昆山论坛抖音号,抖音搜索“昆山论坛”,或搜索抖音号:ksbbs
 
快速回复
限76 字节
如果您在写长篇帖子又不马上发表,建议存为草稿
 
上一个 下一个