|
楼主 发表于: 2021-02-02
, 来自:江苏省0==

面积 / 113㎡风格 / 现代风户型 / 三室两厅两卫硬装设计 / 印象水仙软装设计 / 印象水仙 施工单位 / 印象水仙

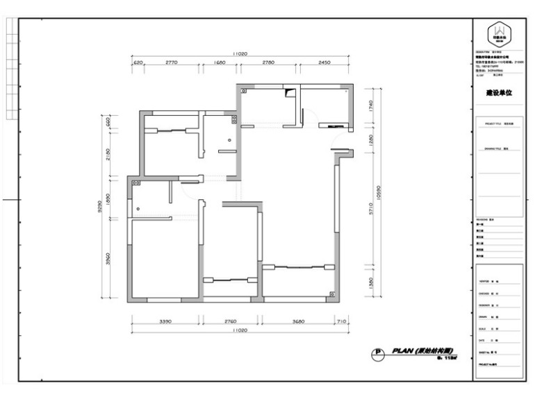
本案是一对80后夫妇,两个小孩,对家的向往也有很清晰的诉求,经过至亲引荐,结识了我们;第一次交谈设计师与业主追求简单舒适的生活方式一拍即合,于是家就往内心共识的方向成形。 从最初的犹疑,到过程的磨合,再到最后的信任,需要的恰恰就是一场装修的距离;业主期望在这纯碎明净的生活空间里,相互依偎,认真生活,一起奔赴向往的温柔岁月。 「原始结构图」

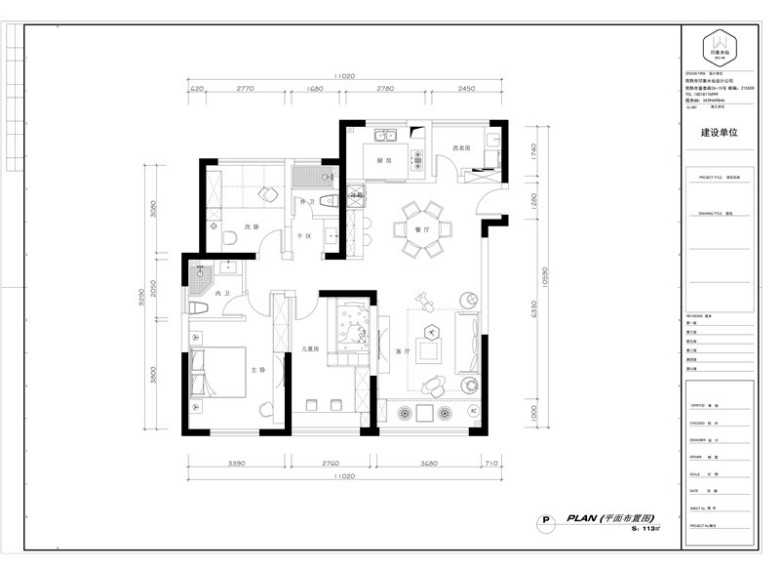
「平面布置图」

LIVING ROOM


客厅与阳台打通,宽敞透亮,蓝色的沙发背景,阳光洒进来的那一刻,皮质家具的光泽感带起空间的节奏感;浅灰色电视背景做了凸出的爵士白大理石的铺设,鲜明的线条、材质肌理,共同演绎刚而不冷、张而不显的质感魅力。

深棕色的皮质三人位沙发,搭配静谧的绿色单人椅,跳色的脚凳,简约化空间。

闲逸的午后,阳台的桌椅,主家可以在这里饮茶、看书、谈心,看阳光在廊檐下缓缓推移,静享岁月安好。

DINING ROOM

白色大理石餐桌增加质感,跳色皮质餐椅明暗点缀,轻松打造内敛轻松的现代简约风,避免过多的色彩搭配而产生审美疲劳。 KITCHEN

厨房空间采用U型设计,较为宽敞,设施设备一应俱全,多橱柜的设计充分满足了烹饪收纳需求,现代风格下整体干净整洁。 BEDROOM

主卧床头背景以温暖木质包裹墙面,阳光洒下,灯光照射,厚实温暖的氛围悠悠然;每一处设计都彰显着居住者优雅的生活状态与情调,踏足于此,因工作而疲惫的身心,回归平静。 CHILDREN'S ROOM

拂晓与黄昏,阳光漫入窗纱,潜进卧室,一整天的元气时光匆匆,孩童的成长步伐日益渐进;上下铺考虑的是主家有两个宝贝哦。 STUDY

无需过多复杂的装饰,简约整洁的书房就能带给人心灵的安宁,设计师充分利用了柜子来进行收纳摆放,书房内还安置了榻榻米,风格朴素但透露着满满的书香气,闲暇时光备一杯茶,躺在榻榻米上,手握一卷书,享受一天的思考时光。 WASH ROOM

卫生间干湿分离,大面积条纹瓷砖的铺设,给予卫生间洁净透亮的质感,胡桃色柜体的穿插驱走单一,引入温馨和柔和。
|