夜间模式
  • 61773阅读
  • 15回复

[装修讨论]老房改造,简单实用为主,有没有案例可以实体参观一下 [复制链接]

上一主题 下一主题
离线我独自
级别: 昆山新人
发帖
127
昆币
202 枚
只看楼主 使用道具 电梯直达
楼主  发表于: 2021-03-02 , 来自:江苏省0==
70平左右,两室的,大概需要花多少钱装修啊?心里没数。
本帖评分记录
昆山伟宏门窗 昆币 +1 -来自昆山论坛APP 2021-03-03
1条评分昆币+1
爆料有奖!关注昆山论坛抖音号,抖音搜索“昆山论坛”,或搜索抖音号:ksbbs
 
离线握你手
级别: 昆山新人
发帖
128
昆币
171 枚
沙发  发表于: 2021-03-02 , 来自:江苏省0==
多去看看工地也好
爆料有奖!关注昆山论坛抖音号,抖音搜索“昆山论坛”,或搜索抖音号:ksbbs
 
离线一哄而散
级别: 昆山新人
发帖
119
昆币
196 枚
板凳  发表于: 2021-03-02 , 来自:江苏省0==
要看精装还是简装了
爆料有奖!关注昆山论坛抖音号,抖音搜索“昆山论坛”,或搜索抖音号:ksbbs
 
帅哥在线印象水仙设计
级别: 家装商家
发帖
11308
昆币
19358 枚
地板  发表于: 2021-03-02 , 来自:江苏省0==

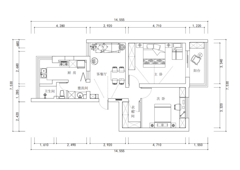
老房改造,现场手机随拍











本帖评分记录
linmu1695 昆币 +1 -来自昆山论坛APP 2021-03-05
1条评分昆币+1
爆料有奖!关注昆山论坛抖音号,抖音搜索“昆山论坛”,或搜索抖音号:ksbbs
 
帅哥在线印象水仙设计
级别: 家装商家
发帖
11308
昆币
19358 枚
4楼 发表于: 2021-03-02 , 来自:江苏省0==
老房改造,老破小也有春天,嘻嘻,实景实景实景哦。


印象水仙老房改造的案例实在太多啦,楼主还是亲自去案例库看看吧,或者直接微信找金钟,让他把老房改造的案例发一些给你参考。


































本帖评分记录
linmu1695 昆币 +1 -来自昆山论坛APP 2021-03-05
1条评分昆币+1
爆料有奖!关注昆山论坛抖音号,抖音搜索“昆山论坛”,或搜索抖音号:ksbbs
 
发帖
1131
昆币
1263 枚
5楼 发表于: 2021-03-02 , 来自:江苏省0==
欢迎关注我们
爆料有奖!关注昆山论坛抖音号,抖音搜索“昆山论坛”,或搜索抖音号:ksbbs
 
美女离线昆山伟宏门窗
级别: 禁止发言

发帖
18978
昆币
32400 枚
6楼 发表于: 2021-03-03 , 来自:江苏省0==
用户被禁言,该主题自动屏蔽!
爆料有奖!关注昆山论坛抖音号,抖音搜索“昆山论坛”,或搜索抖音号:ksbbs
 
美女离线大慈装饰
级别: 家装商家

发帖
20494
昆币
2276 枚
7楼 发表于: 2021-03-03 , 来自:江苏省0==



楼主可以看看我们大慈的实景案例呢,美式风格的~
爆料有奖!关注昆山论坛抖音号,抖音搜索“昆山论坛”,或搜索抖音号:ksbbs
 
大慈装饰  昆山推荐率85%以上,口碑品牌  热线:0512-57779948/18551100758 地址:昆山市九方城保利地产大楼1704-1710
帅哥离线金圆方装饰
级别: 禁止发言
发帖
6269
昆币
9357 枚
8楼 发表于: 2021-03-04 , 来自:江苏省0==
用户被禁言,该主题自动屏蔽!
爆料有奖!关注昆山论坛抖音号,抖音搜索“昆山论坛”,或搜索抖音号:ksbbs
 
帅哥在线华易达装饰
发帖
1086
昆币
1863 枚
9楼 发表于: 2021-03-04 , 来自:江苏省0==
您好,请问您是什么小区需要改造翻新?我们发效果图给您看哦
欢迎关注【华易达装饰】十年无甲醛装修
地址:昆山开发区太湖南路588号左岸尚海湾花园商铺(近震川东路、阳光水世界对面)
链接:https://[url][urlend6]/s226
设计师免费上门量房出设计方案做报价清单,欢迎随时联系我们
爆料有奖!关注昆山论坛抖音号,抖音搜索“昆山论坛”,或搜索抖音号:ksbbs
 
快速回复
限76 字节
如果您在写长篇帖子又不马上发表,建议存为草稿
 
上一个 下一个