夜间模式
  • 8960阅读
  • 2回复

[装修]观湖壹号装修效果图,可参考! [复制链接]

上一主题 下一主题
帅哥离线1918设计
级别: 禁止发声
发帖
9059
昆币
10185 枚
只看楼主 使用道具 电梯直达
楼主  发表于: 2021-03-05 , 来自:江苏省0==

105㎡现代灰色系,仅仅客厅也很耐看


项目地址| Project address:昆山#观湖壹号
面积|Square Meters:105m2
风格|Style:现代风格
设计|Designer:全案设计师·杨同社
材料|Material:地砖、乳胶漆、石膏线条、石膏板
施工单位|Construction unit:昆山壹玖壹捌装饰设计


业主要求
Owner's demand

1、风格锁定现代风;
2、墙面用简单的石膏线条来做层次;
3、家具也要现代风格的,灰色系更耐看;
4、整体格调要求一致。


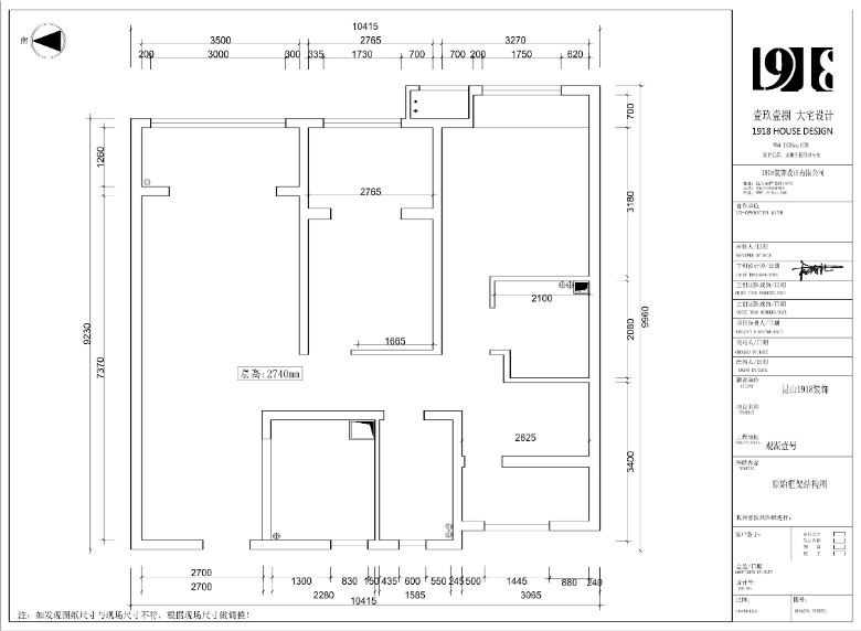
原始结构图&平面布置图
Original Structure Chart&Planar Scheme





客餐厅
Living room and dining room



客厅空间是整个家中最常用的公共区域,为了塑造豁然开朗、宽阔舒适的体验感。将客厅、餐厅、活动区相整合,使各个区域功能相互联系,使用起来方便许多,视觉上也具有宽敞明亮的效果。




▲扫码观看全景▼


爆料有奖!关注昆山论坛抖音号,抖音搜索“昆山论坛”,或搜索抖音号:ksbbs
 
帅哥离线一大群深井冰
发帖
6967
昆币
817 枚
沙发  发表于: 2021-03-05 , 来自:江苏省0==
门左边有个可视电话 那里应该做个柜子
爆料有奖!关注昆山论坛抖音号,抖音搜索“昆山论坛”,或搜索抖音号:ksbbs
 
帅哥离线1918设计
级别: 禁止发声
发帖
9059
昆币
10185 枚
板凳  发表于: 2021-03-06 , 来自:江苏省0==
    
爆料有奖!关注昆山论坛抖音号,抖音搜索“昆山论坛”,或搜索抖音号:ksbbs
 
快速回复
限76 字节
如果您在写长篇帖子又不马上发表,建议存为草稿
 
上一个 下一个