夜间模式
  • 581900阅读
  • 180回复

珠江御景苑,第二套继续装修,跟儿子一起住新家.... [复制链接]

上一主题 下一主题
离线药石之言
级别: 昆山新人
发帖
218
昆币
425 枚
只看楼主 使用道具 电梯直达
楼主  发表于: 2021-03-10 , 来自:江苏省0==
家装日记
小区: 珠江御景苑
套内面积: 138 (平米)
预算: 35 万
开工日期: 2021-03-06
装修风格: 简约
装修方式: 半包
装修公司: 印象水仙装饰设计
2021是个好年,似乎全民都在折腾装修这事儿,身边朋友好多家都在准备着要装修,看来大家都担心房价再涨,哈哈,我们家是前几年找的印象水仙简装的,儿子现在也大了,也是为了给我们的新家有更好的活动、居住空间,之前买闲置的房子,半年前我们就有计划着手精装修了,我老公跟儿子都非常喜欢酷酷的风格,设计师一开始也推荐的现代风暗黑系列,他们心有灵犀的一块去了,我反正随他们,主要注重材料和服务,他们爷两个就保证家里的效果,分配完美。



基本信息栏(复制的写过装修日记的宝宝,我也尽量写的专业一点):


房型:三室两厅一厨两卫
建筑面积:138㎡
装修预算:35万(预算有点紧,尽量不要超支40万,设计师帮忙全程把控)
包工方式:半包
装潢公司:印象水仙室内设计
设计师:朱朱
开工日期:2021.03.06(吉日开工)
楼盘地址:珠江御景苑


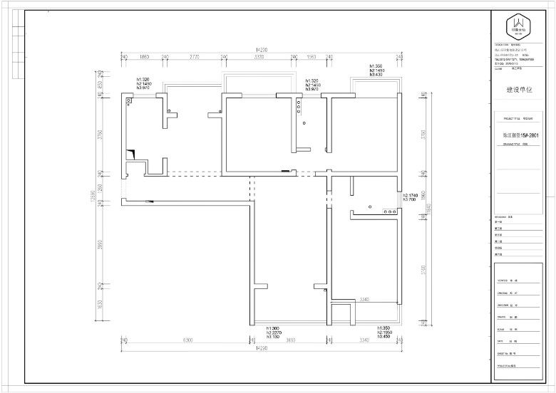
原始平面图,欢迎大家多多交流;




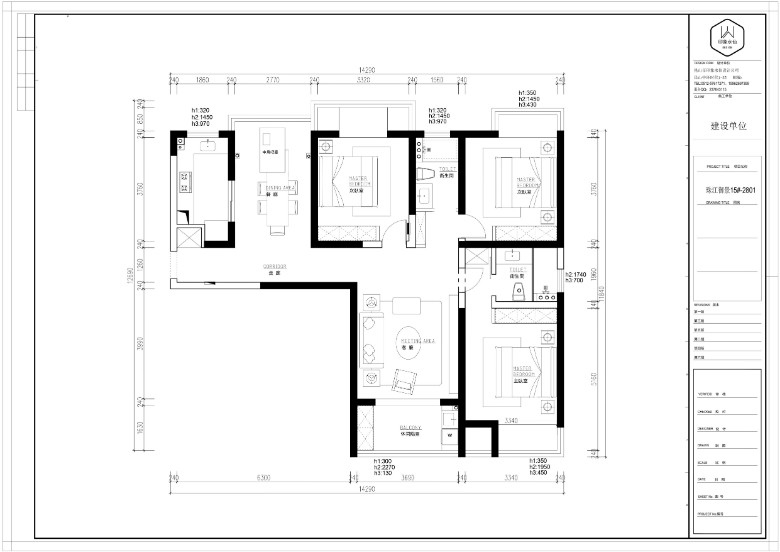
平面布置图,我们一家三口跟设计师经过十来天的交流,花了很多心思,目前的方案是最佳的也是我们最认可的。





效果图部分,酷酷的暗黑系列,现代风格,之前参考了很多家的现代风,都没找到自己非常满意的,果然私人定制设计还是值得的。













开工照镇楼,哈哈,喜庆开工,预祝后期施工顺顺利利。




地面保护,师傅很认真的铺贴,满满的仪式感,哈哈,目前家里拆除中。











本帖评分记录
垂丝逸影 昆币 +1 -来自昆山论坛APP 2022-03-19
华珏 昆币 +1 -来自昆山论坛APP 2022-03-06
孙许 昆币 +1 -来自昆山论坛APP 2021-11-08
puckl 昆币 +1 -来自昆山论坛APP 2021-06-19
家居脑细胞 昆币 +1 -来自昆山论坛APP 2021-04-14
轮子不会转弯 昆币 +1 -来自昆山论坛APP 2021-03-16
荣盛门窗 昆币 +1 -来自昆山论坛APP 2021-03-15
昆山伟宏门窗 昆币 +1 -来自昆山论坛APP 2021-03-13
坤哥588 昆币 +1 -来自昆山论坛APP 2021-03-11
十一月星辰 昆币 +1 -来自昆山论坛APP 2021-03-11
12
13条评分昆币+13
爆料有奖!关注昆山论坛抖音号,抖音搜索“昆山论坛”,或搜索抖音号:ksbbs
 
离线willingme
发帖
1083
昆币
1236 枚
沙发  发表于: 2021-03-10 , 来自:江苏省0==
这个暗黑系列很有特色期待后续呀
爆料有奖!关注昆山论坛抖音号,抖音搜索“昆山论坛”,或搜索抖音号:ksbbs
 
发帖
1475
昆币
733 枚
板凳  发表于: 2021-03-11 , 来自:江苏省0==
美缝关注我
爆料有奖!关注昆山论坛抖音号,抖音搜索“昆山论坛”,或搜索抖音号:ksbbs
 
离线jiaokan37
级别: 昆山新人
发帖
175
昆币
232 枚
地板  发表于: 2021-03-11 , 来自:江苏省0==
恭喜恭喜,风格很有个性
爆料有奖!关注昆山论坛抖音号,抖音搜索“昆山论坛”,或搜索抖音号:ksbbs
 
级别: 昆山新人
发帖
196
昆币
276 枚
4楼 发表于: 2021-03-11 , 来自:江苏省0==
开工大吉
爆料有奖!关注昆山论坛抖音号,抖音搜索“昆山论坛”,或搜索抖音号:ksbbs
 
离线小艾333333
级别: 昆山新人
发帖
198
昆币
606 枚
5楼 发表于: 2021-03-11 , 来自:江苏省0==
喜欢,好看,有个性
爆料有奖!关注昆山论坛抖音号,抖音搜索“昆山论坛”,或搜索抖音号:ksbbs
 
离线k19733
级别: 昆山过客
发帖
57
昆币
125 枚
6楼 发表于: 2021-03-11 , 来自:未知0==
大门对着卫生间怎么设计的
爆料有奖!关注昆山论坛抖音号,抖音搜索“昆山论坛”,或搜索抖音号:ksbbs
 
离线南城街道
级别: 昆山新人
发帖
319
昆币
612 枚
7楼 发表于: 2021-03-11 , 来自:江苏省0==
效果图满满的科技感,然后看到下面要拆除的,还有水晶窗帘呢
爆料有奖!关注昆山论坛抖音号,抖音搜索“昆山论坛”,或搜索抖音号:ksbbs
 
离线南城街道
级别: 昆山新人
发帖
319
昆币
612 枚
8楼 发表于: 2021-03-11 , 来自:江苏省0==
楼主你家的飘窗也可以砸吗?
本帖评分记录
陆辰辰妈 昆币 +1 -来自昆山论坛APP 2021-03-16
1条评分昆币+1
爆料有奖!关注昆山论坛抖音号,抖音搜索“昆山论坛”,或搜索抖音号:ksbbs
 
离线南城街道
级别: 昆山新人
发帖
319
昆币
612 枚
9楼 发表于: 2021-03-11 , 来自:江苏省0==
回 k19733 的帖子
k19733:大门对着卫生间怎么设计的 (2021-03-11 13:42)

做个隔断吧,风水上是有讲究
爆料有奖!关注昆山论坛抖音号,抖音搜索“昆山论坛”,或搜索抖音号:ksbbs
 
快速回复
限76 字节
如果您提交过一次失败了,可以用”恢复数据”来恢复帖子内容
 
上一个 下一个