夜间模式
  • 9526阅读
  • 2回复

[装修]兰亭御园107现代风,可对比 [复制链接]

上一主题 下一主题
帅哥离线1918设计
级别: 禁止发声
发帖
9059
昆币
10185 枚
只看楼主 使用道具 电梯直达
楼主  发表于: 2021-03-13 , 来自:江苏省0==
107㎡经典黑白灰,现代风格独有的质感
项目地址| Project address:昆山#兰亭御园
面积|Square Meters:107㎡
风格|Style:现代风格
设计|Designer:设计总监·杨同社

材料|Material:地砖、乳胶漆、实木板材、石膏板
施工单位|Construction unit:昆山壹玖壹捌装饰设计
设计说明
Design


现代风格,阳台纳入客厅增加的客厅的面积和整体采光,大面积的电视背景柜无疑有巨大的收纳功能。黑白灰的搭配是经典中的永恒,使用了大量的白色与灰色,营造出现代时尚氛围,也让家更有质感。
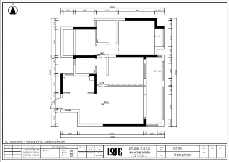
原始结构图  

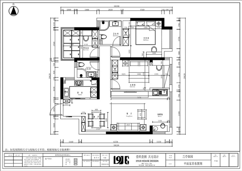
平面布置图



入 户
Enter the door


生活者对于空间的探索欲望,在克制美学中找到这种微妙平衡,使简约明亮的空间设计呈现出生活者的人生理想状态。现代居所加之大理石和素水泥墙质感,让整个空间营造出一种简约而大气的生活质感。
客厅一组灰色的布艺沙发,与整体色调相呼应,沙发上精心搭配色彩质地不一的靠垫,使得这个空间更加的多姿多彩。




儿 童 房
Children


孩子是父母的动力,儿童房的整体的设计让人感觉很有科幻感,主体是以太空为主,床、床头背景墙都选择了相关的元素,也可以培养孩子的爱好。

[ 此帖被1918设计在2021-03-13 09:24重新编辑 ]
爆料有奖!关注昆山论坛抖音号,抖音搜索“昆山论坛”,或搜索抖音号:ksbbs
 
发帖
6918
昆币
6420 枚
沙发  发表于: 2021-03-13 , 来自:江苏省0==
爆料有奖!关注昆山论坛抖音号,抖音搜索“昆山论坛”,或搜索抖音号:ksbbs
 
离线rehen
级别: 昆山过客
发帖
24
昆币
24 枚
板凳  发表于: 2021-03-15 , 来自:江苏省0==
这样的,多少一平
爆料有奖!关注昆山论坛抖音号,抖音搜索“昆山论坛”,或搜索抖音号:ksbbs
 
快速回复
限76 字节
如果您在写长篇帖子又不马上发表,建议存为草稿
 
上一个 下一个