夜间模式
  • 8309阅读
  • 1回复

[装修]中南世纪城现代风格 [复制链接]

上一主题 下一主题
帅哥离线1918设计
级别: 禁止发声
发帖
9059
昆币
10185 枚
只看楼主 使用道具 电梯直达
楼主  发表于: 2021-03-13 , 来自:江苏省0==
110㎡打造简洁大方的现代风格
项目地址| Project address:昆山#中南世纪城
面积|Square Meters:110㎡
风格|Style:现代风格
设计|Designer:全案设计师·吴桂华
材料|Material:地砖、乳胶漆、实木板材、石膏板
施工单位|Construction unit:昆山壹玖壹捌装饰设计


设计说明
Designer


现代风格,阳台纳入客厅增加的客厅的面积和整体采光,大面积的电视背景柜无疑有巨大的收纳功能。黑白灰的搭配是经典中的永恒,使用了大量的白色与灰色,营造出现代时尚氛围,也让家更有质感。

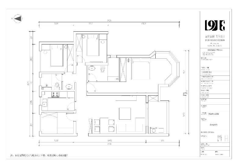
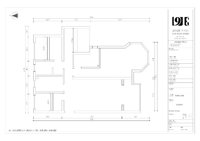
原始结构图&平面布置图
Original Structure Chart&Planar Scheme




客餐厅
Living room and dining room



开放式的布局处理,不但释放了空间的狭隘,也让餐厅区域更加融贯一体,营造延伸流畅的格局序列,并采用冷灰色调打造基底,凝练简约现代的生活质感,加上室外光线的流泻,衬出选用材质的自然肌理,勾勒出独特的空间气质。




主卧
Master bedroom



“我们经过着生活,还是生活经过我们。有时候糊涂,有时候好像又明白。是因为有梦想还是梦想拥有我们。有时温暖,有时苍凉。” 所有的所有,都化成喜悦的力量。一起去爱这个世界,去感受心中这无尽的光芒。

爆料有奖!关注昆山论坛抖音号,抖音搜索“昆山论坛”,或搜索抖音号:ksbbs
 
发帖
6918
昆币
6420 枚
沙发  发表于: 2021-03-13 , 来自:江苏省0==
中南的客户我们做的也挺多的
公司官网:[url][urlend2]  
VR案例:[url][urlend4]  
精品案例:[url][urlend4]  
城东店:昆山市太湖路588号,左岸尚海湾3-103商铺 ( 近震川东路,阳光水世界对面 )
昆山城北店:昆山市柏庐北路94号(柏庐大桥向北200米左右)
点击链接可以观看案例、预估报价!
爆料有奖!关注昆山论坛抖音号,抖音搜索“昆山论坛”,或搜索抖音号:ksbbs
 
快速回复
限76 字节
如果您提交过一次失败了,可以用”恢复数据”来恢复帖子内容
 
上一个 下一个