夜间模式
  • 280103阅读
  • 121回复

:PAL 137平 北欧原木风 装修记录 [复制链接]

上一主题 下一主题
离线cloivaaa
级别: 昆山新人
发帖
320
昆币
911 枚
只看楼主 使用道具 电梯直达
楼主  发表于: 2021-04-18 , 来自:江苏省0==
基本信息:
坐标:PAL
建面:137
套内:104
风格:北欧原木
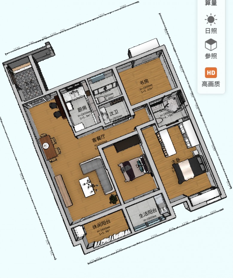
附上:户型图 设计师的尺寸图



附上:前期自己的一些想法和软件弄的图

本帖评分记录
阿炎 昆币 +1 -来自昆山论坛APP 2021-10-09
starwutian 昆币 +1 -来自昆山论坛APP 2021-09-25
海豚6 昆币 +1 -来自昆山论坛APP 2021-07-03
kidimiaomi 昆币 +1 -来自昆山论坛APP 2021-05-07
故事不是吹牛 昆币 +1 - 2021-05-03
小熊系统门窗 昆币 +1 -来自昆山论坛APP 2021-04-21
昆山伟宏门窗 昆币 +1 -来自昆山论坛APP 2021-04-20
荣盛门窗 昆币 +1 -来自昆山论坛APP 2021-04-19
装修版客服 昆币 +10 鼓励分享 2021-04-19
董董88 昆币 +1 -来自昆山论坛APP 2021-04-19
10条评分昆币+19
爆料有奖!关注昆山论坛抖音号,抖音搜索“昆山论坛”,或搜索抖音号:ksbbs
 
离线cloivaaa
级别: 昆山新人
发帖
320
昆币
911 枚
沙发  发表于: 2021-04-18 , 来自:江苏省0==
装修公司篇(2021.1-3)
看了挺多 不再赘述
字母不代表任何


费用及预算篇
控制你记几 不行要去正阳桥坐一坐了
buxi


爆料有奖!关注昆山论坛抖音号,抖音搜索“昆山论坛”,或搜索抖音号:ksbbs
 
离线cloivaaa
级别: 昆山新人
发帖
320
昆币
911 枚
板凳  发表于: 2021-04-18 , 来自:江苏省0==
3.31
开工
铲墙皮 拆保温层 刷墙固
(墙体、玻璃门、检修门之前已拆除)



4.1
水电交底
进入水电阶段
4.5
全屋定制量房
4.8
装修公司和全屋定制在施工群里一起沟通厨房的水电布置
有要求 很快得到解决 效率杠杠的







4.12
水电完工
装修公司拍摄了水电VR图 留底很赞







4.17
水电验收
工艺外观极为舒适
瓷砖进场
这款花砖会不会翻车?







爆料有奖!关注昆山论坛抖音号,抖音搜索“昆山论坛”,或搜索抖音号:ksbbs
 
帅哥离线虎皮猫大人
发帖
1358
昆币
2490 枚
地板  发表于: 2021-04-18 , 来自:未知0==
功课做的不错
爆料有奖!关注昆山论坛抖音号,抖音搜索“昆山论坛”,或搜索抖音号:ksbbs
 
离线cloivaaa
级别: 昆山新人
发帖
320
昆币
911 枚
4楼 发表于: 2021-04-18 , 来自:江苏省0==
虎皮猫大人:功课做的不错[表情] (2021-04-18 19:24) 

嘿嘿
爆料有奖!关注昆山论坛抖音号,抖音搜索“昆山论坛”,或搜索抖音号:ksbbs
 
离线cloivaaa
级别: 昆山新人
发帖
320
昆币
911 枚
5楼 发表于: 2021-04-18 , 来自:江苏省0==
上一波效果图






墙面漆的话 初步的构想
电视背景墙:伦敦雾
次卧背景墙:太空漫步
主卧背景墙:褐珊瑚
剩余:大白墙yyds!

爆料有奖!关注昆山论坛抖音号,抖音搜索“昆山论坛”,或搜索抖音号:ksbbs
 
美女离线装修版客服
发帖
10174
昆币
22137 枚
6楼 发表于: 2021-04-19 , 来自:江苏省0==
恭喜楼主,感谢分享哦
爆料有奖!关注昆山论坛抖音号,抖音搜索“昆山论坛”,或搜索抖音号:ksbbs
 
发帖
1476
昆币
734 枚
7楼 发表于: 2021-04-19 , 来自:江苏省0==
恭喜楼主,后期美缝关注我
爆料有奖!关注昆山论坛抖音号,抖音搜索“昆山论坛”,或搜索抖音号:ksbbs
 
美女离线荣盛门窗
级别: 禁止发言

发帖
7737
昆币
8552 枚
8楼 发表于: 2021-04-19 , 来自:江苏省0==
用户被禁言,该主题自动屏蔽!
爆料有奖!关注昆山论坛抖音号,抖音搜索“昆山论坛”,或搜索抖音号:ksbbs
 
离线朗通装饰
级别: 家装商家

发帖
16955
昆币
14171 枚
9楼 发表于: 2021-04-19 , 来自:江苏省0==

恭喜楼主开工大吉
感谢您对朗通的信任,朗通一定不会辜负重托,把房子完美的交付您!
欢迎后续多上传美图,我们会一直关注,
也邀请大家多看装修日记,多学装修心得!
装修日记:http://www.ksbbs.com/read-htm-tid-4497784.html  
公司网址:[url][urlend4] / (精彩案例邀您欣赏)


爆料有奖!关注昆山论坛抖音号,抖音搜索“昆山论坛”,或搜索抖音号:ksbbs
 
快速回复
限76 字节
如果您在写长篇帖子又不马上发表,建议存为草稿
 
上一个 下一个