夜间模式
  • 67996阅读
  • 14回复

[装修讨论]市区动迁二手房,清水毛坯,请教装修前要做什么准备工作? [复制链接]

上一主题 下一主题
帅哥离线朝阳吃瓜群众
发帖
532
昆币
1116 枚
只看楼主 使用道具 电梯直达
楼主  发表于: 2021-04-18 , 来自:江苏省0==
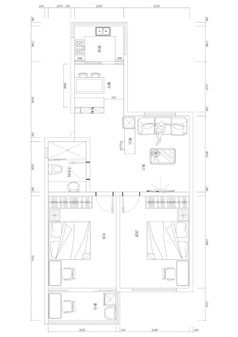
比如天然气要不要先入户?家具家电要不要先选好?要提前做什么功课?
晒一个自己预想的设计图!产证面积78平,中等装修,硬装预算大概多少?
听说论坛商家量房设计免费,附近商家可以加个微信:gm595364404
本帖评分记录
荣盛门窗 昆币 +1 -来自昆山论坛APP 2021-04-19
晶兰 昆币 +1 -来自昆山论坛APP 2021-04-18
2条评分昆币+2
爆料有奖!关注昆山论坛抖音号,抖音搜索“昆山论坛”,或搜索抖音号:ksbbs
 
美女离线装修版客服
发帖
10174
昆币
22137 枚
置顶 (来自8楼) 发表于: 2021-04-21 , 来自:江苏省0==
您可以上昆山论坛装修板块报名装修,昆山的知名装修公司都在上面,在线报名立享多重免费服务(免费设计方案,免费报等)!先装修后付款、施工工地全程监督:[url][urlend2]
爆料有奖!关注昆山论坛抖音号,抖音搜索“昆山论坛”,或搜索抖音号:ksbbs
 
帅哥离线ksalj
发帖
863
昆币
1536 枚
沙发  发表于: 2021-04-18 , 来自:江苏省0==
卧槽,你这个怎么感觉比我90多平还要大
爆料有奖!关注昆山论坛抖音号,抖音搜索“昆山论坛”,或搜索抖音号:ksbbs
 
帅哥离线朝阳吃瓜群众
发帖
532
昆币
1116 枚
板凳  发表于: 2021-04-18 , 来自:江苏省0==
ksalj:卧槽,你这个怎么感觉比我90多平还要大 (2021-04-18 22:47) 

老房子得房率高一点
爆料有奖!关注昆山论坛抖音号,抖音搜索“昆山论坛”,或搜索抖音号:ksbbs
 
帅哥离线从新来过2021
发帖
599
昆币
761 枚
地板  发表于: 2021-04-18 , 来自:江苏省0==
已私信您
爆料有奖!关注昆山论坛抖音号,抖音搜索“昆山论坛”,或搜索抖音号:ksbbs
 
帅哥离线朝阳吃瓜群众
发帖
532
昆币
1116 枚
4楼 发表于: 2021-04-20 , 来自:未知0==
封阳台的有没有?加个微信了解一下
本帖评分记录
荣盛门窗 昆币 +1 -来自昆山论坛APP 2021-04-20
1条评分昆币+1
爆料有奖!关注昆山论坛抖音号,抖音搜索“昆山论坛”,或搜索抖音号:ksbbs
 
在线朗通装饰
级别: 家装商家

发帖
16955
昆币
14171 枚
5楼 发表于: 2021-04-21 , 来自:江苏省0==

您好,楼主
朗通装饰在昆山已经有十几年的历史了,并且拥有自购店面。
昆山唯一一家装饰公司工作人员稳定性7年以上。
人员的稳定使设计团队与施工团队配合默契与团结。
朗通装饰是一家没有市场部而有市场的公司,把业务人员与广告的成本用来维护售后
欢迎您的来电咨询
装修日记:http://www.ksbbs.com/read-htm-tid-4497784.html  
公司网址:[url][urlend4] / (精彩案例邀您欣赏)


爆料有奖!关注昆山论坛抖音号,抖音搜索“昆山论坛”,或搜索抖音号:ksbbs
 
离线绯雨丸
级别: 昆山新人
发帖
319
昆币
513 枚
6楼 发表于: 2021-04-21 , 来自:江苏省0==
验房量房
爆料有奖!关注昆山论坛抖音号,抖音搜索“昆山论坛”,或搜索抖音号:ksbbs
 
帅哥离线华易达装饰
发帖
1086
昆币
1863 枚
7楼 发表于: 2021-04-21 , 来自:江苏省0==
我们私信您
爆料有奖!关注昆山论坛抖音号,抖音搜索“昆山论坛”,或搜索抖音号:ksbbs
 
美女离线装修版客服
发帖
10174
昆币
22137 枚
8楼 发表于: 2021-04-21 , 来自:江苏省0==
您可以上昆山论坛装修板块报名装修,昆山的知名装修公司都在上面,在线报名立享多重免费服务(免费设计方案,免费报等)!先装修后付款、施工工地全程监督:[url][urlend2]
爆料有奖!关注昆山论坛抖音号,抖音搜索“昆山论坛”,或搜索抖音号:ksbbs
 
快速回复
限76 字节
如果您提交过一次失败了,可以用”恢复数据”来恢复帖子内容
 
上一个 下一个